Willkommen in Ihrem zukünftigen Traumhaus in Sehnde/ Rethmar! Dieses exklusive Einfamilienhaus, projektiert nach Ihren individuellen Wünschen, bietet Ihnen mit 143,84 m² Wohnfläche und 4 Zimmern reichlich Platz für Ihre Familie. Auf einem großzügigen Grundstück von 684 m² erstreckt sich das moderne Haus über zwei Etagen und umfasst drei Schlafzimmer sowie zwei Badezimmer, eines davon ausgestattet mit Dusche, Wanne und Fenster. Mit einem ansprechenden Walmdach und der Möglichkeit, das Haus nach Ihren Vorstellungen zu gestalten, wird Ihr neues Zuhause nicht nur funktional, sondern auch ästhetisch ansprechend. Durch die Wahl der Ausbaustufe 1 - das Ausbauhaus - haben Sie die Möglichkeit, aktiv am Bauprozess teilzunehmen und Ihre Eigenleistung einzubringen. Dies ermöglicht Ihnen nicht nur, Kosten zu sparen, sondern auch, Ihr Zuhause ganz nach Ihren Vorstellungen zu gestalten. STREIF bietet Ihnen eine maßgeschneiderte Planung, die erst beginnt, wenn Ihre Wünsche vollständig erfasst sind.
***Zeitlose Eleganz: Einfamilienhaus mit gemütlichen Ambiente!!***
3139 Sehnde
Die vollständige Adresse der Immobilie erhalten Sie vom Anbieter.
Auf Karte anzeigen
Die vollständige Adresse der Immobilie erhalten Sie vom Anbieter.
Finanzierungszertifikat
In nur zwei Minuten zu Ihrem persönlichen Finanzierungszertifkat.
Infos
| Haustyp | Einfamilienhaus |
|---|---|
| Etagenzahl | 2 |
| Wohnfläche ca. | 143 m2 |
| Nutzfläche | 25 m2 |
| Grundstücksfläche | 684 m2 |
| Bezugsfrei ab | 2025 |
| Zimmer | 4 |
| Schlafzimmer | 3 |
| Badezimmer | 2 |
| Garage/Stellplatz | Carport |
| Anzahl Garage/Stellplatz | 1 |
Kosten
| Kaufpreis |
499.001 € |
|---|---|
| Preis für Garage/Stellplatz | 10 € |
| Provision | Nein |
Finanzierungsrechner:
Kaufpreis:
600.000 €
Eigenkapital:
600.000 €
Monatliche Rate
0 €
Effektiver Jahreszins
0 %
Sollzinsbindung
10 Jahre
Bausubstanz & Energieausweis
| Baujahr | 2025 |
|---|---|
| Bauphase | Haus in Planung (projektiert) |
| Qualität der Austattung | Gehoben |
| Heizungsart | Wärmepumpe |
| Energieausweis | liegt zur Besichtigung vor |
Beschreibung des Objekts
Ausstattung
Das Einfamilienhaus überzeugt durch eine gehobene Ausstattung, die Ihnen höchsten Komfort bietet. Der Bodenbelag kann nach Ihren Wünschen ausgewählt werden, wodurch Sie die Möglichkeit haben, individuelle Akzente zu setzen - sei es durch pflegeleichte Fliesen, warmen Parkett oder modernen Vinyl. Die Wärmeversorgung erfolgt über eine effiziente Wärmepumpe, die nicht nur umweltfreundlich ist, sondern auch für niedrige Energiekosten sorgt. Das Haus entspricht dem KFW40 Standard, was bedeutet, dass es über eine hervorragende Energieeffizienz verfügt und somit nicht nur Ihren Geldbeutel schont, sondern auch einen Beitrag zum Umweltschutz leistet.
Lage
Dieses wunderschöne Einfamilienhaus befindet sich in einem ruhigen Wohngebiet in Sehnde/Rethmar, das durch eine hervorragende Infrastruktur besticht. In unmittelbarer Nähe finden Sie alle notwendigen Einrichtungen wie eine Apotheke, Einkaufsmöglichkeiten, eine Grundschule, einen Kindergarten sowie Spielplätze und eine weiterführende Schule. Die Anbindung an den öffentlichen Nahverkehr ist durch Busverbindungen optimal, sodass Sie bequem in die umliegenden Städte gelangen. Die Umgebung bietet zudem zahlreiche Freizeitmöglichkeiten, die sowohl für Familien als auch für aktive Singles ideal sind.
Sonstige Angaben
Achtung: Klinkeraktion ist verlängert bis zum 31.12.2025
Bei STREIF haben Sie die Wahl zwischen vier verschiedenen Ausbaustufen, die es Ihnen ermöglichen, Ihr Traumhaus ganz nach Ihren Bedürfnissen zu gestalten. Die Standard-Ausbaustufe ist Fast-Fertig Plus. Bei diesem speziellen Projekt handelt es sich um die Ausbaustufe 1 - das Ausbauhaus, welches Sie bereits ab 239.193 EUR erwerben können. Durch Ihre Eigenleistung in Form einer Muskelhypothek können Sie nicht nur Barrieren abbauen, sondern auch Ihre Finanzierungskosten erheblich senken. Vor dem Bau finden ausführliche Beratungen statt, in denen Ihre Vorstellungen und Wünsche ermittelt werden. Der Bauprozess erfolgt zeitnah und wird in der von Ihnen gewünschten Ausbaustufe umgesetzt, sei es schlüsselfertig oder in einem Ausbau, der Ihnen die Gestaltung Ihres Eigenheims ermöglicht.
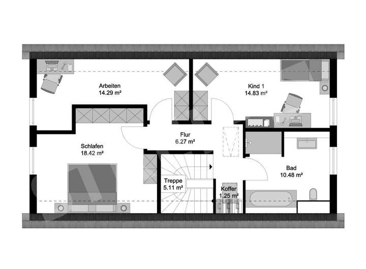
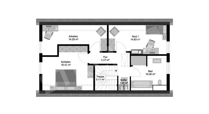
Grundriss
105299-8648-40-g
>
>
105301-8648-39-g
>
>
Adresse
3139 Sehnde
Interessante Orte
Preis- und Lageinformationen
Preistrend für Bestandsimmobilien in Sehnde