Diese hochwertige Doppelhaushälfte in KfW-40-QNG-Bauweise vereint modernes Wohnen mit echter Nachhaltigkeit. Die massive Holzbauweise (CLT) sorgt für ein natürliches, ausgeglichenes Raumklima und ein spürbares Wohlfühlambiente – warm im Winter, angenehm kühl im Sommer. Klare Architektur, durchdachte Grundrisse und die nachhaltige Bauweise machen dieses Haus zu einem Zuhause, das nicht nur heute überzeugt, sondern auch langfristig Bestand hat.
Moderne Doppelhaushälfte in Lohne – provisionsfrei zu verkaufen
49393 Lohne (Oldenburg)
Die vollständige Adresse der Immobilie erhalten Sie vom Anbieter.
Auf Karte anzeigen
Die vollständige Adresse der Immobilie erhalten Sie vom Anbieter.
Finanzierungszertifikat
In nur zwei Minuten zu Ihrem persönlichen Finanzierungszertifkat.
Infos
| Haustyp | Doppelhaushaelfte |
|---|---|
| Etagenzahl | 2 |
| Wohnfläche ca. | 125 m2 |
| Nutzfläche | 0 m2 |
| Grundstücksfläche | 280 m2 |
| Zimmer | 5 |
| Schlafzimmer | 3 |
| Badezimmer | 2 |
| Garage/Stellplatz | Außenstellplatz |
| Anzahl Garage/Stellplatz | 2 |
Kosten
| Kaufpreis |
419.000 € |
|---|---|
| Provision | Nein |
Finanzierungsrechner:
Kaufpreis:
600.000 €
Eigenkapital:
600.000 €
Monatliche Rate
0 €
Effektiver Jahreszins
0 %
Sollzinsbindung
10 Jahre
Bausubstanz & Energieausweis
| Baujahr | 2025 |
|---|---|
| Bauphase | Haus fertig gestellt |
| Energieausweis | liegt zur Besichtigung vor |
Beschreibung des Objekts
Ausstattung
Besonderheiten / Ausstattung:
- KfW-40-QNG-Standard (sehr energieeffizient)
- Photovoltaikanlage
- Luft-Wärmepumpe
- Zwei Tageslichtbäder
- Massive CLT-Holzbauweise mit Holzfaserdämmung – nachhaltig, langlebig, sehr gutes Raumklima
Lage
Lohne – unmittelbar am Stadtpark. Ruhige und grüne Wohnlage mit hohem Erholungswert. Innenstadt, Einkaufsmöglichkeiten, Schulen und Kindergärten sind in wenigen Minuten erreichbar. Gute Verkehrsanbindung bei gleichzeitig hoher Wohnqualität.
Sonstige Angaben
Steuerliche Vorteile für Kapitalanleger
Dieses Bauvorhaben erfüllt die Voraussetzungen für die Sonderabschreibung gemäß § 7b EStG (QNG-AfA) sowie für die degressive AfA nach § 7 Abs. 5a EStG. Käufer können – je nach steuerlicher Situation – zwischen beiden Modellen wählen:
• QNG-AfA: bis zu 5 % Sonderabschreibung über 4 Jahre + 3 % lineare AfA → bis zu 8 % p.a. in den ersten 4 Jahren
• Degressive AfA: bis zu 5 % jährlich auf den Restbuchwert
Ein deutlicher Vorteil für Kapitalanleger, die nachhaltig und steueroptimiert investieren wollen.
• Haftung: Alle Angaben nach bestem Wissen, Änderungen und Irrtümer vorbehalten.
Maßgeblich sind der notarielle Kaufvertrag und die Bau- und Leistungsbeschreibung. Energieausweis liegt zur Besichtigung vor.
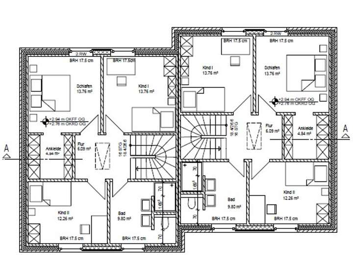
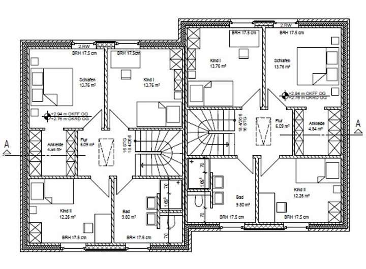
Grundriss
Grundriss EG.jpg
>
>
Grundriss OG.jpg
>
>
Adresse
49393 Lohne (Oldenburg)
Interessante Orte
Preis- und Lageinformationen
Preistrend für Bestandsimmobilien in Lohne (Oldenburg)