Hinweis: Die linke Seite der Doppelhaushälfte ist schon weg.
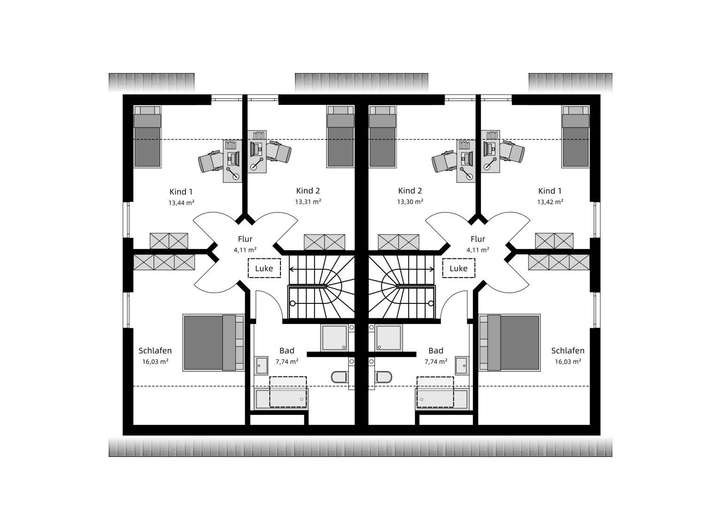
Willkommen in Ihrem zukünftigen Traumhaus in Braunschweig, einem modernen Doppelhaus rechts projektiert nach Ihren individuellen Wünschen. Auf einer großzügigen Wohnfläche von 127 m² erstreckt sich Ihr neues Zuhause über zwei Etagen und bietet mit 4 Zimmern, darunter 3 Schlafzimmer und 2 Badezimmer, ausreichend Platz für die ganze Familie. Das architektonische Konzept von STREIF ermöglicht es Ihnen, Ihre Vorstellungen und Bedürfnisse in die Planung einzubringen und so ein maßgeschneidertes Wohnkonzept zu verwirklichen. Die große Grundstücksfläche von 532 m² lässt Raum für Entfaltung im Außenbereich - sei es für einen Garten oder eine Terrasse zum Entspannen. Dank der hervorragenden Schallisolierung der STREIF Wandkonstruktion genießen Sie ruhiges Wohnen in der Nachbarschaft, sei es mit Freunden, Eltern oder einer anderen Familie.
**Moderne Doppelhaushälfte rechts-Ihr Traumhaus wartet mit Klinkeraktion! **
38108 Braunschweig
Die vollständige Adresse der Immobilie erhalten Sie vom Anbieter.
Auf Karte anzeigen
Die vollständige Adresse der Immobilie erhalten Sie vom Anbieter.
Finanzierungszertifikat
In nur zwei Minuten zu Ihrem persönlichen Finanzierungszertifkat.
Infos
| Haustyp | Doppelhaushaelfte |
|---|---|
| Etagenzahl | 2 |
| Wohnfläche ca. | 127 m2 |
| Nutzfläche | 25 m2 |
| Grundstücksfläche | 532 m2 |
| Bezugsfrei ab | 2025 |
| Zimmer | 4 |
| Schlafzimmer | 3 |
| Badezimmer | 2 |
Kosten
| Kaufpreis |
563.536 € |
|---|---|
| Provision | Nein |
Finanzierungsrechner:
Kaufpreis:
600.000 €
Eigenkapital:
600.000 €
Monatliche Rate
0 €
Effektiver Jahreszins
0 %
Sollzinsbindung
10 Jahre
Bausubstanz & Energieausweis
| Baujahr | 2025 |
|---|---|
| Bauphase | Haus in Planung (projektiert) |
| Qualität der Austattung | Gehoben |
| Heizungsart | Wärmepumpe |
| Energieausweis | liegt zur Besichtigung vor |
Beschreibung des Objekts
Ausstattung
Die Ausstattung Ihres neuen Zuhauses ist auf gehobenem Niveau gehalten. Die Befeuerung erfolgt durch eine effiziente Wärmepumpe, die nicht nur umweltfreundlich ist, sondern auch Ihre Energiekosten nachhaltig senkt. Der KFW40 Standard garantiert Ihnen ein energieeffizientes Wohnen mit maximalem Komfort. Für den Bodenbelag haben Sie die Wahl zwischen hochwertigen Fliesen oder einem Belag Ihrer Wahl, was Ihnen erlaubt, Ihr Zuhause ganz nach Ihrem Geschmack zu gestalten. Die Badezimmer sind mit Dusche, Wanne und Fenster ausgestattet - für ein Ambiente zum Wohlfühlen.
Lage
Das Doppelhaus befindet sich in einem attraktiven Wohngebiet von Braunschweig. Die Lage bietet eine ausgezeichnete Infrastruktur: In unmittelbarer Nähe finden Sie Apotheken, Einkaufsmöglichkeiten sowie Busverbindungen. Für Familien sind zahlreiche Bildungseinrichtungen wie Grundschulen, weiterführende Schulen und Kindergärten schnell erreichbar. Auch Spielplätze sind vorhanden und machen die Gegend besonders familienfreundlich.
Sonstige Angaben
Achtung. Klinkeraktion ist verlängert bis zum 31.12.2025
STREIF Haus - der Pionier der deutschen Fertighausbranche
Die langjährige Firmentradition des Unternehmens reicht bis in das Jahr 1929 zurück. In den 50er und 60er Jahren wurde in Deutschland schnell und viel Wohnraum für Familien benötigt, seitdem konzentrierte sich das Unternehmen auf die Entwicklung und Produktion von Fertighaustypen, die im Werk in großen Stückzahlen hergestellt werden konnten. So kann das Unternehmen auf 90.000 gebaute Hausobjekte zurückblicken und sich zu Recht als Pionier der deutschen Fertighausbranche bezeichnen.
Die neuen Energiesparhäuser - So baut man heute.
Unser Anspruch ist es, in enger Partnerschaft mit unseren Kunden langlebige Häuser zu bauen, mit einer hohen architektonischen Qualität, individuell geplant und dabei energieeffizient und ressourcenschonend. Jedes STREIF-Haus ist einzigartig und wird speziell für jeden Kunden "maßgeschneidert" und gebaut. Passend zu den persönlichen Wünschen, dem vorgegebenen Budget und dem vorhandenen Grundstück planen und bauen wir jedes Haus mit viel Liebe zum Detail.
Grundriss
105492-8656-1-g
>
>
105495-8656-4-g
>
>
Adresse
38108 Braunschweig
Interessante Orte
Preis- und Lageinformationen
Preistrend für Bestandsimmobilien in Schunteraue