Der Preis bezieht sich auf das Haus, inkl. Grundstück und Baunebenkosten.
Die Grunderwerbsteuer fällt nur auf die Grundstückskosten an
Herzlich willkommen bei STREIF, Ihrem zuverlässigen Partner für den Bau Ihres Traumhauses. Wir freuen uns, Ihnen unser projektiertes Einfamilienhaus vorstellen zu dürfen, das nach Ihren individuellen Wünschen und Vorstellungen gebaut wird.
Änderungen erwünscht!
Wir planen 1:1 nach Ihren Vorstellungen
Garantiert:
6 Monate Bauzeit
20 Monate Festpreis-Garantie
30 Jahre Garantie auf die Konstruktion
Alles Inklusive:
-Fundament, Bodenplatte und Erdarbeiten
-PV Anlage mit Batteriespeicher
-Arbeitsgerüst
-Bauleitung
-Krankosten
-Baustellentoilette
-Entsorgung Bauabfälle
-Statik
-Wärmeschutznachweis mit Blower-Door Test
-freie Grundrissänderung ohne Mehrpreis
-Mehrfach ausgezeichnete Qualität
Lassen Sie sich von der Qualität und Zuverlässigkeit von STREIF überzeugen und verwirklichen Sie Ihren Traum vom eigenen Zuhause - gemeinsam mit uns!
-inkl. Grundstück- Ihr neues STREIF Haus in 38165 Lehre
38165 Lehre
Die vollständige Adresse der Immobilie erhalten Sie vom Anbieter.
Auf Karte anzeigen
Die vollständige Adresse der Immobilie erhalten Sie vom Anbieter.
Finanzierungszertifikat
In nur zwei Minuten zu Ihrem persönlichen Finanzierungszertifkat.
Infos
| Haustyp | Einfamilienhaus |
|---|---|
| Etagenzahl | 2 |
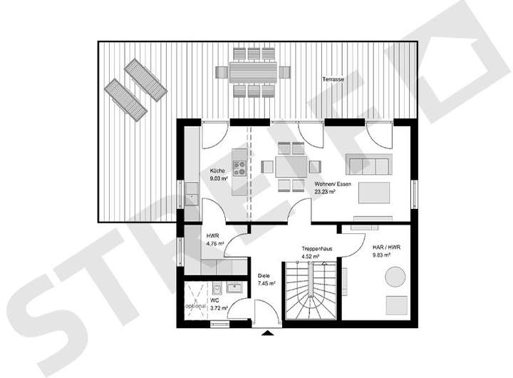
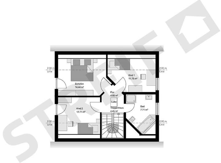
| Wohnfläche ca. | 118 m2 |
| Grundstücksfläche | 800 m2 |
| Zimmer | 5 |
| Schlafzimmer | 3 |
| Badezimmer | 1 |
Kosten
| Kaufpreis |
585.000 € |
|---|
Finanzierungsrechner:
Kaufpreis:
600.000 €
Eigenkapital:
600.000 €
Monatliche Rate
0 €
Effektiver Jahreszins
0 %
Sollzinsbindung
10 Jahre
Bausubstanz & Energieausweis
| Baujahr | 2026 |
|---|---|
| Bauphase | Haus in Planung (projektiert) |
| Objektzustand | Erstbezug |
| Qualität der Austattung | Gehoben |
| Heizungsart | Wärmepumpe |
Beschreibung des Objekts
Ausstattung
Ausstattung
STREIF-Häuser sind Energiesparhäuser. Die STREIF-Passiv-Außenwände und eine sparsame Heiztechnik mit integrierter Wohnraumlüftung und Wärmerückgewinnung, garantieren einen geringen Energieverbrauch und ein fantastisches Raumklima, das insbesondere Allergiker aufatmen lässt.
- 20 Monate Festpreisgarantie
- Inklusive gedämmter Fundamentplatte
- Inkl. STREIF-Luft-Luft-Wärmepumpen-Technologie mit integrierter Lüftungsanlage mit Wärmerückgewinnung
- Inkl. Haustür von KERA und Fenster von Porta/Kömmerling. Fenster farbig, zum Beispiel innen in Weiß und
außen in Anthrazit, mit elektrischen IO-Funkrollläden
- Inkl. Massivholz-Geschosstreppe aus eigener Produktion
- Inkl. Sanitärobjekte von Markenherstellern
- Inkl. Elektroinstallation
- Inkl. individuelle Grundrissgestaltung und Raumaufteilung
Die hohe Wertigkeit und Langlebigkeit eines STREIF-Energiespar-Hauses werden durch zahlreiche Auszeichnungen, Qualitäts- und Gütesiegel unabhängiger Institute und Verbände dokumentiert.
Der Angebotspreis ist inklusive Grundstück und Baunebenkosten und bezieht sich auf die Ausbaustufe -einzugsfertig-.
Bilder können evtl. Anbauteile, Carports, Balkone, Gauben usw. zeigen, die nicht im Angebotspreis enthalten sind.
Änderungen und Irrtümer vorbehalten.
Lage
Ein wunderschönes ca. 800 m² großes Grundstück
in ruhiger Randlage von Lehre wartet auf neue Eigentümer mit hohen Ansprüchen.
Adresse
38165 Lehre
Interessante Orte
Preis- und Lageinformationen
Preistrend für Bestandsimmobilien in Lehre