»Swingin‘ Riedberg« steht für das TOPWohnKonzept der LECHNER GROUP im Riedberg Westflügel. Entsprechend dem städtebaulichen Leitbild mit seinen an der Natur orientierten geschwungenen Straßen und Wegen entstehen Ensembles in vielfältiger und außergewöhnlicher Architektur.
Das Ergebnis sind Eigenheime, die dem natürlichen Bedürfnis ihrer Bewohner nach Individualität und Geborgenheit entsprechen. Ein besonderes Wohnerlebnis garantiert jedes der zehn exklusiven Townhouses, die wir Ihnen hier vorstellen. »TOP 1O« ist „Harmonie pur“ in Architektur.
Die beiden Reihenhauszeilen aus jeweils fünf Eigenheimen bilden zusammen das Wohnkonzept »TOP 1O«. Das hier angebotene Haus gehört zur südlichen Reihe der Eigenheime, die den zweiten und letzten Bauabschnitt bildet.
Im Inneren gibt die durchdachte Grundrissplanung auf drei Ebenen jedem Familienmitglied viel Raum für die individuelle Entfaltung. Großzügige Privatgärten sowie abgeschirmte Dachterrassen setzen das faszinierende Wohnerlebnis der eigenen "vier Wände" im Außenbereich fort – Freiheit pur! Besonderes Highlight: im Anschluss an die Gartenhütte befindet sich eine zusätzliche Terrasse als Freisitz, der in der wärmeren Jahreszeit vielfältige Nutzungsmöglichkeiten bietet.
Dieses Haus bietet Platz für die große Familie: Herzstück des Erdgeschosses ist der offen gestaltete Wohn-, Ess- und Kochbereich. Die offene Küche fügt sich harmonisch in den Raum ein – perfekt für gemeinsames Kochen, Familienleben und gesellige Abende. Praktisches Detail: die direkte Verbindung vom Carport ins Haus - ideal (nicht nur) an regnerischen Tagen.
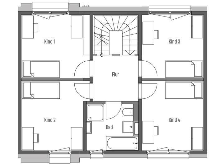
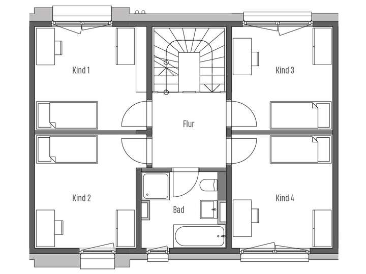
Im Obergeschoss finden vier (Schlaf-)Räume Platz, die aufgrund ihrer Größe sowie des praktischen Zuschnitts flexibel nutzbar sind. Weiterhin befindet sich hier ein attraktives Tageslichtbad mit Badewanne und Dusche.
Das vollständig ausgebaute Dachgeschoss bietet Raum für ein weiteres Schlafzimmer mit angeschlossener Ankleide (alternativ auch als weiteres Schlaf-, Gäste oder Arbeitszimmer mit eigenem Zugang vom Flur nutzbar) sowie ein großzügiges Tageslichtbad mit Badewanne. Ergänzt wird der Wohnbereich um eine nach Westen ausgerichtete, ca 22 m² große Dachterrasse.
Ihr exclusives Townhouse am Riedberg wartet auf Sie | 7 Zimmer - 151 m² Wfl. | Garten, Dachterrasse
Mart-Stam-Straße 16-24,
60438 Frankfurt am Main
Auf Karte anzeigen
Finanzierungszertifikat
In nur zwei Minuten zu Ihrem persönlichen Finanzierungszertifkat.
Infos
| Haustyp | Reihenmittelhaus |
|---|---|
| Etagenzahl | 3 |
| Wohnfläche ca. | 150 m2 |
| Grundstücksfläche | 276 m2 |
| Bezugsfrei ab | 4. Quartal 2027 |
| Zimmer | 7 |
| Schlafzimmer | 6 |
| Badezimmer | 2 |
| Garage/Stellplatz | Carport |
Kosten
| Kaufpreis |
1.526.200 € |
|---|---|
| Provision | Nein |
Finanzierungsrechner:
Kaufpreis:
600.000 €
Eigenkapital:
600.000 €
Monatliche Rate
0 €
Effektiver Jahreszins
0 %
Sollzinsbindung
10 Jahre
Bausubstanz & Energieausweis
| Baujahr | 2027 |
|---|---|
| Objektzustand | Erstbezug |
| Qualität der Austattung | Gehoben |
| Heizungsart | Zentralheizung |
| Wesentliche Energieträger | Fernwärme |
| Energieausweis | liegt vor |
| Energieausweistyp | Bedarfsausweis |
Beschreibung des Objekts
Ausstattung
Ihr Eigenheim wird in wohngesunder und wertbeständiger Massivbauweise errichtet. Wir übergeben es Ihnen bezugsfertig mit allen Ausstattungselementen, die Sie individuell konfigurieren.
Bei der Vorauswahl der TOPAusstattung haben wir großen Wert auf Ihren Komfort und die hohe Qualität der Produkte gelegt. Sie entscheiden, welches Design Ihrem persönlichen Lebensstil und dem Anspruch an Ihr Zuhause entspricht!
- Massivbauweise
- Dachgeschoss ausgebaut
- Energiestandard KfW 55 (Basis GEG 2020)
- Energieeffiziente Heiztechnik (Fernwärme)
- Energiesparende Fußbodenheizung im EG, OG und DG
- Elektrisch betriebene Rollläden
- Marken-Sanitärausstattung (Duravit, Geberit, Grohe)
- Parkettböden in allen Wohnräumen
- Fliesen in einer großen Auswahl
- Überhohe Türen (2,12 m) in allen Wohngeschossen
- Netzwerkverkabelung CAT7 (Telefon / Netzwerk)
- Dachterrasse
- Privatgarten mit Terrasse und sonnigem Freisitz
- Außenanlagen, Pflasterarbeiten, Zäune und Gartenhütte: alles inklusive
Lage
Zu den ersten Adressen für schönes Wohnen zählt Frankfurt Riedberg. Neben den großzügigen Parkanlagen bietet Riedberg eine vielfältige Infrastruktur und gleichzeitig die Nähe zur Frankfurter City.
Besonders interessant für die Familien unter den zukünftigen Bewohnern: Kindergarten, Grund- und weiterführende Schulen sind zu Fuß in maximal 10 Minuten erreichbar.
Das Riedbergzentrum mit seinen vielfältigen Einkaufsmöglichkeiten, Gastronomieangeboten, Apotheke und Ärztehaus sowie vielen weiteren Dienstleistungen ist ebenfalls in wenigen Minuten zu Fuß, mit dem Fahrrad oder dem Auto erreichbar.
Die Verkehrsanbindung nach Frankfurt sowie in das Umland ist durch die eigene Autobahnauffahrt sowie den Anschluss an den öffentlichen Nahverkehr mit Bus und U-Bahn ideal gelöst.
Abgerundet wird der Riedberg-Westflügel durch zahlreiche attraktive Grünflächen und Spielplätze.
Sonstige Angaben
Kompetente Beratung auch abends und am Wochenende - wir nehmen uns genügend Zeit, um alle Ihre Fragen rund um Ihren Immobilienwunsch zu beantworten. Zur Terminvereinbarung erreichen Sie unseren Verkaufsberater Eric Jost unter 0160 987 33 633.
Wir freuen uns auf Ihren Besuch!
Wir sind ein Familienunternehmen – wir bauen für Familien
Als Tochterunternehmen der LECHNER GROUP sind wir Teil einer mittelständischen und in vierter Generation eigentümergeführten Firmenfamilie mit mehr als 120-jähriger Bauerfahrung. Georg Heinritz, der Urgroßvater des heutigen Unternehmensleiters, Bernd Lechner, gründete im Jahre 1904 das erste Baugeschäft in Uehlfeld, Bayern.
Seit 2004 liegt ein Schwerpunkt der Aktivitäten der Gruppe in der Projektentwicklung und schlüsselfertigen Errichtung von Objekten in der Metropolregion FrankfurtRheinMain. In Riedberg, Frankfurts jüngstem Stadtteil, wurden seither rund 1.000 Wohneinheiten übergeben. Neben Eigentumswohnungen sind hier auch eine Vielzahl an Doppel- und Reihenhäusern für junge Familien entstanden.
Grundriss
Grundriss EG
>
>
Grundriss OG
>
>
Grundriss DG
>
>