Willkommen in einem außergewöhnlichen Haus in Frohburg Ortsteil Kohren-Sahlis, das auf einer Fläche von 450 Quadratmetern wunschgemäßes Wohnen bietet. Dieses teilsanierte Objekt aus dem Jahr 1950 wurde zuletzt 2017 modernisiert und beeindruckt mit einem Wohnbereich von 215 Quadratmetern, der sich über zehn stilvolle Räume erstreckt. Betreten Sie ein Heim voller Charme und Geschichte, in dem Sie Ihre eigenen Kreativität freien Lauf lassen können. Jeder Raum strahlt eine warme und einladende Atmosphäre aus, die zum Verweilen einlädt und aus dem Sie Ihr Domizil machen können. Besondere Merkmale dieses Anwesens sind der Garten und der vollwertige Keller, die zusätzliche Flexibilität und Freiraum bieten. Die harmonische Verbindung von Alt und Neu macht dieses Haus zu einem einzigartigen Rückzugsort. Erleben Sie die perfekte Symbiose aus Tradition und Moderne in diesem Anwesen in Frohburg. Ein einzigartiges Angebot für Liebhaber, die sich ihr Heim selbst kreieren wollen. Dieses Zukunftsdomizil wartet darauf, von Ihnen vollendet zu werden.
Ihr Traumhaus nimmt Gestalt an – gestalten Sie es nach Ihren Vorstellungen!
04654 Kohren-Sahlis
Die vollständige Adresse der Immobilie erhalten Sie vom Anbieter.
Auf Karte anzeigen
Die vollständige Adresse der Immobilie erhalten Sie vom Anbieter.
Finanzierungszertifikat
In nur zwei Minuten zu Ihrem persönlichen Finanzierungszertifkat.
Infos
| Haustyp | Sonstige |
|---|---|
| Etagenzahl | 3 |
| Wohnfläche ca. | 214 m2 |
| Nutzfläche | 332 m2 |
| Grundstücksfläche | 450 m2 |
| Zimmer | 10 |
| Badezimmer | 1 |
| Anzahl Garage/Stellplatz | 3 |
Kosten
| Kaufpreis |
100.000 € |
|---|---|
| Provision |
5.95 % inkl. gesetzl. MwSt. |
Finanzierungsrechner:
Kaufpreis:
600.000 €
Eigenkapital:
600.000 €
Monatliche Rate
0 €
Effektiver Jahreszins
0 %
Sollzinsbindung
10 Jahre
Bausubstanz & Energieausweis
| Baujahr | 1950 |
|---|---|
| Letzte Sanierung | 2017 |
| Wesentliche Energieträger | Gas |
| Energieausweis | laut Gesetz nicht erforderlich |
Beschreibung des Objekts
Ausstattung
Vollunterkellert
Lage
Entdecken Sie ein unvergleichliches Lebensgefühl in einem Ortsteil von Frohburg, einem charmanten Ort in Sachsen, der sich perfekt für anspruchsvolle Käufer eignet, die eine ruhige und dennoch gut angebundene Lage schätzen. Diese noch nicht fertiggestellte Immobilie bietet eine Oase der Ruhe inmitten einer idyllischen Landschaft, während sie gleichzeitig in der Nähe der pulsierenden Städte Leipzig und Chemnitz liegt. Die Infrastruktur in Frohburg ist hervorragend: Mit dem Auto erreichen Sie Leipzig in etwa 40 Minuten und Chemnitz in 45 Minuten, während der Bahnhof Frohburg schnelle Verbindungen in die Region bietet. Für den täglichen Bedarf stehen zahlreiche Einkaufsmöglichkeiten, Schulen und Gesundheitszentren zur Verfügung. Freizeitaktivitäten sind in Frohburg reichlich vorhanden. Genießen Sie Spaziergänge in der unberührten Natur, erkunden Sie die historischen Sehenswürdigkeiten der Umgebung oder entspannen Sie bei einem Tag am nahegelegenen Haselbacher See. Golfliebhaber werden die Nähe zum Golfplatz Machern zu schätzen wissen. Besondere Merkmale der Lage sind die historische Architektur und die Nähe zur Natur, die Frohburg zu einem begehrten Wohnort machen. Die Umgebung bietet eine perfekte Mischung aus Tradition und Moderne, die sowohl Ruhe als auch eine aktive Freizeitgestaltung ermöglicht. Frohburg ist der ideale Ort, um ein Leben in Luxus und Komfort zu führen, während Sie die natürliche Schönheit und kulturelle Vielfalt der Region genießen. Lassen Sie sich von der einzigartigen Atmosphäre dieser exklusiven Lage verzaubern.
Sonstige Angaben
Der Makler-Vertrag mit uns kommt durch die Beauftragung der Maklertätigkeit in Textform (z.B. E-Mail mit Bestätigung der gewollten Inanspruchnahme) zustande. Die Höhe der Courtage richtet sich nach den ab dem 23.12.2020 in Kraft getretenen gesetzlichen Regelungen zur Teilung der Maklercourtage. Hiernach wird die Courtage regelmäßig für beide Parteien (Eigentümer und Käufer) jeweils in Höhe von 5 % zuzüglich Umsatzsteuer in jeweils geltender Höhe, derzeit also insgesamt 5,95 % des Kaufpreises einschließlich Umsatzsteuer bei notariellem Vertragsabschluss verdient und fällig. Die Höhe der Bruttocourtage unterliegt einer Anpassung bei Steuersatzänderung. Grunderwerbssteuer, Notar- und Gerichtskosten trägt der Käufer. Alle Angaben sind ohne Gewähr und basieren ausschließlich auf Informationen, die uns von unserem Auftraggeber übermittelt wurden. Wir übernehmen keine Gewähr für die Vollständigkeit, Richtigkeit und Aktualität dieser Angaben. Zwischenverkauf bleibt vorbehalten. Sollte das von uns nachgewiesene Objekt bereits bekannt sein, teilen Sie uns dieses bitte unverzüglich mit. Die Weitergabe dieses Exposees an Dritte ohne unsere Zustimmung löst gegebenenfalls Courtage- bzw. Schadensersatzansprüche aus. Im Übrigen gelten die beigefügten allgemeinen Geschäftsbedingungen für die Rechtsbeziehung zwischen Ihnen und der Saxonia Metropol GmbH (Lizenznehmer der Engel & Völkers Residential GmbH).
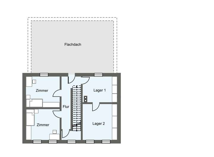
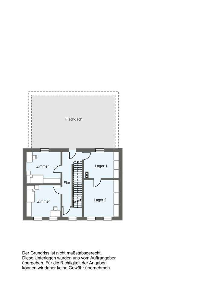
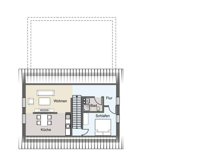
Grundriss
Erdgeschoss
>
>
Obergeschoss
>
>
Dachgeschoss
>
>
Kellergeschoss
>
>
Adresse
04654 Kohren-Sahlis
Interessante Orte
Preis- und Lageinformationen
Preistrend für Bestandsimmobilien in Kohren-Sahlis