Das von uns exklusiv angebotene Anwesen befindet sich in ruhiger Lage in Dreieichenhain, einem der begehrtesten Wohnorte im Rhein-Main-Gebiet, unweit von Frankfurt.
Willkommen in einem Einfamilienhaus, das Ihnen ein außergewöhnliches Zusammenspiel aus hervorragender Bausubstanz, bereits umfangreich modernisierter Technik und beeindruckendem Entwicklungspotenzial bietet. In sonniger Süd-West-Lage und auf einem charaktervollen Hanggrundstück gelegen, präsentiert sich diese Immobilie als ein nahezu vollständig entkerntes Zuhause, das die perfekte Grundlage für eine hochwertige, individuelle Fertigstellung schafft. Zahlreiche essenzielle Arbeiten – von der statischen Ertüchtigung über die Gebäudeabdichtung bis hin zu neuen Leitungen, Fenstern und Haustechnik – wurden bereits mit hohem Qualitätsanspruch umgesetzt. So erhalten Sie die seltene Möglichkeit, ein Haus in bester Struktur zu übernehmen und die finalen Ausbauschritte ganz nach Ihren Vorstellungen zu gestalten. Die im Angebot hinterlegten Bilder zeigen den aktuellen Stand der Sanierung und bieten Ihnen durch unverbindliche Visualisierungen eine ungefähre Grundlage zu dem später einmal fertiggestellten Haus.
Unvollendetes Traumhaus in herrlicher Lage
63303 Dreieich
Die vollständige Adresse der Immobilie erhalten Sie vom Anbieter.
Auf Karte anzeigen
Die vollständige Adresse der Immobilie erhalten Sie vom Anbieter.
Finanzierungszertifikat
In nur zwei Minuten zu Ihrem persönlichen Finanzierungszertifkat.
Infos
| Haustyp | Einfamilienhaus |
|---|---|
| Etagenzahl | 2 |
| Wohnfläche ca. | 208 m2 |
| Nutzfläche | 37 m2 |
| Grundstücksfläche | 738 m2 |
| Bezugsfrei ab | Ab sofort |
| Zimmer | 6 |
| Schlafzimmer | 3 |
| Badezimmer | 2 |
| Garage/Stellplatz | Garage |
| Anzahl Garage/Stellplatz | 2 |
Kosten
| Kaufpreis |
1.570.000 € |
|---|---|
| Provision |
3,57 % inkl. MwSt. Die Provision in Höhe von 3,57 % versteht sich inkl. MwSt. und wird fällig bei Unterzeichnung des Kaufvertrages. Zahlbar durch den Käufer. |
Finanzierungsrechner:
Kaufpreis:
600.000 €
Eigenkapital:
600.000 €
Monatliche Rate
0 €
Effektiver Jahreszins
0 %
Sollzinsbindung
10 Jahre
Bausubstanz & Energieausweis
| Baujahr | 1962 |
|---|---|
| Letzte Sanierung | 2025 |
| Bauphase | Haus im Bau |
| Energieausweis | liegt zur Besichtigung vor |
Beschreibung des Objekts
Ausstattung
Aufteilung:
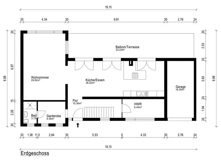
Das Einfamilienhaus erstreckt sich über ein Erdgeschoss auf Straßenniveau sowie ein vollwertiges Gartengeschoss, das sich dank der Hanglage ebenerdig zum Garten öffnet. Über eine kleine Brücke gelangen Sie vom Straßenniveau direkt zum Hauseingang des Erdgeschosses. Hier empfängt Sie ein großzügiger Wohn- und Essbereich: Das helle Wohnzimmer mit knapp 30 m² bietet viel Raum für individuelles Wohnen und ist über einen breiten Durchgang harmonisch mit dem offen gestalteten Küchen- und Essbereich verbunden. So entsteht eine besonders großzügige Raumwirkung, die durch die große Fensterfront und den herrlichen Blick ins Tal zusätzlich unterstrichen wird. Der rund 36 m² große Küchen- und Essbereich verfügt über direkten Zugang zur überdachten Süd-West-Terrasse. Der vorgelagerte Balkon geht fließend in das Hanggrundstück über und ermöglicht einen direkten Zugang zum Gartengelände. Diese Verbindung von Innen- und Außenraum lädt zu sonnigen Stunden bis in den Abend ein. Ergänzt wird das Erdgeschoss durch ein kompaktes Bad, eine Garderobe, einen praktischen Abstell- und Hauswirtschaftsraum sowie eine integrierte Garage.
Über das innenliegende Treppenhaus erreichen Sie das Gartengeschoss, das durch die Hanglage einen direkten Zugang zum Garten bietet. Hier stehen Ihnen drei gut geschnittene Schlafzimmer, ein weiteres flexibel nutzbares Zimmer – ideal als Büro, Gäste- oder Hobbyraum – sowie ein Badezimmer zur Verfügung. Ein großer Flur verbindet die Räume miteinander und schafft eine klare, funktionale Aufteilung. Der Technik- und Hausanschlussraum sowie ein zusätzlicher Abstellraum sind geschickt in den Grundriss integriert. Die Raumnutzung können Sie noch individuell Ihren Wünschen anpassen.
Die Gartengestaltung hat bereits begonnen. Die geschosshoch auslaufende Natursteinwand verbindet das Gebäude und damit die Terrassen beider Ebenen auf stimmige Weise. Besonders hervorzuheben ist die große Terrasse auf Gartenhöhe, die Sie direkt ins Freie führt und den Wohnkomfort dieses Geschosses zusätzlich unterstreicht.
Stand der Sanierung:
Die bereits am Haus und den Außenanlagen durchgeführten Arbeiten bilden einen erheblichen Wertanteil, da zahlreiche technische Gewerke bereits fertiggestellt wurden. Alle Arbeiten wurden durch regionale Unternehmen durchgeführt, die auch zur Fertigstellung zur Verfügung stehen. Im Exposé finden Sie eine Übersicht zu den Arbeiten, die bereits durchgeführt wurden. Ebenso wird benannt, welche Arbeiten noch durchzuführen sind. Diese sind zum Großteil auch mit entsprechenden Angeboten von den Unternehmen belegt und können bei konkretem Interesse selbstverständlich eingesehen werden.
Angaben zum Energieausweis:
Eine Öl-Heizung wurde bereits geliefert (preislich enthalten) und müsste noch angeschlossen werden (die berechnete Energieeffizienzklasse liegt bei C). Als alternative Heizungsart und von einem Energieberater empfohlen, würde sich auch eine Luft-Wärme-Pumpe mit zusätzlicher PV-Anlage wunderbar eignen (die berechnete Energieeffizienzklasse läge bei A+).
Lage
Das Objekt liegt in Dreieichenhain, einem beliebten Dreieicher Stadtteil südlich Frankfurts.
Kindergarten und Grundschule sind nur wenige Minuten entfernt, die weiterführende Gesamtschule Weibelfeldschule, das Gymnasium Ricarda-Huch-Schule sowie die renommierte Strothoff International School mit integriertem Kindergarten sind von hier aus gut mit dem Fahrrad erreichbar. Geschäfte für den täglichen Bedarf, Restaurants und eine große Auswahl von Ärzten finden Sie im Sprendlinger Zentrum oder auch in Dreieichenhain.
Die Bahn erreichen Sie in wenigen Minuten mit dem Fahrrad. Sie führt im Halbstundentakt nach Buchschlag, von wo aus die S-Bahnen im Viertelstundentakt nach Frankfurt und Darmstadt fahren.
Profitieren Sie von erstklassiger Anbindung an den Frankfurter Flughafen; Busse starten unter anderem alle 30 Minuten zum Terminal 1. Die Frankfurter Innenstadt erreichen Sie in rund 25 Autominuten, die Jugendstilstadt Darmstadt ebenfalls in rund 25 Autominuten. Die A 661 liegt in ca. vier Kilometern, die A 5 in ca. 9 Kilometern Entfernung.
Für die Freizeit haben Sie in direkter Umgebung wunderbare Felder, die zum Spazieren, Joggen und Radfahren einladen. Sportvereine sind sowohl in Dreieichenhain als auch im nahgelegenen Götzenhain beheimatet. Darüber hinaus bietet Sprendlingen ein großes Angebot an Fussball- und anderen Vereinen. Ebenso nur wenige Minuten von der Liegenschaft entfernt liegt das Hofgut Neuhof mit seinen tollen Restaurants, Reitmöglichkeiten und dem wunderbar angelegten Golfplatz.
Sonstige Angaben
Alle Angaben stammen vom Eigentümer. Es gibt keine Gewähr für die Vollständigkeit und Richtigkeit der Angaben. Es gelten unsere AGB.
Grundriss
Grundriss Gartengeschoss
>
>
Grundriss Erdgeschoss
>
>
Adresse
63303 Dreieich
Interessante Orte
Preis- und Lageinformationen
Preistrend für Bestandsimmobilien in Dreieich