Zum Verkauf steht ein vollunterkellertes Einfamilienhaus mit Garage in bester Wohnlage von Calberlah. Das Haus aus dem Jahr 1976 ist sehr gut erhalten, sofort bezugsfähig, steht auf einem 581 qm großen Eigentumsgrundstück und hat eine solide Außenfassade aus Kalksandsteinen.
Ca. 97 qm Wohnfläche bieten eine interessante Raumaufteilung mit 4 Zimmern im Erdgeschoß, darunter ein komplett ausgebauter Wohnkeller in einem außergewöhnlich guten Zustand, inklusive eines separaten Eingangs.
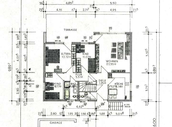
Über 4 Treppenstufen betritt man den Flur des Hauses und erreicht die weiteren Räume u.a. das Gäste-WC, Küche, Wohnzimmer, mit Zugang zur überdachten Terrasse, Kinderzimmer, Schlafzimmer, Gästezimmer/Büro, Badezimmer mit Badewanne und Dusche, sowie einen kleinen Abstellraum.
Hervorzuheben ist, dass die komfortabel angelegten Räume im Erdgeschoß sehr lichtdurchflutet sind und der Ausblick von der Südterrasse in den schön angelegten Garten mit einem kleinen Teich, ein Highlight dieser Immobilie ist.
Die Hauseingangstür und diverse Fenster wurden im Jahr 2009 komplett erneuert. Den exklusiven Wohnkeller erreicht man ergänzend zum Außeneingang auch von innen.
2021 wurde die Heizungsanlage durch eine Gas-Brennwerttherme ersetzt. Das gesamte Haus ist mit Rollläden an den Fenstern versehen. Die Fußböden sind unterschiedlich mit Laminat und Fliesen von guter Qualität ausgelegt.
Im Außenbereich befinden sich eine geschlossene Garage mit anliegender Werkstatt / Hobbyraum, ein kleiner Geräteschuppen mit Wasserbrunnen, ein gut erhaltenes Gartenhaus, sowie ein kleiner Gartenteich. Ihr Fahrzeug können Sie wettergeschützt in der gemauerten Garage abstellen. Auf der Zufahrt befinden sich weitere Parkplätze für ein Zweitfahrzeug oder Besucher.
Dieses tolle Einfamilienhaus ist ein ideales Domizil für Paare, Familien mit 4 Personen oder rüstige Senioren. Lassen Sie sich von dem hervorragend gepflegten Zustand des Hauses mit schönem Garten in der sonnigen und sehr ruhigen Ortslage persönlich überzeugen.
Gepflegtes Einfamilienhaus in Fertigbauweise mit Keller in ruhiger Lage der Ortsmitte von Calberlah
38547 Calberlah
Die vollständige Adresse der Immobilie erhalten Sie vom Anbieter.
Auf Karte anzeigen
Die vollständige Adresse der Immobilie erhalten Sie vom Anbieter.
Finanzierungszertifikat
In nur zwei Minuten zu Ihrem persönlichen Finanzierungszertifkat.
Infos
| Haustyp | Einfamilienhaus |
|---|---|
| Etagenzahl | 1 |
| Wohnfläche ca. | 97 m2 |
| Grundstücksfläche | 581 m2 |
| Bezugsfrei ab | sofort |
| Zimmer | 4 |
| Schlafzimmer | 3 |
| Badezimmer | 2 |
| Garage/Stellplatz | Garage |
| Anzahl Garage/Stellplatz | 2 |
Kosten
| Kaufpreis |
259.000 € |
|---|---|
| Provision |
6.475,00 EUR Die Provision entspricht 2,5% inkl. MwSt. des tatsächlichen Kaufpreises. Die Provision ist verdient und fällig mit notarieller Beurkundung. Der Immobilienmakler hat einen provisionspflichtigen Maklervertrag in gleicher Höhe mit dem Verkäufer abgeschlossen. |
Finanzierungsrechner:
Kaufpreis:
600.000 €
Eigenkapital:
600.000 €
Monatliche Rate
0 €
Effektiver Jahreszins
0 %
Sollzinsbindung
10 Jahre
Bausubstanz & Energieausweis
| Baujahr | 1976 |
|---|---|
| Letzte Sanierung | 2021 |
| Objektzustand | Gepflegt |
| Qualität der Austattung | Normal |
| Heizungsart | Gas-Heizung |
| Wesentliche Energieträger | Gas |
| Energieausweis | liegt zur Besichtigung vor |
Beschreibung des Objekts
Ausstattung
Einfamilienhaus mit 97 qm Wohnfläche, 1976 erbaut, voll verklinkert
Schönes und gepflegtes Eigentumsgrundstück mit einer Größe von ca. 581 qm
Massiv gebaute Garage mit Nebengebäude
Einbauküche gut erhalten und funktionsfähig
Gäste-WC, Badezimmer mit Badewanne und Dusche – guter Zustand
Rollläden an den gesamten Fenstern und Terrassenelementen
Schornstein mit Schieferplatten versehen
Gartenhaus
Fußböden – Fliesen – Laminat
Große teilüberdachte Sonnenterrasse mit Markise.
Sitzecke im Garten
ca. 1995: neue Einbauküche
ca. 2009: neues Haustürelement und 3 weitere Fenster erneuert.
2021: neue Gasbrennwerttherme mit Warmwasserspeicher
Lage
Das Einfamilienhaus befindet sich in einer ruhigen Nebenstraße, die in einer Sackgasse endet. Die zentrale Lage im schönen Ort Calberlah (5.200 Einwohner) im Landkreis Gifhorn macht das Haus sehr attraktiv. Die Entfernung zum Ortskern beträgt nur ca. 400 m, in dem die komplette Infrastruktur abgedeckt ist. In wenigen Minuten erreicht man auch bequem fußläufig mehrere Supermärkte, Ärzte, Banken, eine Apotheke, Sport- und Schuhfachgeschäft, sowie eine Tankstelle, Restaurants sind ebenfalls mehrfach vorhanden.
Für die sportlichen Aktivitäten stehen Tennis- u. Fußballplätze, sowie eine große Halle für vielseitige Sportarten zur Verfügung. Es gibt 3 Kindergärten, eine Grund- u. Realschule mit Ganztagsbetreuung. Der Bahnhof, sowie die Bushaltestellen sind in wenigen Minuten erreichbar.
Sonstige Angaben
Alle Objektangaben wurden sorgfältig zusammengestellt. Diese beruhen auf Mitteilungen des Veräußerers oder wurden aus der Bauakte entnommen, eine Haftung für deren Richtigkeit wird nicht übernommen.
Die Grundrisse dienen nur der Veranschaulichung. Wir weisen ausdrücklich darauf hin, dass sie nicht maßstabgetreu sind und von den tatsächlichen Gegebenheiten abweichen können.
Die Provision entspricht 2,5% inkl. MwSt. des tatsächlichen Kaufpreises. Die Provision ist verdient und fällig mit notarieller Beurkundung. Der Immobilienmakler hat einen provisionspflichtigen Maklervertrag in gleicher Höhe mit dem Verkäufer abgeschlossen.
Grundriss
k-Grundriss_EG
>
>
k-Grundriss_KG
>
>
Adresse
38547 Calberlah
Interessante Orte
Preis- und Lageinformationen
Preistrend für Bestandsimmobilien in Calberlah