Das denkmalgeschützte Einfamilienhaus aus dem historischen Waterworks Ensemble am Falkensteiner Ufer verbindet hanseatische Geschichte mit preisgekrönter Architektur und modernstem Design. Ursprünglich 1859 als Pumpwerk des Hamburger Wasserwerks erbaut und 2019 auf höchstem Niveau neu interpretiert, präsentiert sich das Haus heute als vollständiger Neubau – die historischen Außenmauern wurden erhalten und stilvoll in ein modernes, architektonisches Konzept integriert.
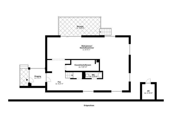
Auf ca. 180 m² Wohnfläche, verteilt auf zwei Ebenen, erwarten Sie lichtdurchflutete Räume mit beeindruckenden Deckenhöhen von bis zu 9,4 Metern. Die Kombination aus Eiche, Stahl, Sichtbeton und gekalktem Sichtmauerwerk prägt das puristische Interior, während raffinierte Detaillösungen und Design-Highlights – wie die imposante Bocci-Pendelleuchte mit 40 Glaskugeln – ein außergewöhnliches Ambiente schaffen. Im Erdgeschoss öffnet sich ein großzügiger Wohn- und Essbereich mit maßgefertigter Küche und drehbarem Focus-Kaminofen – stets mit direktem Bezug zur Elbe.
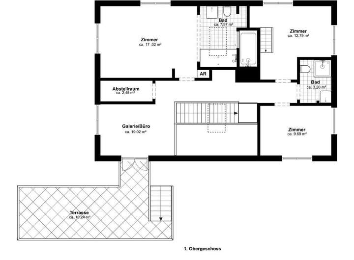
Im Galeriegeschoss befinden sich vier Schlafzimmer sowie zwei luxuriös ausgestattete Bäder. Dank des durchdachten Grundrisses lässt sich bei Bedarf ein fünftes Zimmer unkompliziert integrieren. Im Masterbad sorgt ein elektrisches Dachfenster für Licht und Komfort, ein weiteres gegenüberliegendes Dachfenster ergänzt die Belichtung.
Die freistehende Mineralguss-Badewanne mit Elbblick unterstreicht den exklusiven Anspruch. Hochwertigste Ausstattungselemente wie eine großzügige Doppeldusche, Occhio-Strahler, ein Bette-Waschtisch, handgefertigte Fliesen und feinste Eichenholzausführungen verbinden sich mit moderner Haustechnik zu einem stimmigen Gesamtkonzept von zeitloser Eleganz.
Beheizt wird das Haus über eine Gaszentralheizung mit Fußbodenheizung, die für effiziente Wärme und hohen Wohnkomfort sorgt. Das nach Süden ausgerichtete, real geteilte Grundstück von ca. 742 m² bietet zwei großzügige Terrassen und viel Platz für entspanntes Leben am Wasser.
Ein unvergleichliches Zusammenspiel aus Geschichte, Design und Lage – für Menschen, die Wohnen auf höchstem Niveau mit einzigartigem Elbblick schätzen.
Wir freuen uns auf Ihren Anruf!
ELBBLICK UND DENKMALGESCHÜTZTE ARCHITEKTUR – STILVOLL VEREINT
22587 Hamburg
Die vollständige Adresse der Immobilie erhalten Sie vom Anbieter.
Auf Karte anzeigen
Die vollständige Adresse der Immobilie erhalten Sie vom Anbieter.
Finanzierungszertifikat
In nur zwei Minuten zu Ihrem persönlichen Finanzierungszertifkat.
Infos
| Haustyp | Einfamilienhaus |
|---|---|
| Wohnfläche ca. | 180 m2 |
| Grundstücksfläche | 742 m2 |
| Bezugsfrei ab | nach Absprache |
| Zimmer | 5 |
| Badezimmer | 2 |
Kosten
| Kaufpreis |
3.390.000 € |
|---|---|
| Provision |
3,57 % inkl. MwSt. Die Käufercourtage i.H.v. 3,57 % inkl. MwSt. ist nach Notarvertragsabschluss verdient und fällig. |
Finanzierungsrechner:
Kaufpreis:
600.000 €
Eigenkapital:
600.000 €
Monatliche Rate
0 €
Effektiver Jahreszins
0 %
Sollzinsbindung
10 Jahre
Bausubstanz & Energieausweis
| Baujahr | 1859 |
|---|---|
| Letzte Sanierung | 2019 |
| Denkmalschutzobjekt | Ja |
| Objektzustand | Neuwertig |
| Heizungsart | Fußbodenheizung |
| Wesentliche Energieträger | Fernwärme |
| Energieausweis | laut Gesetz nicht erforderlich |
Beschreibung des Objekts
Lage
Blankenese, einer der renommiertesten Elbvororte Hamburgs, besticht durch seine außergewöhnliche Lage direkt an der Elbe und vereint den Charme eines historischen Ortes mit der Ruhe einer naturnahen Umgebung. Am Falkensteiner Ufer, einem der schönsten Abschnitte des Elbstrandes, genießen Sie eine einmalige Kombination aus maritimem Flair, weitläufiger Natur und hanseatischer Eleganz. Hier, wo andere Urlaub machen, eröffnet sich ein unvergleichliches Wohnumfeld, eingebettet in ein Landschaftsschutzgebiet mit direktem Zugang zu den breiten Sandstränden der Elbe.
Das malerische Treppenviertel mit seinen verwinkelten Gassen, weißen Kapitänshäusern und atemberaubenden Ausblicken auf den Fluss prägt das Bild des Stadtteils ebenso wie der charmante Ortskern „im Dorf“. Hier finden sich neben allen Geschäften des täglichen Bedarfs kleine Boutiquen, Cafés, Restaurants und ein lebendiger Wochenmarkt, der mehrmals wöchentlich regionale Spezialitäten anbietet. Zahlreiche Arztpraxen, Apotheken und Dienstleister sorgen für eine rundum komfortable Infrastruktur.
Blankenese bietet zudem ein breites Bildungsangebot, das von verschiedenen Kindergärten bis hin zu renommierten Schulen wie der Gorch-Fock-Grundschule und dem Gymnasium Blankenese reicht. Für Sport- und Freizeitbegeisterte eröffnen sich vielfältige Möglichkeiten: Der traditionsreiche Golf-Club Falkenstein, mehrere Segelvereine entlang der Elbe sowie weitläufige Parks und Grünanlagen laden zu Aktivitäten an der frischen Luft ein.
Die hervorragende Anbindung an die Hamburger Innenstadt macht Blankenese zu einem besonders attraktiven Wohnstandort. Die S-Bahn-Linie S1 verbindet den Stadtteil direkt mit der Innenstadt und dem Flughafen. Ergänzt wird das Netz durch die „Bergziege“, die Sie bequem zum Blankeneser Bahnhof und zum Ortskern bringt. Mit dem Auto erreichen Sie die City in rund 25 Minuten.
Das Falkensteiner Ufer steht damit für ein unvergleichliches Lebensgefühl: maritimer Weitblick, geschützte Natur und ein gewachsenes, hanseatisches Umfeld, das Geschichte und Lebensqualität auf einzigartige Weise verbindet.
Adresse
22587 Hamburg
Interessante Orte
Preis- und Lageinformationen
Preistrend für Bestandsimmobilien in Blankenese