Dieses repräsentative Mehrfamilienhaus, erbaut um das Jahr 1800, befindet sich in ruhiger Lage vom Oscherslebener Ortsteil Hornhausen. Das Haus ist im Jahr 2000 grundlegend saniert worden und bietet eine gelungene Verbindung aus historischem Charme und modernem Wohnkomfort.
Mit einer Wohnfläche von ca. 315 m², einem gepflegten Garten sowie Stellplätzen vor dem Objekt auf öffentlichem Grund ist diese Immobilie eine ideale Investitionsmöglichkeit. Das Objekt ist bis auf eine derzeit noch durch die Eigentümer als Ferienwohnung genutzte Wohnung voll vermietet.
Die Nachfrage nach Wohnungen ist in Hornhausen sehr gut. Mietanpassungen sind in den kommenden Jahren möglich, was die Rendite weiterhin positiv beeinflusst. Bei der Umsetzung der Mietanpassungen sowie bei der Neuvermietung der unvermieteten Wohnung können wir Sie nach dem Kauf ebenfalls unterstützen.
Sprechen Sie uns zur Höhe der aktuellen Kaltmieten gerne unverbindlich an.
!!! Innenbilder werden im Januar angefertigt und nachgereicht !!!
Highlights der Immobilie:
Baujahr:
um 1800, grundlegende Sanierungen 2000 und 2008
Wohnfläche:
ca. 315 m²
Wohneinheiten:
2 geräumige 3-Raumwohnungen und 2 Zweiraumwohnungen
Heizung:
Gaszentralheizung
Außenbereich:
Garten, Nebengelass
Vermietung:
eine Wohnung unvermietet (wird derzeit vom Eigentümer genutzt), die weiteren 3 Wohnungen langfristig angemietet
Fassade, Heizung und Elektrik 2008 erneuert, Dach und Fenster im Jahr 2000
Mehrfamilienhaus im Oscherslebener Ortsteil Hornhausen
39387 Hornhausen
Die vollständige Adresse der Immobilie erhalten Sie vom Anbieter.
Auf Karte anzeigen
Die vollständige Adresse der Immobilie erhalten Sie vom Anbieter.
Finanzierungszertifikat
In nur zwei Minuten zu Ihrem persönlichen Finanzierungszertifkat.
Infos
| Haustyp | Mehrfamilienhaus |
|---|---|
| Etagenzahl | 2 |
| Wohnfläche ca. | 315 m2 |
| Grundstücksfläche | 1.074 m2 |
| Zimmer | 10 |
| Badezimmer | 4 |
Kosten
| Kaufpreis |
249.000 € |
|---|---|
| Provision |
5,95 % inkl. MwSt. Die Käuferprovision von 5,95 % (inkl. 19 % MwSt.) vom Kaufpreis, ist verdient nach Abschluss des notariell beurkundeten Vertrages. |
Finanzierungsrechner:
Kaufpreis:
600.000 €
Eigenkapital:
600.000 €
Monatliche Rate
0 €
Effektiver Jahreszins
0 %
Sollzinsbindung
10 Jahre
Bausubstanz & Energieausweis
| Baujahr | 1800 |
|---|---|
| Denkmalschutzobjekt | Ja |
| Objektzustand | Saniert |
| Heizungsart | Zentralheizung |
| Wesentliche Energieträger | Gas |
| Energieausweis | laut Gesetz nicht erforderlich |
Beschreibung des Objekts
Ausstattung
- Außenseite der Giebelseiten gedämmt
- Zentralheizung
- teilw. Einbauküchen
Lage
Der Oscherslebener Stadtteil Hornhausen verfügt über einen Supermarkt und einen Kindergarten. Weitere Einkaufsmöglichkeiten und Bildungseinrichtungen finden sich im nur 5 Autominuten entfernten Oschersleben.
Oschersleben ist eine wirklich charmante Kleinstadt in der Region Sachsen-Anhalt. Die Stadt bietet eine gute Infrastruktur mit vielen Einkaufsmöglichkeiten und verschiedenen Geschäften, Restaurants und Freizeitmöglichkeiten, aber auch der medizinischen Versorgung. Und das nächste Krankenhaus in Neindorf liegt nur 4 km von Hornhausen entfernt.
Auch die Anbindung an die Autobahn A2 ist optimal, was Oschersleben zu einem attraktiven Wohnort macht.
Die Region Sachsen-Anhalt zeichnet sich durch ihre vielfältige Natur und ihre kulturellen Sehenswürdigkeiten aus. Hier gibt es zahlreiche Wander- und Radwege, die zu ausgedehnten Ausflügen einladen. Zudem locken historische Städte wie Magdeburg und Quedlinburg mit ihrem mittelalterlichen Flair. Sachsen-Anhalt ist eine Region, die sowohl Naturliebhaber als auch Kulturinteressierte gleichermaßen begeistert.
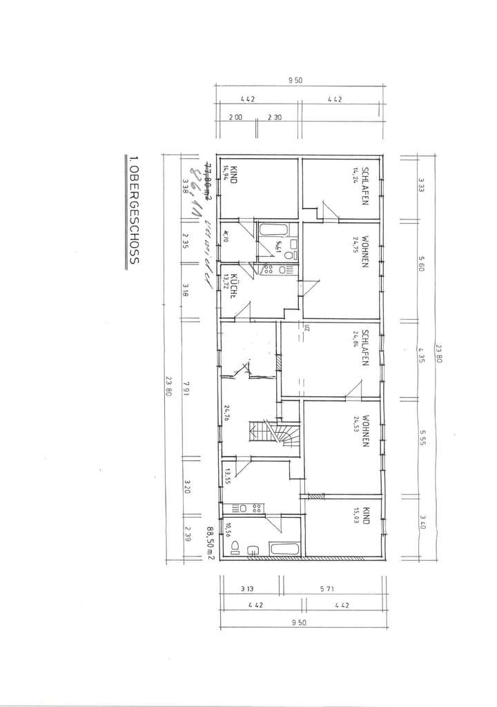
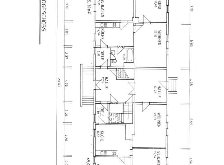
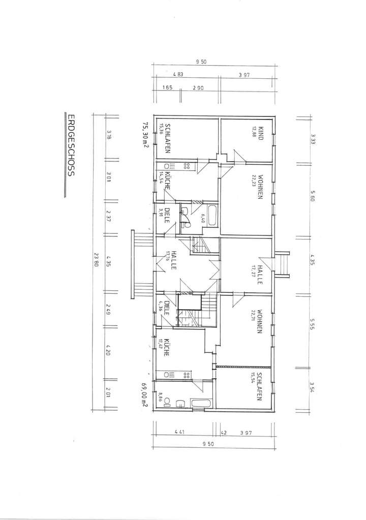
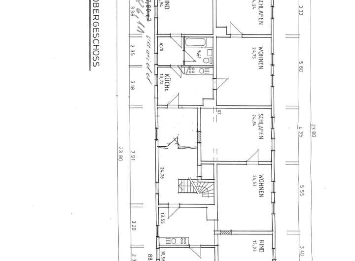
Grundriss
Grundrisse-1
>
>
Grundrisse-2
>
>
Adresse
39387 Hornhausen
Interessante Orte
Preis- und Lageinformationen
Preistrend für Bestandsimmobilien in Hornhausen