Praktische Funktionalität und historischer Charme! Es erwartet Sie ein großzügiges Anwesen mit zahlreichen Möglichkeiten für individuelle Wohn- und Lebenskonzepte.
Das um 1900 erbaute Einfamilienhaus verfügt über eine Wohnfläche von 248,94 m² und erstreckt sich über zwei Etagen. Das Haus biete ausreichend Platz für eine große Familie oder ein Mehrgenerationenwohnen.
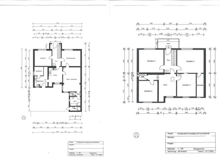
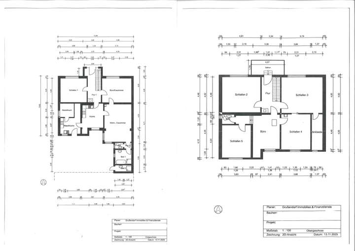
Im Erdgeschoss empfängt Sie ein großzügiger Eingangsbereich mit Zugängen in alle Räume und in das OG. Darüber hinaus befinden sich im EG die Küche mit Zugang zum Wirtschaftsraum und zum Innenhof, das große Wohnzimmer mit Essbereich, zwei Wohn-Schlafraume, ein Badezimmer und ein Gäste-WC.
Das Obergeschoss erwartet Sie mit einem offenen Wohnbereich bzw. einer Galerie, die als Lounge, Ruhebereich oder Büro genutzt werden kann. Darüber hinaus sind im OG fünf Wohn-Schlafräume und ein Ankleidezimmer vorhanden.
Das rechte Nebengebäude wurden 1994 zum Wohnhaus ausgebaut und verfügt seither über zwei ca. 86 m² große und eigenständige Wohneinheiten im EG und OG. In beiden Wohneinheiten sind jeweils ein Wohnzimmer, zwei Schlafräume, eine Küche und ein Badezimmer vorhanden. Auch hier ist ein Mehrgenerationenwohnen oder eine Vermietung möglich.
Der Innenhof bildet das verbindende Element zwischen dem Haupthaus und den Nebengebäuden. Hier lädt ein teilüberdachter Außensitzbereich zum Erholen und Verweilen ein. Vom Innenhof aus gelangt man zu den Wirtschaftsräumen und es gibt eine Durchfahrt in den dahinter liegenden Hofbereich. Dort befinden sich zwei Unterstände, zwei Garagen und KFZ-Außenstellplätze. Darüber hinaus ist ein weiteres Nebengebäude mit Partyraum und Außensitzbereich vorhanden. Hier schließt eine Lagerhalle an. Das hinter Grundstück verfügt über eine separate Zufahrt. Diese komplettiert die Außenanlagen und eröffnet vielfältige Nutzungsmöglichkeiten – von privater Freizeitgestaltung bis hin zu gewerblichen Optionen.
Großzügiges Anwesen mit zahlreichen Möglichkeiten für individuelle Wohn- und Lebenskonzepte
38470 Parsau
Die vollständige Adresse der Immobilie erhalten Sie vom Anbieter.
Auf Karte anzeigen
Die vollständige Adresse der Immobilie erhalten Sie vom Anbieter.
Finanzierungszertifikat
In nur zwei Minuten zu Ihrem persönlichen Finanzierungszertifkat.
Infos
| Haustyp | Mehrfamilienhaus |
|---|---|
| Wohnfläche ca. | 420 m2 |
| Nutzfläche | 360 m2 |
| Grundstücksfläche | 1.488 m2 |
| Bezugsfrei ab | nach Vereinbarung |
| Zimmer | 14 |
| Schlafzimmer | 11 |
| Badezimmer | 4 |
| Garage/Stellplatz | Garage |
| Anzahl Garage/Stellplatz | 15 |
Kosten
| Kaufpreis |
399.000 € |
|---|---|
| Provision |
3,57% Käuferprovision: 3,57% v. KP, inkl. d. gesetzl. MwSt. 19%, fällig n. Unterz. eines notariellen KV, zahlbar v. Käufer! Verkäuferprovision: 3,57% v. KP, inkl. d. gesetzl. MwSt. 19%, fällig n. Unterz. eines notariellen KV, zahlbar v. Verkäufer! |
Finanzierungsrechner:
Kaufpreis:
600.000 €
Eigenkapital:
600.000 €
Monatliche Rate
0 €
Effektiver Jahreszins
0 %
Sollzinsbindung
10 Jahre
Bausubstanz & Energieausweis
| Baujahr | 1900 |
|---|---|
| Objektzustand | Gepflegt |
| Heizungsart | Zentralheizung |
| Wesentliche Energieträger | Öl |
| Energieausweis | liegt vor |
| Energieausweistyp | Bedarfsausweis |
| Energieverbrauchskennwert | 340,7 kWh/(m²*a) |
| Energieeffizienzklasse | H |
340,7
kWh/(m²*a)
Energieeffizienzklasse H
- A+
- A
- B
- C
- D
- E
- F
- G
- H
- 0
- 25
- 50
- 75
- 100
- 125
- 150
- 175
- 200
- 225
- >250
Beschreibung des Objekts
Ausstattung
Ausstattung EFH
Mauerwerk: massiv
Keller: nein
Außenwände: Klinker und Platten linker Giebel
Dach: ca. Mitte der 80-iger
Elektrische Anlage: teilweise erneuert
Verrohrung Frisch- u. Abwasser: teilweise erneuert
Heizung: Öl-Zentral Bj. 2005
Fenster: Kunststofffenster 2-fach Verglasung, teilw. ab 1990 erneuert
Rollläden: nein
Bodenbeläge: Fliesen, Parkett, Teppich
Bad EG: Badewanne, Dusche, Waschbecken, Fenster
Gäste-WC im EG: WC, Waschbecken, Fenster
Gäste-WC im OG: WC, Waschbecken, Fenster
Gäste-Bad Innenhof: Dusche, WC, Waschbecken, Fenster
Raumaufteilung: 7 Wohnräume + 1 Ankleidezimmer
Terrasse: Außensitzbereich auf dem Innenhof
Ausstattung 2-FH Nebengebäude
Mauerwerk: massiv
Keller: nein
Außenwände: Klinker
Dämmung: gem. ca. 1994
Elektrische Anlage: gem. 1994
Verrohrung Frisch- u. Abwasser: gem. 1994
Heizung: Öl-Zentral Bj. 1994
Fenster: Kunststofffenster 2-fach Vergl. 1994
Rollläden: nein
Bodenbeläge: Fliesen, Teppich
Bad EG und OG: WC, Waschbecken, Badewanne, Dusche und Fenster
Raumaufteilung: 2 x 3 Zimmer
Lage
Das Haus befindet sich in Parsau, ca. 15 PKW-Fahrminuten von Wolfsburg entfernt. Eine Kita, eine Grundschule sind vor Ort vorhanden und innerhalb weniger Minuten zu Fuß, mit dem Rad oder PKW erreichbar. Weitere Versorgungsmöglichkeiten, Ärzte, ein Freibad, eine Apotheke, eine Tankstelle uvm., erreichen sind in ca. 5-7 km Entfernung, in Brome und in Rühen. Die Anbindung zum VW-Werk wird durch den VW-eigenen Werksverkehr und die Anbindung in Innenstadt von Wolfsburg, sowie in nahe Ortschaften wird durch öffentliche Verkehrsmittel sichergestellt.
Sonstige Angaben
Die Objektangaben wurden sorgfältig zusammengestellt und basieren auf den Angaben der Verkäufer. Für die Richtigkeit dieser Angaben übernehmen wir „Rüdiger Grußendorf Immobilien & Finanzdienste“ keine Gewähr. Irrtümer vorbehalten. Es fällt nicht in den Zuständigkeitsbereich der Firma „Rüdiger Grußendorf Immobilien & Finanzdienste“ Aussagen und Angaben über die bauliche Substanz eines Objektes treffen.
Adresse
38470 Parsau
Interessante Orte
Preis- und Lageinformationen
Preistrend für Bestandsimmobilien in Parsau
>
>