Das im Jahr 1927 errichtete Einfamilienhaus begeistert mit seinem großzügigen Raumangebot. Acht Zimmer verteilen sich auf rund 163 m² Wohnfläche in Erd- und Dachgeschoss. Zuletzt als Zuhause für zwei Generationen genutzt, lässt sich die Immobilie mit geringem Aufwand in ein weitläufiges Einfamilienhaus verwandeln.
Das Haus befindet sich in einem modernisierungsbedürftigen Zustand – eine ideale Gelegenheit für alle, die ihre eigenen Ideen und Wohnträume verwirklichen möchten. Das besonders große Grundstück lädt zum Entspannen und Spielen ein und bietet viel Raum für individuelle Gestaltungsmöglichkeiten.
Auf folgende Ausstattungsdetails möchten wir besonders hinweisen:
- Überwiegend Holzfenster mit Isolierverglasung
- Außenrollläden an den meisten Fenstern
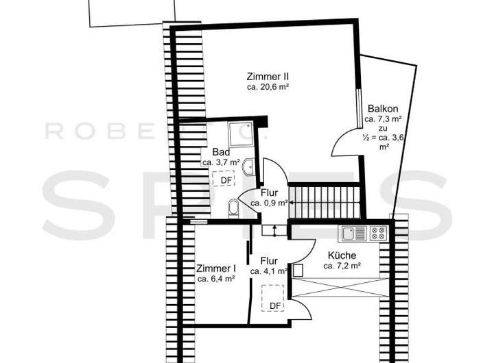
- Balkon an einem Schlafzimmer im Obergeschoss
- Tageslichtbad mit Badewanne im Erdgeschoss
- helles Duschbad mit Fenster im Dachgeschoss
- Zusätzlicher Stauraum im Teilkeller sowie im Spitzboden
- Zwei überdachte Terrassen für gemütliche Stunden im Freien
- Garage
- Gas-Zentralheizung aus dem Jahr 2005
Modernisierungsbedürftiges Einfamilienhaus mit Gestaltungsspielraum
28777 Bremen
Die vollständige Adresse der Immobilie erhalten Sie vom Anbieter.
Auf Karte anzeigen
Die vollständige Adresse der Immobilie erhalten Sie vom Anbieter.
Finanzierungszertifikat
In nur zwei Minuten zu Ihrem persönlichen Finanzierungszertifkat.
Infos
| Haustyp | Einfamilienhaus |
|---|---|
| Wohnfläche ca. | 163 m2 |
| Grundstücksfläche | 890 m2 |
| Bezugsfrei ab | |
| Zimmer | 8 |
| Badezimmer | 2 |
| Garage/Stellplatz | Garage |
Kosten
| Kaufpreis |
248.000 € |
|---|---|
| Provision |
3,57% inkl. gesetzl. MwSt. vom beurkundeten Kaufpreis Provisionspflichtig für den Käufer. Ferner sind wir als Doppelmakler tätig. Unsere Objektangaben basieren auf den uns erteilten Informationen. Eine Haftung für die Richtigkeit und Vollständigkeit können wir deshalb nicht übernehmen. |
Finanzierungsrechner:
Kaufpreis:
600.000 €
Eigenkapital:
600.000 €
Monatliche Rate
0 €
Effektiver Jahreszins
0 %
Sollzinsbindung
10 Jahre
Bausubstanz & Energieausweis
| Baujahr | 1927 |
|---|---|
| Heizungsart | Etagenheizung |
| Wesentliche Energieträger | Gas |
| Energieausweis | liegt vor |
| Energieausweistyp | Bedarfsausweis |
| Energieverbrauchskennwert | 291,9 kWh/(m²*a) |
| Energieeffizienzklasse | H |
291,9
kWh/(m²*a)
Energieeffizienzklasse H
- A+
- A
- B
- C
- D
- E
- F
- G
- H
- 0
- 25
- 50
- 75
- 100
- 125
- 150
- 175
- 200
- 225
- >250
Ausstattung
Lage
Das angebotene Einfamilienhaus befindet sich in familienfreundlicher und zentraler Wohnlage von Bremen-Rönnebeck.
Geschäfte des täglichen Bedarfs sowie Ärzte, Apotheken und weitere Einkaufsmöglichkeiten befinden sich in fußläufiger Nähe. Auch Kindergärten und Schulen sind zu Fuß schnell erreicht. Ein Bahnhof der Nordwest-Bahn sowie Bushaltestellen befinden sich in direkter Nähe. Über die nahegelegene A270 gelangen Sie auch schnell in die Bremer Innenstadt sowie nachBremerhaven. Auch das Bremen Norder Mittelzentrum Vegesack ist nicht weit entfernt.
Zu Spaziergängen und zum Verweilen lädt das Naturschutzgebiet Eispohl / Sandwehen sowie die nahegelegene Weserpromenade ein, über die Sie ebenfalls eine direkte Anbindung nach Vegesack, bis nach Lesum und in die andere Richtung über Farge, am U-Bootsbunker vorbei nach Neuenkirchen haben.
Grundriss
Erdgeschoss
>
>
Dachgeschoss
>
>
Adresse
28777 Bremen
Interessante Orte
Preis- und Lageinformationen
Preistrend für Bestandsimmobilien in Rönnebeck