In ruhiger und dennoch verkehrsgünstiger Lage von Hanau Steinheim präsentieren wir Ihnen dieses gepflegte, aber dennoch renovierungsbedürftige 2-Familienhaus mit einer Gesamtwohnfläche von ca. 214 m². Das großzügige Grundstück umfasst etwa 1.189 m² und kann bei Bedarf in ein weiteres Baugrundstück geteilt werden. Das massiv gebaute Haus bietet zwei Wohneinheiten mit insgesamt acht Zimmern, die sich ideal für Eigennutzer oder Mehrgenerationenwohnen eignen. Die Immobilie wurde zuletzt von nur einer Partei genutzt, kann aber mit wenig Aufwand wieder in zwei separate Einheiten getrennt werden. Beide Etagen verfügen über jeweils ein Badezimmer und ein Gäste-WC. Die Wohnung im Erdgeschoß bietet Zugang zur sonnigen Terrasse und zum Garten, die Wohnung im Obergeschoß genießt die ruhige Umgebung auf dem großzügigen Balkon. Das Dachgeschoss ist ausgebaut und verfügt über zwei weitere Räume. Dank der vollständigen Unterkellerung stehen Ihnen außerdem reichlich Abstellflächen sowie zusätzliche Nutzungsmöglichkeiten zur Verfügung. Zur Immobilie gehören ebenfalls zwei Garagen. Die Lage überzeugt durch die schnelle Anbindung an die Autobahn – perfekt für Berufspendler und Familien gleichermaßen. Gleichzeitig genießen Sie hier ein hohes Maß an Ruhe und Naturnähe. Dieses charmante 2-Familienhaus bietet Ihnen vielfältige Nutzungsmöglichkeiten und Potential für eine zukunftssichere Investition.
2-Familienhaus mit Potential in Top-Lage Steinheim
63456 Hanau
Die vollständige Adresse der Immobilie erhalten Sie vom Anbieter.
Auf Karte anzeigen
Die vollständige Adresse der Immobilie erhalten Sie vom Anbieter.
Finanzierungszertifikat
In nur zwei Minuten zu Ihrem persönlichen Finanzierungszertifkat.
Infos
| Haustyp | Mehrfamilienhaus |
|---|---|
| Wohnfläche ca. | 214 m2 |
| Grundstücksfläche | 1.189 m2 |
| Bezugsfrei ab | nach Vereinbarung |
| Zimmer | 7 |
| Schlafzimmer | 5 |
| Badezimmer | 2 |
| Garage/Stellplatz | Garage |
| Anzahl Garage/Stellplatz | 2 |
Kosten
| Kaufpreis |
798.000 € |
|---|---|
| Provision |
5,95 % inkl. MwSt. Der Makler-Vertrag mit uns und/oder unserem Beauftragten kommt durch schriftliche Vereinbarung oder durch die Inanspruchnahme unserer Maklertätigkeit auf der Basis des Objekt-Exposés und seiner Bedingungen zustande. Die Käufercourtage in Höhe von 5,95 % auf den Kaufpreis einschließlich gesetzlicher Mehrwertsteuer ist bei notariellem Vertragsabschluss verdient und fällig. Die Höhe der Bruttoprovision unterliegt einer Anpassung bei Steuersatzänderung. Maier Consulting GmbH und ggf. deren Beauftragte erhalten einen unmittelbaren Zahlungsanspruch gegenüber dem Käufer (Vertrag zugunsten Dritter, § 328 BGB). Grunderwerbssteuer, Notar- und Gerichtskosten trägt der Käufer. Alle Angaben sind ohne Gewähr und basieren ausschließlich auf Informationen, die uns von unserem Auftraggeber übermittelt wurden. Wir übernehmen keine Gewähr für die Vollständigkeit, Richtigkeit und Aktualität dieser Angaben. Zwischenverkauf bleibt vorbehalten. Sollte das von uns nachgewiesene Objekt bereits bekannt sein, teilen Sie uns dieses bitte unverzüglich mit. Die Weitergabe dieses Exposes an Dritte ohne unsere Zustimmung löst gegebenenfalls Provision- bzw. Schadensersatzansprüche aus. |
Finanzierungsrechner:
Kaufpreis:
600.000 €
Eigenkapital:
600.000 €
Monatliche Rate
0 €
Effektiver Jahreszins
0 %
Sollzinsbindung
10 Jahre
Bausubstanz & Energieausweis
| Baujahr | 1968 |
|---|---|
| Objektzustand | Renovierungsbedürftig |
| Qualität der Austattung | Einfach |
| Heizungsart | Zentralheizung |
| Wesentliche Energieträger | Öl |
| Energieausweis | liegt vor |
| Energieausweistyp | Bedarfsausweis |
| Energieverbrauchskennwert | 252,4 kWh/(m²*a) |
| Energieeffizienzklasse | H |
252,4
kWh/(m²*a)
Energieeffizienzklasse H
- A+
- A
- B
- C
- D
- E
- F
- G
- H
- 0
- 25
- 50
- 75
- 100
- 125
- 150
- 175
- 200
- 225
- >250
Beschreibung des Objekts
Ausstattung
Baujahr 1935
Erweiterung 1968
Ölheizung
Grundstück ca. 1.189 m²
Wohnfläche ca. 214 m²
2. Baugrundstück
Lage
Die ehemalige Stadt Steinheim am Main ist mit etwa 12.500 Einwohnern einer der größeren Stadtteile von Hanau im hessischen Main-Kinzig-Kreis. Steinheim ist Station der Deutschen Fachwerkstraße und für seine Altstadt mit restaurierten Fachwerkhäusern bekannt. Als Ausgangspunkt der hessischen Apfelweinstraße ist Steinheim wegen seiner Feiern beliebt: zum einen wegen des Steinheimer Johannisfeuers, das jährlich am 23. und 24. Juni gefeiert wird und seinen Ursprung in der germanischen Sonnenwendfeier hat, mittlerweile jedoch am Vorabend des Festes des Johannes des Täufers gefeiert wird, zum anderen wegen des Bundesäppelwoifestes am letzten Augustwochenende. Steinheim grenzt im Nordwesten und Westen an Mühlheim am Main (Landkreis Offenbach), im Südwesten an den Obertshäuser Stadtteil Hausen, im Südosten an den Hanauer Stadtteil Klein-Auheim, und, durch den Main getrennt, an Hanau-Großauheim, im Nordosten an die Innenstadt und im Norden an den Hanauer Stadtteil Kesselstadt, zu dem es in römischer Zeit eine Brücke über den Main gab.
Sonstige Angaben
GELDWÄSCHE: Als Immobilienmaklerunternehmen ist die Maier Consulting GmbH nach § 2 Abs. 1 Nr. 14 und § 11 Abs. 1, 2 Geldwäschegesetz (GwG) dazu verpflichtet, bei der Begründung einer Geschäftsbeziehung die Identität des Vertragspartners festzustellen und zu überprüfen, bzw. sobald ein ernsthaftes Interesse an der Durchführung des Immobilienkaufvertrages besteht. Hierzu ist es erforderlich, dass wir nach § 11 Abs. 4 GwG die relevanten Daten Ihres Personalausweises festhalten (wenn Sie als natürliche Person handeln) – mittels einer Kopie. Bei einer juristischen Person benötigen wir eine Kopie des Handelsregisterauszugs, aus welchem der wirtschaftlich Berechtigte hervorgeht. Das Geldwäschegesetz sieht vor, dass der Makler die Kopien bzw. Unterlagen fünf Jahre aufbewahren muss. Als unser Vertragspartner haben Sie auch eine Mitwirkungspflicht nach § 11 Abs. 6 GwG.
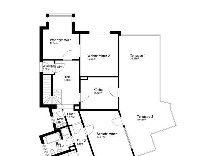
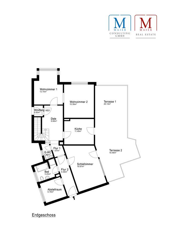
Grundriss
Grundriss EG
>
>
Grundriss OG
>
>
Grundriss DG
>
>
Adresse
63456 Hanau
Interessante Orte
Preis- und Lageinformationen
Preistrend für Bestandsimmobilien in Hanau