Ich bin auch am Wochenende für Sie da!!!
Gerne präsentiere ich Ihnen die vielen besonderen Details dieser stilvollen Immobilie bei einem persönlichen Besichtigungstermin.
FISCHER BAU - Das Massivhaus
-Stein auf Stein-
Nach traditioneller Handwerkskunst für Sie gebaut.
*** Für Sie PROVISIONSFREI *** RMH mit 60 m² Ausbaureserve - Erstbezug !!! Garage + Stellplatz !!!
31275 Lehrte
Die vollständige Adresse der Immobilie erhalten Sie vom Anbieter.
Auf Karte anzeigen
Die vollständige Adresse der Immobilie erhalten Sie vom Anbieter.
Finanzierungszertifikat
In nur zwei Minuten zu Ihrem persönlichen Finanzierungszertifkat.
Infos
| Haustyp | Reihenmittelhaus |
|---|---|
| Wohnfläche ca. | 138 m2 |
| Grundstücksfläche | 268 m2 |
| Bezugsfrei ab | Nach Absprache |
| Zimmer | 6 |
| Schlafzimmer | 3 |
| Badezimmer | 2 |
| Garage/Stellplatz | Garage |
| Anzahl Garage/Stellplatz | 1 |
Kosten
| Kaufpreis |
580.000 € |
|---|---|
| Provision | Nein |
Finanzierungsrechner:
Kaufpreis:
600.000 €
Eigenkapital:
600.000 €
Monatliche Rate
0 €
Effektiver Jahreszins
0 %
Sollzinsbindung
10 Jahre
Bausubstanz & Energieausweis
| Baujahr | 2025 |
|---|---|
| Bauphase | Haus im Bau |
| Qualität der Austattung | Gehoben |
| Heizungsart | Wärmepumpe |
| Wesentliche Energieträger | Umweltwärme |
| Energieausweis | liegt zur Besichtigung vor |
Beschreibung des Objekts
Ausstattung
Fundamentgründung
. Erd- und Obergeschoss
. Satteldach mit 30 Grad Dachneigung
. Tondachpfanne Röben
. Röben Klinkerfassade
. Warmwasserfußbodenheizung mit Einzelraumthermostaten
. Luftwasser-Wärmepumpe Arotherm von Vaillant
. Außen hellgraue Kunststofffenster mit
wärmedämmender 3-fach-Verglasung
. Elektrische Rollläden
. Gäste-WC mit Dusche
. KFW 55 EE Ausstattung
. Schmutz-Regenwasserleitungen
. Inkl. Garage
. Ein Stellplatz
. Blower Door Test
. TÜV-Überwachung
. Mit 60 m² Ausbaureserve im Spitzboden
uvm…
Lage
Ahlten liegt ca 10 Autominuten östlich der Landeshauptstadt Hannover .
Ahlten verfügt über einen S-Bahn Anschluss nach Hannover .
Sie wohnen direkt in Ahlten zentral.
Fußläufig erreichen Sie den Ortskern in
wenigen Gehminuten.
Ebenso ist durch die gute Lage
Ahltens die Bundesautobahn A 7 schnell erreicht und bietet eine schnelle Anbindung an Hannover und
weitere Städte.
Das Einzugsgebiet der Stadt Lehrte nebst Ortsteilen gehört zu den sehr guten Lagen in der Region
Hannover.
Diverse Möglichkeiten der Freizeitgestaltung bietet der
Ort ebenso.
Im Sommer bietet der „Müller See“ eine
attraktive Möglichkeit zum Baden.
Sämtliche Nahversorgungseinrichtungen, sowie
Banken, Ärzte, Kitas und eine Grundschule sind direkt
im Ort vorhanden.
Sonstige Angaben
Alle Angaben in diesem Exposé beruhen auf Informationen des Eigentümers.
Die Objektdaten wurden mit größter Sorgfalt zusammengestellt.
Für die Richtigkeit der Vermieter-, Anbieter- und Angebotsangaben kann keine Haftung übernommen werden. Irrtümer vorbehalten.
DSGVO: Wir weisen darauf hin, dass Ihre Daten gespeichert werden, sobald Sie eine Kontaktanfrage an uns senden. Die Daten werden nicht an Dritte weitergegeben und dienen ausschließlich der Kontaktaufnahme, um Ihnen ggf. ein Exposé zuzusenden oder einen Besichtigungstermin zu vereinbaren. Sollten Sie eine Speicherung nicht wünschen, bitten wir um eine kurze Mitteilung, damit wir Ihre Daten löschen können.
Die vollständige Datenschutzerklärung finden Sie auf unserer Homepage unter www.wohnwerte-immobilien.de.
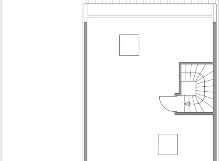
Grundriss
Erdgeschoss
>
>
1. Obergeschoss
>
>
Ausbaureserve im Spitzboden
>
>
Adresse
31275 Lehrte
Interessante Orte
Preis- und Lageinformationen
Preistrend für Bestandsimmobilien in Lehrte