Dieses gepflegte, verklinkerte Zweifamilienhaus aus dem Jahr 1983 bietet mit ca. 239 m² Wohnfläche, Vollkeller und einer
integrierten Garage ein äußerst großzügiges Raumangebot für verschiedenste Möglichkeiten der Nutzung. Das 620 qm große
Grundstück ist mit Beeten, Hecke sowie Rasenflächen angelegt und gepflegt.
Die Immobilie befindet sich in einer ruhigen Sackgasse in der beliebten „Garbsener Schweiz“ – direkt angrenzend an Wiesen
und die Masch, ideal für Naturliebhaber, Jogger oder Hundebesitzer.
Dieses Haus bietet nicht nur viel Platz, sondern auch viele Möglichkeiten. Ob für Familien, Kapitalanleger oder
gemeinschaftliche Wohnprojekte – hier findet sich ein liebevoll gepflegtes Zuhause in einer der schönsten Ecken Garbsens.
Reserviert: Zweifamilienhaus in attraktiver Lage in Garbsen
Emma-Schünhoff-Weg 20,
30823 Garbsen
Auf Karte anzeigen
Finanzierungszertifikat
In nur zwei Minuten zu Ihrem persönlichen Finanzierungszertifkat.
Infos
| Haustyp | Einfamilienhaus |
|---|---|
| Etagenzahl | 3 |
| Wohnfläche ca. | 239 m2 |
| Nutzfläche | 170 m2 |
| Grundstücksfläche | 620 m2 |
| Bezugsfrei ab | 29.12.2025 |
| Zimmer | 8 |
| Schlafzimmer | 6 |
| Badezimmer | 3 |
| Anzahl Garage/Stellplatz | 3 |
Kosten
| Kaufpreis |
560.000 € |
|---|---|
| Provision | Nein |
Finanzierungsrechner:
Kaufpreis:
600.000 €
Eigenkapital:
600.000 €
Monatliche Rate
0 €
Effektiver Jahreszins
0 %
Sollzinsbindung
10 Jahre
Bausubstanz & Energieausweis
| Baujahr | 1983 |
|---|---|
| Letzte Sanierung | 2007 |
| Bauphase | Haus fertig gestellt |
| Objektzustand | Gepflegt |
| Qualität der Austattung | Normal |
| Heizungsart | Gas-Heizung |
| Wesentliche Energieträger | Gas |
| Energieausweis | liegt vor |
| Energieausweistyp | Verbrauchsausweis |
| Energieverbrauchskennwert | 144,5 kWh/(m²*a) |
| Energieeffizienzklasse | E |
144,5
kWh/(m²*a)
Energieeffizienzklasse E
- A+
- A
- B
- C
- D
- E
- F
- G
- H
- 0
- 25
- 50
- 75
- 100
- 125
- 150
- 175
- 200
- 225
- >250
Beschreibung des Objekts
Lage
Alt-Garbsen zählt zu den begehrtesten Wohnlagen in der Region Hannover. Die „Garbsener Schweiz“ besticht durch ihre
besondere landschaftliche Prägung: leichte Hügel, Wiesen und Waldflächen. Familien, Ruhesuchende und Naturfreunde finden
hier ein attraktives Zuhause. Trotz der Idylle ist die Infrastruktur hervorragend: Einkaufsmöglichkeiten, Kitas, Schulen und
medizinische Versorgung sind gut erreichbar. Die schnelle Anbindung an Hannover macht die Lage auch für Berufspendler
attraktiv.
Trotz der naturnahen Lage sind zentrale Ziele schnell erreichbar: Das Garbsener Rathaus ist rund 2,5 km entfernt, die Leibniz
Universität am Campus Maschinenbau etwa 4 km und die der Golfplatz am Blauen See liegt etwa 3,5 km entfernt.
Die Autobahnauffahrt zur A2 ist in ca. 2 km erreichbar – Hannover, der Flughafen Langenhagen oder das VW-Werk Stöcken
liegen so in komfortabler Nähe.
In gut erreichbarer Lage finden sich Supermärkte, Ärzte, Apotheken sowie Bäckereien und gastronomische Angebote.
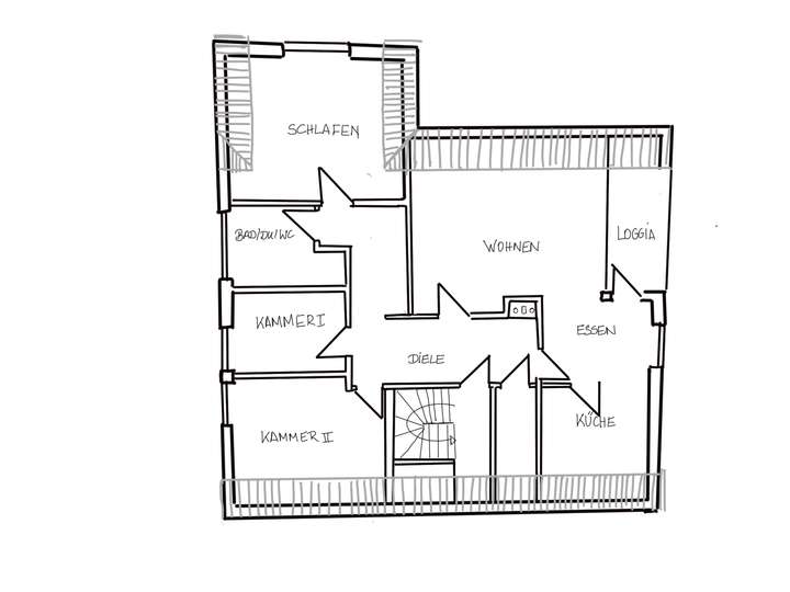
Grundriss
UG_Garbsen_ 2
>
>
EG Garbsen
>
>
Grundriss DG
>
>
Adresse
Emma-Schünhoff-Weg 20, 30823 Garbsen
Interessante Orte
Preis- und Lageinformationen
Preistrend für Bestandsimmobilien in Garbsen