Diese charmante Doppelhaushälfte wurde um das Jahr 1928 massiv erstellt und fortlaufend modernisiert. Diese Immobilie bietet viel Potenzial und Raum für eine Familie.
Der sonnige Garten, die überdachte Terrasse sowie der Wintergarten laden zum Entspannen und Wohlfühlen ein.
Wenn Sie ruhig und dennoch zentral wohnen möchten und nicht mehr viel am Haus tun möchten, schauen Sie sich diese Doppelhaushälfte einmal genauer an.
Doppelhaushälfte mit sehr viel Platz und großem Garten sucht neue Eigentümer
28779 Bremen
Die vollständige Adresse der Immobilie erhalten Sie vom Anbieter.
Auf Karte anzeigen
Die vollständige Adresse der Immobilie erhalten Sie vom Anbieter.
Finanzierungszertifikat
In nur zwei Minuten zu Ihrem persönlichen Finanzierungszertifkat.
Infos
| Haustyp | Einfamilienhaus |
|---|---|
| Wohnfläche ca. | 157 m2 |
| Nutzfläche | 47 m2 |
| Grundstücksfläche | 679 m2 |
| Zimmer | 6 |
| Schlafzimmer | 5 |
| Badezimmer | 4 |
| Garage/Stellplatz | Garage |
| Anzahl Garage/Stellplatz | 1 |
Kosten
| Kaufpreis |
329.000 € |
|---|---|
| Provision |
3,57 inkl. MwSt |
Finanzierungsrechner:
Kaufpreis:
600.000 €
Eigenkapital:
600.000 €
Monatliche Rate
0 €
Effektiver Jahreszins
0 %
Sollzinsbindung
10 Jahre
Bausubstanz & Energieausweis
| Baujahr | 1928 |
|---|---|
| Objektzustand | Gepflegt |
| Heizungsart | Zentralheizung |
| Wesentliche Energieträger | Erdgas leicht |
| Energieausweis | liegt vor |
| Energieausweistyp | Bedarfsausweis |
| Energieverbrauchskennwert | 150,2 kWh/(m²*a) |
| Energieeffizienzklasse | E |
150,2
kWh/(m²*a)
Energieeffizienzklasse E
- A+
- A
- B
- C
- D
- E
- F
- G
- H
- 0
- 25
- 50
- 75
- 100
- 125
- 150
- 175
- 200
- 225
- >250
Beschreibung des Objekts
Ausstattung
Über den Eingangsbereich gelangen Sie in die einzelnen ebenen dieser großzügigen Immobilie.
Im Erdgeschoss befindet sich ein bereits saniertes Bad mit Fenster und bodentiefer Dusche. Das großzügige Wohnzimmer samt Essbereich bietet gute Stellmöglichkeiten, so das man es sich hier gemütlich machen kann. Die Küche hat eine funktionale Größe und verfügt über einen Zugang zum Garten. Die verbaute Einbauküche samt neuwertiger elektronischer Geräte verbleibt im Haus.
Im Obergeschoss befinden sich vier gut geschnittene Zimmer die allesamt Tageslicht geflutet sind und gute Stellmöglichkeiten bieten. Die beiden größeren Zimmer wurden miteinander verbunden so das hier ein großes Schlafzimmer mit Ankleidebereich entstanden ist. Der Durchbruch der die beiden Zimmer miteinander verbindet kann mit wenig Aufwand wieder verschlossen werden, so dass hier zwei separate Zimmer entstehen können. Auf dieser Ebene befindet sich ebenfalls ein Bad mit Fenster und Badewanne.
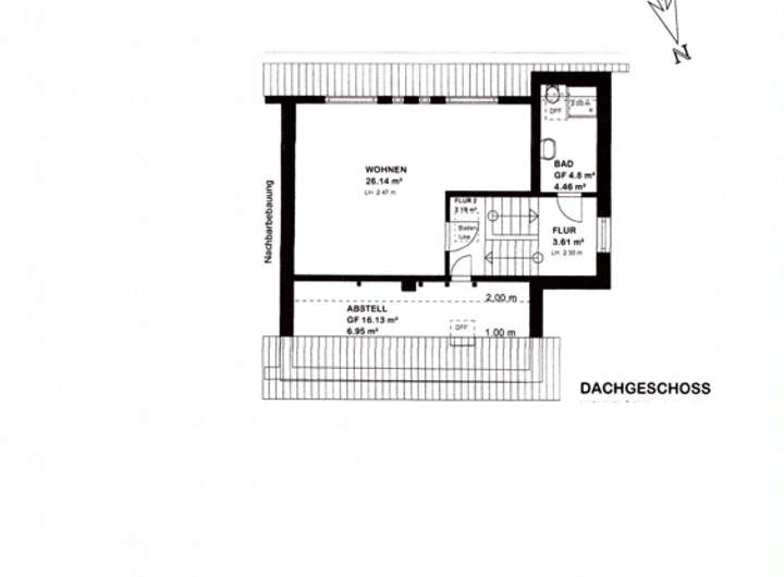
Im ausgebauten Dachgeschoss befindet sich ein geräumiges Zimmer welches durch gut gesetzte Fenster nicht wie ein Zimmer im ausgebauten Dachgeschoss wirkt. Hier haben wir ebenfalls ein Duschbad mit Fenster das modern in weiß gehalten wurde. Die Abseite des Dachgeschoss bietet einen guten Stauraum.
Der Vollkeller bietet zusätzlichen Stauraum. Hier befinde sich drei Räume welche als Stauraum sowie auch als Hobbybereich gut genutzt werden können. Die Waschküche verfügt über die benötigten Anschlüsse und eine angenehme Größe. Und auch im Keller befindet sich ein weiteres Bad mit Badewanne und einem kleinen Fenster.
Der Garten ist pflegeleicht gestaltet und bietet zahlreiche sonnige Plätze, die den ganzen Tag über genutzt werden können. An nicht so sonnigen Tagen oder in den Abendstunden laden die überdachte Terrasse sowie der Wintergarten zu entspannten Stunden ein.
Eine Garage mit angrenzendem Schuppen bietet zusätzliche Stellmöglichkeiten für Fahrzeuge, Fahrräder und Gartengeräte.
Anschauen lohnt sich hier.
Lage
Bremen-Bockhorn ist ein lebendiger und freundlicher Stadtteil im Nordwesten Bremens, der sich durch seine ländliche Atmosphäre und seine Gemeinschaft auszeichnet.
Der Ort liegt in der Nähe der Weser und bietet eine schöne Mischung aus Natur, Wohnen und kleinen charmanten Geschäften.
Bremen-Bockhorn ist bekannt für seine ruhigen Straßen, grünen Flächen und die Nähe zur Natur, was es zu einem angenehmen Ort für Familien, Naturliebhaber und alle macht, die dem Trubel der Stadt entfliehen möchten. Hier kann man entspannte Spaziergänge entlang der Weser unternehmen oder die ländliche Idylle genießen.
Der Stadtteil verfügt über eine gute Infrastruktur mit Einkaufsmöglichkeiten, Kindergärten, Schulen und Vereinen, die das Gemeinschaftsleben fördern.
Die Anbindung an Bremen ist ebenfalls gut, sodass man schnell in die Innenstadt gelangen kann, sei es mit dem Auto oder öffentlichen Verkehrsmitteln.
Bremen-Bockhorn ist also ein Ort, der Ruhe und Natur – perfekt für alle, die ein ruhiges Zuhause in der Nähe der Stadt suchen.
Sonstige Angaben
Energieausweis
Art: Bedarfsausweis
Gültig bis: 14.12.2035
Endenergieverbrauch: 150,21 kWh/(m²*a)
Baujahr lt. Energieausweis: 1928
Baujahr Heizung: 2018
Für ein ausführliches Exposé lassen Sie uns bitte eine Anfrage per E-Mail zu kommen.
Adresse
28779 Bremen
Interessante Orte
Preis- und Lageinformationen
Preistrend für Bestandsimmobilien in Lüssum-Bockhorn