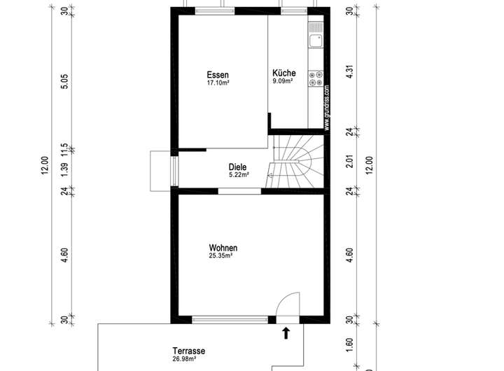
Ein charmanten Reihenendhaus, das sich durch seine großzügige Wohnfläche von 172,84 m² als wahres Raumwunder präsentiert. Diese Immobilie bietet eine durchdachte Raumaufteilung, die Funktionalität und Komfort harmonisch vereint. Mit insgesamt fünf Zimmern, darunter vier geräumige Schlafzimmer, wird genügend Platz für die gesamte Familie geboten. Der Wohnbereich besticht Dieses Haus in Burgholzhausen überzeugt durch seine offene Architektur, seine solide Bauweise und einen gepflegten Charme, der sofort eine angenehme Wohnatmosphäre vermittelt. Bereits beim Betreten wird deutlich, wie harmonisch die Räume miteinander verbunden sind. Das offen gestaltete Erdgeschoss schafft mit seiner Großzügigkeit ein Gefühl von Weite und Leichtigkeit und lädt zum Ankommen und Entspannen ein. Der Wohnbereich bildet dabei den zentralen Mittelpunkt des Hauses und öffnet sich zur angrenzenden Terrasse, die bei schönem Wetter den Wohnraum nach draußen erweitert und zu ruhigen Stunden im Freien einlädt.
Das 1984 erbaute Haus präsentiert sich in einem sehr gepflegten Zustand und steht für eine solide, wertbeständige Bauweise. Statt kurzlebiger Trends überzeugt es mit Substanz, durchdachter Raumaufteilung und einer angenehmen Wohnqualität. Die Offenheit der Räume, kombiniert mit großen Fensterflächen, sorgt in allen Bereichen für viel Tageslicht und eine warme, einladende Atmosphäre, die man sofort spürt.
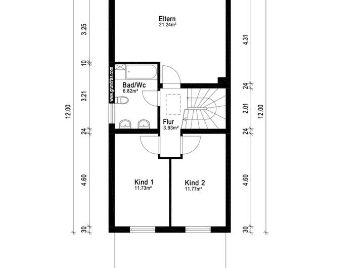
Im Obergeschoss befinden sich die privaten Rückzugsräume mit drei Schlafzimmern, die ausreichend Platz für Familie, Arbeiten oder Gäste bieten. Ergänzt wird diese Ebene durch ein Badezimmer, das funktional und komfortabel gestaltet ist. Ein besonderes Highlight ist das ausgebaute Dachgeschoss, das als großzügiges Studio mit eigenem Badezimmer zusätzlichen Wohnraum schafft und sich ideal als Gäste-, Arbeits- oder Jugendbereich nutzen lässt. Insgesamt verfügt das Haus über drei Badezimmer, die sowohl im Alltag als auch in entspannteren Momenten einen spürbaren Mehrwert bieten.
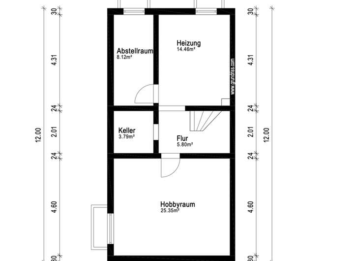
Auch das Kellergeschoss unterstreicht die Alltagstauglichkeit der Immobilie. Hier stehen neben klassischen Abstell- und Technikflächen ein großzügiger Hobbyraum zur Verfügung, der vielfältige Nutzungsmöglichkeiten eröffnet und zusätzlichen Raum für individuelle Bedürfnisse bietet.
Die Energieeffizienzklasse B spiegelt den bewussten Umgang mit Ressourcen wider und sorgt zugleich für ein angenehmes Wohnklima über das gesamte Jahr. Dieses Haus verbindet eine stabile, gut erhaltene Bausubstanz mit Offenheit, Licht und Flexibilität und bietet damit die ideale Grundlage für unterschiedlichste Lebensmodelle.
Ein Zuhause, das nicht nur Raum bietet, sondern Atmosphäre – bereit, mit Leben gefüllt zu werden. Ob als ruhiger Rückzugsort oder als lebendiger Treffpunkt für Familie und Freunde: Diese Immobilie überzeugt durch ihre Vielseitigkeit, ihren ehrlichen Charakter und das Potenzial, hier langfristig anzukommen und Zukunft zu gestalten.
Charmantes Reihenendhaus mit viel Licht, Studio und Garten – ein Zuhause zum Ankommen
61381 Friedrichsdorf
Die vollständige Adresse der Immobilie erhalten Sie vom Anbieter.
Auf Karte anzeigen
Die vollständige Adresse der Immobilie erhalten Sie vom Anbieter.
Finanzierungszertifikat
In nur zwei Minuten zu Ihrem persönlichen Finanzierungszertifkat.
Infos
| Haustyp | Reiheneckhaus |
|---|---|
| Etagenzahl | 2 |
| Wohnfläche ca. | 172 m2 |
| Nutzfläche | 57,52 m2 |
| Grundstücksfläche | 250 m2 |
| Zimmer | 5 |
| Schlafzimmer | 4 |
| Badezimmer | 3 |
Kosten
| Kaufpreis |
638.500 € |
|---|---|
| Provision |
3,57 |
Finanzierungsrechner:
Kaufpreis:
600.000 €
Eigenkapital:
600.000 €
Monatliche Rate
0 €
Effektiver Jahreszins
0 %
Sollzinsbindung
10 Jahre
Bausubstanz & Energieausweis
| Baujahr | 1984 |
|---|---|
| Objektzustand | Gepflegt |
| Heizungsart | Gas-Heizung |
| Wesentliche Energieträger | Flüssiggas |
| Energieausweis | liegt vor |
| Energieausweistyp | Verbrauchsausweis |
| Energieverbrauchskennwert | 82,1 kWh/(m²*a) |
| Energieeffizienzklasse | B |
82,1
kWh/(m²*a)
Energieeffizienzklasse B
- A+
- A
- B
- C
- D
- E
- F
- G
- H
- 0
- 25
- 50
- 75
- 100
- 125
- 150
- 175
- 200
- 225
- >250
Beschreibung des Objekts
Ausstattung
Dieses gepflegte Reihenendhaus aus dem Jahr 1984 besticht durch seine durchdachte Ausstattung und hochwertige Materialien. Mit einer großzügigen Wohnfläche von 172,84 m² verteilt auf fünf Zimmer, darunter vier Schlafzimmer und drei Badezimmer, bietet es ausreichend Platz für die ganze Familie.
Der Energieverbrauchskennwert beträgt 82,10 kWh/(m²*a), was in die Energieeffizienzklasse B fällt und auf einen effizienten Energieeinsatz hinweist. Beheizt wird das Gebäude mit Flüssiggas, was eine zuverlässige und umweltfreundliche Energiequelle darstellt.
Der Wohnbereich öffnet sich zu einer einladenden Terrasse, die zusätzlichen Raum für Erholung im Freien schafft. Die Immobilie ist in einem gepflegten Zustand, was den sofortigen Einzug ermöglicht, ohne dass größere Renovierungen notwendig wären.
Die solide Bauweise und die Verwendung hochwertiger Materialien unterstreichen die Langlebigkeit und den Komfort dieses Hauses. Eine präzise Verarbeitung und eine klare, moderne Linienführung runden das Gesamtbild ab und machen diese Immobilie zu einem idealen Rückzugsort.
Lage
Das Objekt befindet sich in der idyllischen Ortschaft Burgholzhausen vor der Höhe, einem Stadtteil von Friedrichsdorf, das bekannt ist für seine harmonische Verbindung von naturbelassener Umgebung und städtischer Anbindung. Diese Lage bietet eine ruhige Wohnatmosphäre, ideal für Menschen, die den Rückzug ins Grüne schätzen, ohne auf die Vorzüge urbaner Annehmlichkeiten verzichten zu müssen.
Für Familien stellt die Nähe zu verschiedenen Bildungseinrichtungen, darunter Grundschulen und weiterführende Schulen, einen erheblichen Vorteil dar. Kindergärten und Spielplätze sind ebenfalls schnell erreichbar, was die Lage besonders attraktiv für junge Familien macht.
Pendler profitieren von der hervorragenden Verkehrsanbindung: Die Nähe zur S-Bahn-Station ermöglicht eine schnelle Verbindung nach Frankfurt am Main und die Autobahnen A5 und A661 sind in wenigen Autominuten erreichbar. Dies macht die Lage ideal für Berufstätige, die in der Metropolregion Rhein-Main arbeiten, jedoch das ruhige Leben im Grünen bevorzugen.
Einkaufsmöglichkeiten, Restaurants und Cafés sind in der Nähe zahlreich vorhanden und bieten eine gute Infrastruktur für den täglichen Bedarf. Für Naturliebhaber bietet die Umgebung zahlreiche Wander- und Radwege, die zu Erkundungen in der malerischen Landschaft des Taunus einladen.
Die Lage bietet somit eine perfekte Balance zwischen Ruhe und Erreichbarkeit und ist besonders geeignet für Familien, Berufspendler und Naturliebhaber, die Wert auf eine qualitativ hochwertige Wohnumgebung legen.
Adresse
61381 Friedrichsdorf
Interessante Orte
Preis- und Lageinformationen
Preistrend für Bestandsimmobilien in Friedrichsdorf