Das angebotene Reihenhaus befindet sich in Wolfenbüttel, ruhig gelegen in einer gepflegten Nebenstraße, auf einem 276 m² großen Grundstück. Die Immobilie bietet eine großzügige Wohnfläche von ca. 137 m², verteilt auf zwei Etagen und insgesamt vier gut geschnittene Zimmer. Um das Gebäude auf einen höheren energetischen Standard zu bringen, ist langfristig eine Sanierung erforderlich, beispielsweise durch den Austausch der Holzfenster sowie die Dämmung der Fassade und des Daches.
Die Hausflure, die Küche sowie beide Badezimmer sind mit Fliesen ausgestattet; die übrigen Wohnräume verfügen über Teppichböden. Die überwiegend weiß gestalteten/tapezierten Wände vermitteln einen freundlichen und hellen Gesamteindruck. Die Bäder sind farbig gefliest. Elektrische Rollläden mit Zeitschaltfunktion sowie die erst kürzlich installierte Klingelanlage sorgen für zusätzlichen Komfort. Im Untergeschoss befinden sich Holzfenster, während im Obergeschoss die straßenseitigen Fenster im Jahr 2001 durch Kunststofffenster ersetzt wurden.
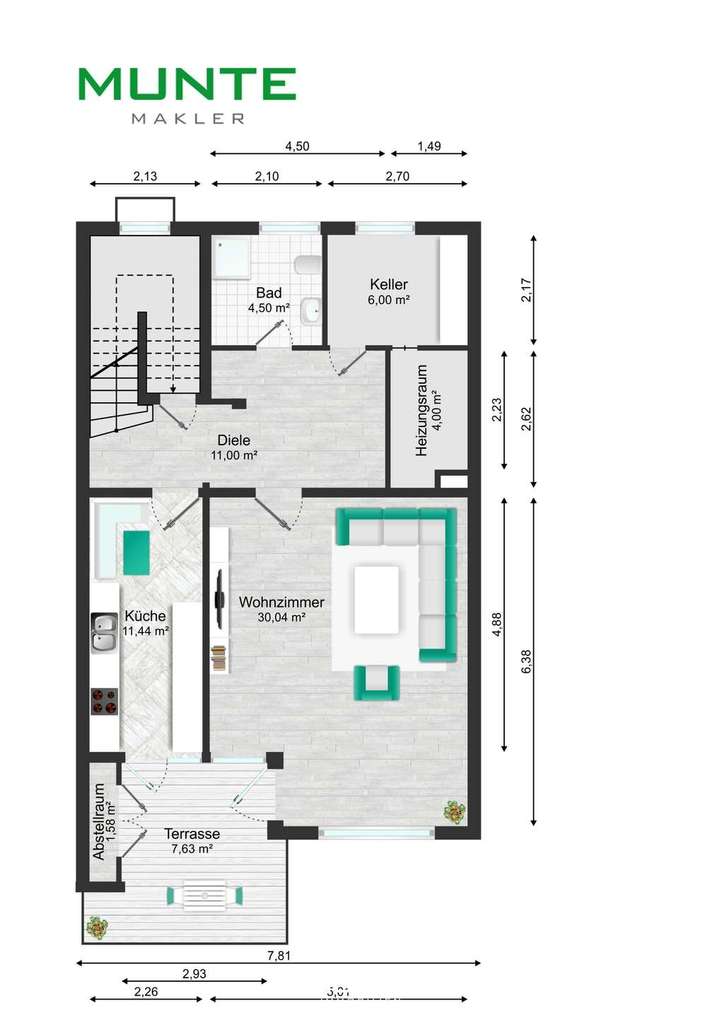
Vom Eingangsbereich gelangen Sie jeweils über eine halbe Treppe sowohl in das Obergeschoss als auch in das Untergeschoss/Erdgeschoss, was dem Grundriss eine offene und zugleich gut strukturierte Raumaufteilung verleiht. (Split-Level)
Im Erdgeschoss liegt rechts die Küche, welche mit einer Einbauküche ausgestattet ist, in der die Warmwasseraufbereitung über einen Boiler erfolgt. Von hier aus betreten Sie direkt die Terrasse. Das angrenzende, lichtdurchflutete Wohnzimmer bietet ebenfalls Zugang zu Terrasse und Garten. Die Terrasse ist teilweise überdacht und mit einer praktischen, manuellen Markise ausgestattet, ideal für sonnige Nachmittage nach dem Feierabend. Eine abschließbare Außenabstellkammer bietet zusätzlichen Stauraum für Gartenmöbel oder Möbelauflagen.
Das große dreifachverglaste Thermofenster im Wohnzimmer eröffnet einen einladenden Blick in den Garten und lässt den Raum besonders wohnlich wirken. Laut Grundriss ist die Wand zwischen Küche und Wohnzimmer nicht tragend, sodass grundsätzlich die Möglichkeit besteht, beide Räume zu einer modernen, offenen Wohnküche zu verbinden. Bitte beachten Sie, dass ein in geplanter Durchbruch vorab durch einen Statiker oder Fachbetrieb geprüft werden sollte.
Gegenüber dem Wohnzimmers befindet sich ein helles Tageslichtbad mit Dusche. Der Flur im Untergeschoss bietet dank kleiner Nischen wertvollen Stauraum z. B. für Einbauschränke. Im Untergeschoss befindet sich außerdem ein Wasch- und Trockenraum, in dem sich auch die im Jahr 2015 erneuerte Gasheizung befindet. Unter der Treppe liegen Stromkasten, Stauraum sowie die Zähler.
Im Obergeschoss erwarten Sie drei Schlafzimmer. Direkt oben rechts befindet sich ein kleiner Abstellraum, ideal als Garderobe oder zusätzlicher Stauraum. Die beiden zum Garten ausgerichteten Schlafzimmer verfügen über Zugang zu einem gemeinsamen, überdachten Balkon mit Westausrichtung, welcher sich besonders für entspannte Abendstunden anbietet. Auch hier steht Ihnen eine praktische Außenabstellkammer zur Verfügung.
Die Schlafzimmer bieten durch ihre Größe und die Aufteilung flexible Nutzungsmöglichkeiten, beispielsweise als Kinder-, Arbeits- oder großzügige Ankleidezimmer. Abgerundet wird das Obergeschoss durch ein weiteres Tageslichtbad, ausgestattet mit zwei Waschbecken und einer Badewanne.
Zur Immobilie gehört zudem eine angrenzende Garage auf dem Grundstück. Das elektrisch betriebene Tor lässt sich per Schlüssel öffnen. Vor dem Haus stehen weitere öffentliche Parkmöglichkeiten für Gäste zur Verfügung. Von der Garage führt eine kleine Treppe direkt in den Garten.
Bitte beachten Sie, dass sich das Haus aktuell noch im teilweise möblierten Zustand befindet. Eine vollständige Räumung ist jedoch zeitnah vorgesehen; der Verkauf erfolgt unmöbliert. Zum Zeitpunkt der Besichtigung wird ein Teil des Mobiliars voraussichtlich noch vorhanden sein.
Großzügiges Reihenhaus mit Garage und Balkon in ruhiger Lage
38302 Wolfenbüttel
Die vollständige Adresse der Immobilie erhalten Sie vom Anbieter.
Auf Karte anzeigen
Die vollständige Adresse der Immobilie erhalten Sie vom Anbieter.
Finanzierungszertifikat
In nur zwei Minuten zu Ihrem persönlichen Finanzierungszertifkat.
Infos
| Haustyp | Sonstige |
|---|---|
| Etagenzahl | 2 |
| Wohnfläche ca. | 137 m2 |
| Grundstücksfläche | 276 m2 |
| Bezugsfrei ab | sofort |
| Zimmer | 4 |
| Schlafzimmer | 3 |
| Badezimmer | 2 |
| Garage/Stellplatz | Garage |
| Anzahl Garage/Stellplatz | 1 |
Kosten
| Kaufpreis |
250.000 € |
|---|---|
| Provision |
3,57 % inkl. MwSt. Es fallen 3,57 % Käuferprovision vom notariell beurkundeten Kaufpreis inkl. MwSt. an. Verdient und fällig mit Beurkundung des Kaufvertrages. Der Immobilienmakler hat einen provisionspflichtigen Maklervertrag mit dem/der Verkäufer/in in gleicher Höhe abgeschlossen. |
Finanzierungsrechner:
Kaufpreis:
600.000 €
Eigenkapital:
600.000 €
Monatliche Rate
0 €
Effektiver Jahreszins
0 %
Sollzinsbindung
10 Jahre
Bausubstanz & Energieausweis
| Baujahr | 1972 |
|---|---|
| Heizungsart | Gas-Heizung |
| Wesentliche Energieträger | Erdgas leicht |
| Energieausweis | liegt vor |
| Energieausweistyp | Bedarfsausweis |
| Energieverbrauchskennwert | 197,1 kWh/(m²*a) |
| Energieeffizienzklasse | F |
197,1
kWh/(m²*a)
Energieeffizienzklasse F
- A+
- A
- B
- C
- D
- E
- F
- G
- H
- 0
- 25
- 50
- 75
- 100
- 125
- 150
- 175
- 200
- 225
- >250
Beschreibung des Objekts
Ausstattung
- Moderne Klingelanlage
- Komfortables elektrisches Garagentor
- Zwei helle Tageslichtbäder
- Marmortreppe
- Manuelle Markise zur flexiblen Beschattung
- Elektrische Rollläden mit praktischer Zeitschaltuhr
- Großzügiger Balkon mit direktem Zugang von zwei Schlafzimmern
- Garage mit Zugang zum Garten
- Praktische Abstellkammern auf Balkon und Terrasse
- Zusätzlicher Abstellraum im Obergeschoss
- Obergeschoss überwiegend mit pflegeleichten Kunststofffenstern (Baujahr 2001) ausgestattet
Lage
Das Haus befindet sich in einer ruhigen Wohngegend von Wolfenbüttel in Nähe der Ostfalia Hochschule.
In der näheren Umgebung finden sich mehrere Einrichtungen für den täglichen Bedarf. Ein EDEKA-Markt sowie ein Lidl sind in weniger als 5 Minuten mit dem Auto zu erreichen. Zudem gibt es die Richters Altstadtbäckerei und mehrere Restaurants in der Umgebung.
Besonders für Familien mit Kindern sind die zahlreichen Spielplätze hervorzuheben, wie der Spielplatz an der Grüssauer Straße, der Spielplatz am Kuhle und der Spielplatz am Schneekoppeweg. Wolfenbüttel bietet außerdem eine Vielzahl an Bildungseinrichtungen sowie die Ostfalia Hochschule für angewandte Wissenschaften.
Des Weiteren zeichnet sich die Kreisstadt durch eine hervorragende verkehrstechnische Anbindung aus. Die A36, die direkt von Wolfenbüttel nach Braunschweig führt, ermöglicht eine schnelle Verbindung. Die Braunschweiger Innenstadt ist in ca. 20 Minuten zu erreichen. Darüber hinaus ist die A39, die Wolfenbüttel mit Salzgitter und weiter mit Goslar verbindet, nur wenige Minuten entfernt. Auch die A2 (Hannover–Berlin) ist schnell erreichbar und bietet eine bequeme Anbindung nach Hannover oder Magdeburg.
Sonstige Angaben
Möchten Sie auch Ihre Immobilie verkaufen oder vermieten?
Sprechen Sie mich gerne an, möglicherweise haben wir schon jetzt den passenden Käufer oder Mieter in unserer umfangreichen Kundenkartei!
Sie erreichen mich unter: 0531-120 64.63 und kochanek@munte-immobilien.de.
Wir bitten um Ihr Verständnis, dass wir Ihre Anfrage nur beantworten können, wenn Sie uns Ihre vollständigen Kontaktdaten mit Namen, Adresse, Email und einer Telefonnummer mitteilen. Ihre Daten werden selbstverständlich vertraulich behandelt und gem. DSGVO nicht weitergegeben.
Unser Angebot basiert auf den Angaben Dritter. Wir behalten uns Irrtümer, Auslassungen sowie einen Zwischenverkauf vor. Weiterhin übernehmen wir für die Richtigkeit und Vollständigkeit der von Dritten gemachten Angaben keine Haftung. Insbesondere die Angaben zur Wohnfläche, zur Nutzfläche und zur Aufteilung der Wohn- und Nutzfläche sind von uns nicht durch ein eigenes Aufmaß oder eine eigene Wohnflächenberechnung kontrolliert worden.
Unser Exposé ist nur für den Empfänger bestimmt.
Die Annahme oder Verwertung dieses Angebotes begründet den Abschluss eines Maklervertrages mit uns.
Ohne Abschluss eines Kauf- /Mietvertrages ist unsere Dienstleistung dem Interessenten gegenüber kostenfrei. Jede unbefugte Weitergabe unseres Angebotes an Dritte, auch Vollmacht- oder Auftraggeber des Interessenten, führt in voller Höhe zur Provisionspflicht. Gemäß § 11 MaBV weisen wir darauf hin, dass wir weder Kaufpreis noch Mietzahlungen oder Kautionen entgegennehmen.
Wir weisen darauf hin, dass bei Erwerb von Bestandsbauten die Vorgaben des Gebäudeenergiegesetzes (GEG) vom Käufer berücksichtigt werden müssen.
Benötigen Sie Unterstützung bei Ihrer Finanzierung? Gerne vermitteln wir Sie zu unserem Finanzierungspartner.
Grundriss
Grundriss UG
>
>
Grundriss OG
>
>
Adresse
38302 Wolfenbüttel
Interessante Orte
Preis- und Lageinformationen
Preistrend für Bestandsimmobilien in Wolfenbüttel