Dieses gepflegte Einfamilienhaus aus dem Jahr 1927 vereint historischen Charme mit moderner Ausstattung und besonderen Annehmlichkeiten. Auf einem großzügigen Grundstück von rund 2.448 Quadratmetern bietet es eine Wohnfläche von etwa 133,73 Quadratmetern sowie ein separates Nebengebäude mit etwa 92,86 Quadratmetern, welches als barrierefreies Wohn- oder Feriendomizil umgestaltet werden kann.
Das Haus verfügt über insgesamt fünf helle Zimmer, die dank der großen Fensterflächen ein freundliches und offenes Raumgefühl schaffen. Auch ein großzügiger Wintergarten ist direkt vom Wohnhaus aus erreichbar. 1998 wurden umfangreiche Modernisierungen durchgeführt, darunter die Erneuerung der Elektrik, der Fenster, der Fassade mit 80 Millimeter Dämmung, der Dacheindeckung sowie des Badezimmers im Dachgeschoss.
Highlight ist der großzügige Indoor-Swimmingpool, der im Jahr 2000 eingebaut wurde und mit einer Solarthermieanlage für ganzjährigen Badespaß sorgt. Eine moderne Brennwert-Therme und ein Kamin aus dem Jahr 2015 unterstreichen den zeitgemäßen Wohnkomfort. Der Fassadenanstrich erfolgte 2018 und trägt neben dem gepflegten Garten zum tollen Gesamteindruck bei.
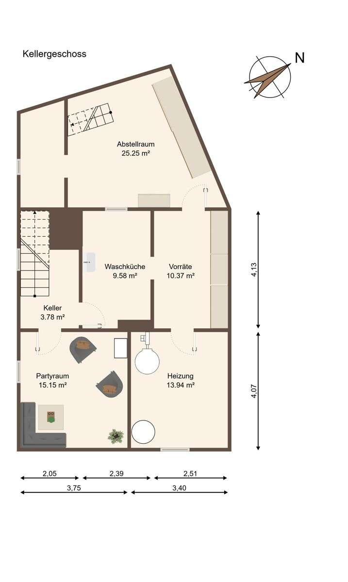
Drei Garagen, mehrere Außenstellplätze, Vollkeller mit Partyraum und das vielseitig nutzbare Nebengebäude mit eigenem Eingang runden das Angebot ab. Diese Immobilie überzeugt durch ihre gelungene Kombination aus großzügigem Wohnen, Wellnessbereich und Ihren individuellen Ideen.
Einfamilienhaus mit Indoor-Pool und Nebengelass mit Potenzial
39638 Gardelegen
Die vollständige Adresse der Immobilie erhalten Sie vom Anbieter.
Auf Karte anzeigen
Die vollständige Adresse der Immobilie erhalten Sie vom Anbieter.
Finanzierungszertifikat
In nur zwei Minuten zu Ihrem persönlichen Finanzierungszertifkat.
Infos
| Haustyp | Einfamilienhaus |
|---|---|
| Etagenzahl | 1 |
| Wohnfläche ca. | 133 m2 |
| Nutzfläche | 458,58 m2 |
| Grundstücksfläche | 2.448 m2 |
| Zimmer | 5 |
| Schlafzimmer | 3 |
| Badezimmer | 2 |
| Garage/Stellplatz | Garage |
| Anzahl Garage/Stellplatz | 3 |
Kosten
| Kaufpreis |
289.000 € |
|---|---|
| Provision |
Die Käuferprovision beträgt 4,17% inkl. 19% MwSt. vom notariellen Kaufpreis. |
Finanzierungsrechner:
Kaufpreis:
600.000 €
Eigenkapital:
600.000 €
Monatliche Rate
0 €
Effektiver Jahreszins
0 %
Sollzinsbindung
10 Jahre
Bausubstanz & Energieausweis
| Baujahr | 1927 |
|---|---|
| Objektzustand | Gepflegt |
| Qualität der Austattung | Normal |
| Heizungsart | Zentralheizung |
| Wesentliche Energieträger | Gas |
| Energieausweis | liegt vor |
| Energieausweistyp | Bedarfsausweis |
| Energieverbrauchskennwert | 160,4 kWh/(m²*a) |
| Energieeffizienzklasse | F |
160,4
kWh/(m²*a)
Energieeffizienzklasse F
- A+
- A
- B
- C
- D
- E
- F
- G
- H
- 0
- 25
- 50
- 75
- 100
- 125
- 150
- 175
- 200
- 225
- >250
Beschreibung des Objekts
Ausstattung
- großer Indoor-Swimmingpool (2000)
- Kamin (2015)
- Nebengebäude (1992)
- drei Garagen
- Außenstellplätze
- zwei Badezimmer
- großzügiger Garten
- Solarthermie
Modernisierungen / Sanierungen
- Fassadenanstrich (2018)
- Brennwert-Therme (2015)
- Bad DG (1998)
- Fenster (1998)
- Dacheindeckung (1998)
- Fassadendämmung (1998)
- Elektrik (1998)
Lage
Die Hansestadt Gardelegen mit ihren gut 22.000 Einwohnern liegt im Altmarkkreis Salzwedel und ist flächenmäßig die drittgrößte Stadt Deutschlands.
Dabei ist die Immobilie nur gut 1.000 m von der Innenstadt entfernt und damit auch fußläufig gut zu erreichen.
Gardelegen selbst bietet sämtliche Einrichtungen des täglichen Bedarfs, die Bildung der Kinder ist gesichert und selbst ein Krankenhaus sowie ein Bahnhof sind zu finden. Der Stadtkern mit seinen historischen Fachwerk- und Sandsteinhäusern lädt zum Bummeln und Verweilen ein. Die Kirchen, Stadttore und die Roland-Statue sind über die Grenzen von Gardelegen hinaus bekannt und die Stadt wird auch touristisch besucht.
Lassen Sie sich von dieser tollen Stadt überraschen und erklären Sie sie vielleicht zu Ihrer neuen Heimat. Es lohnt sich.
Sonstige Angaben
Alle Angaben in diesem Exposé beruhen auf Informationen des Verkäufers und wurden mit Sorgfalt zusammengestellt. Für deren Richtigkeit, Vollständigkeit und Aktualität übernehmen wir keine Haftung. Irrtümer und Zwischenverkauf bleiben vorbehalten.
Die dargestellten Fotos dienen der Veranschaulichung. Einzelne Bilder können digital optimiert oder mithilfe moderner Bildbearbeitung, einschließlich KI-gestützter Verfahren, angepasst worden sein. Maßgeblich ist der persönliche Eindruck bei einer Besichtigung.
Bitte beachten Sie, dass ausschließlich schriftliche Anfragen mit vollständig ausgefüllten Kontaktdaten bearbeitet werden können. Vielen Dank für Ihr Verständnis.
Gern berate ich Sie persönlich.
Möchten Sie Ihre Immobilie verkaufen?
☎ 0176 5767 6564
Ihr Ansprechpartner: Thomas Preuße
Grundriss
Grundriss EG
>
>
Grundriss DG
>
>
Grundriss KG
>
>
Adresse
39638 Gardelegen
Interessante Orte
Preis- und Lageinformationen
Preistrend für Bestandsimmobilien in Gardelegen