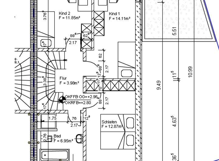
In einer Baulücke im gewachsenen Ortskern von Friedrichsdorf Seulberg entsteht diese energetisch sowie technisch hochwertige Doppelhaushälfte auf einem 218m2 großen Grundstück in Feldrandlage. Die Immobilie wird als Massivhaus erstellt und ist unterkellert. Anders als in den einschlägigen Neubaugebieten grenzt das Grundstück an die riesigen Gartengrundstücke und Obstgärten der Nachbarschaft. Eine ähnlich großzügige Lage mit riesigem Freiraum hinter Ihrem Garten werden Sie selten finden. Das Haus wird schlüsselfertig mit hochwertiger Ausstattung von einem renommierten Bauträger erstellt - Baubeginn ist für das Frühjahr geplant. Eine Bau- und Ausstattungsbeschreibung lassen wir Ihnen gerne zukommen. In dieser frühen Phase haben Sie den Vorteil, dass Sie noch vollständigen Einfluss auf die Ausstattung Ihres neuen Hauses nehmen können. Das dreigeschossige Haus hat eine Wohnfläche von 143m2 und ist zusätzlich unterkellert (Nutzfläche: 36m2), auf dem Grundstück wird ein Carport und ein Stellplatz für Ihren PKW entstehen.
Schlüsselfertige DHH in TOP-Lage
61381 Friedrichsdorf
Die vollständige Adresse der Immobilie erhalten Sie vom Anbieter.
Auf Karte anzeigen
Die vollständige Adresse der Immobilie erhalten Sie vom Anbieter.
Finanzierungszertifikat
In nur zwei Minuten zu Ihrem persönlichen Finanzierungszertifkat.
Infos
| Haustyp | Doppelhaushaelfte |
|---|---|
| Etagenzahl | 3 |
| Wohnfläche ca. | 143 m2 |
| Nutzfläche | 36 m2 |
| Grundstücksfläche | 218 m2 |
| Bezugsfrei ab | 01.10.2026 |
| Zimmer | 5 |
| Schlafzimmer | 4 |
| Badezimmer | 2 |
| Garage/Stellplatz | Carport |
Kosten
| Kaufpreis |
890.000 € |
|---|---|
| Provision | Nein |
Finanzierungsrechner:
Kaufpreis:
600.000 €
Eigenkapital:
600.000 €
Monatliche Rate
0 €
Effektiver Jahreszins
0 %
Sollzinsbindung
10 Jahre
Bausubstanz & Energieausweis
| Baujahr | 2026 |
|---|---|
| Bauphase | Haus in Planung (projektiert) |
| Objektzustand | Erstbezug |
| Qualität der Austattung | Gehoben |
| Heizungsart | Fußbodenheizung |
| Wesentliche Energieträger | Umweltwärme |
| Energieausweis | liegt zur Besichtigung vor |
Beschreibung des Objekts
Lage
Der Standort der Immobilie befindet sich am Rand von Seulberg, dem schönsten Stadtteil von Friedrichsdorf und einem der ältesten Orte im Hochtaunuskreis. Umgehungsstraße, S-Bahn und Autobahn sind in sicherer Entfernung, vor dem Haus gibt es nur minimalen Anliegerverkehr. Auch Hochspannungsleitungen oder Fluglärm kennt man in Seulberg nicht.
Grundschule und Kindergarten sind gut zu Fuß zu erreichen, der öffentliche Nahverkehr ist nur ein paar Gehminuten entfernt. Mit der RMV-Linie S5 (nur 500 Meter zum S-Bahnhof!) haben Sie perfekten Anschluss an Frankfurt und das gesamte Rhein-Main gebiet. Die A5 liegt ganz in der Nähe und bietet eine gute Anbindung an den Fernverkehr mit dem Auto.
Im alten Ortskern von Seulberg finden Sie örtliche Versorger wie den Bauernladen, einen Metzger, einen Bäcker und verschiedene Gastronomie. Die nächsten größeren Supermärkte befinden sich in einem Radius von 2 km.
Sonstige Angaben
Gerne stellen wir Ihnen dieses interessante Objekt in einem persönlichen Gespräch vor. Die Immobilie wird für den Käufer provisionsfrei angeboten. Für die Vermarktung liegt uns ein Alleinauftrag vor.
Dieses Angebot steht unter dem Vorbehalt der Verfügbarkeit. Die angegebenen Informationen werden als korrekt angesehen, für ihre Richtigkeit kann jedoch keine Garantie übernommen werden. Sie sind ausdrücklich nicht Vertragsbestandteil. Änderungen bleiben vorbehalten.
Wir bemühen uns, über Objekte und Vertragspartner vollständige und richtige Angaben zu erhalten; wir können diese jedoch nicht auf Richtigkeit prüfen. Eine Haftung für deren Richtigkeit und Vollständigkeit können wir daher nicht übernehmen. Maßgebend ist der notarielle Kaufvertrag.
Adresse
61381 Friedrichsdorf
Interessante Orte
Preis- und Lageinformationen
Preistrend für Bestandsimmobilien in Friedrichsdorf