Dieses gepflegte Einfamilienhaus von 1980 liegt in der ruhigen Wohnstraße im Ortsteil Husbäke von Edewecht. Umgeben von einer grünen, naturnahen Landschaft bietet das Haus auf ca. 288 m² Wohnfläche 9 helle und gut geschnittene Zimmer, die Platz für die ganze Familie bieten. Die Wohnräume sind freundlich und einladend, ideal für eine individuelle Gestaltung.
Besonderen Charme verleiht dem Anwesen eine vollständig ausgestattete Einliegerwohnung. Diese bietet vielfältige Nutzungsmöglichkeiten – als Gäste-, Arbeitsbereich, Homeoffice oder zur Vermietung. So lässt sich das Haus auch als Mehrgenerationenhaus nutzen.
Ein Highlight ist die auf dem Dach im September 2023 installierte Photovoltaikanlage mit ca. 6 KW und einem Speicher von ca. 8 KW, die zur nachhaltigen Energieversorgung beiträgt. Ein echtes Plus für umweltbewusste Käufer, die Wert auf Energieeffizienz legen.
Der großzügige Garten lädt zu entspannenden Stunden im Freien ein. Hier lässt sich eine eigene Oase der Ruhe schaffen – sei es für ein gemütliches Frühstück auf der Terrasse oder einen entspannten Abend mit Familie und Freunden. Der Garten bietet viel Platz für Kinder, Tiere und Gartenliebhaber.
Eine Garage sowie zusätzliche Stellplätze bieten ausreichend Parkmöglichkeiten und runden das Angebot ab.
Die Lage im grünen Husbäke vereint ländliche Ruhe und gute Anbindung an alle wichtigen Annehmlichkeiten. Das Ortszentrum von Edewecht ist nur wenige Minuten entfernt und bietet eine gute Auswahl an Einkaufsmöglichkeiten, Schulen und Ärzten. Auch die Anbindung an Oldenburg und andere Orte ist hervorragend.
Fazit:
Dieses Einfamilienhaus ist der ideale Rückzugsort für Familien, die eine ruhige, naturnahe Umgebung schätzen. Die flexiblen Nutzungsmöglichkeiten der Einliegerwohnung machen das Anwesen besonders attraktiv.
Wir freuen uns auf eine Besichtigung mit Ihnen.
6643 - Naturnah leben in ruhiger Wohnlage / Großzügiges Wohnhaus mit Einliegerwohnung und Photovolta
26188 Edewecht
Die vollständige Adresse der Immobilie erhalten Sie vom Anbieter.
Auf Karte anzeigen
Die vollständige Adresse der Immobilie erhalten Sie vom Anbieter.
Finanzierungszertifikat
In nur zwei Minuten zu Ihrem persönlichen Finanzierungszertifkat.
Infos
| Haustyp | Einfamilienhaus |
|---|---|
| Wohnfläche ca. | 288 m2 |
| Nutzfläche | 90,36 m2 |
| Grundstücksfläche | 1.614 m2 |
| Bezugsfrei ab | nach Vereinbarung |
| Zimmer | 9 |
| Schlafzimmer | 5 |
| Badezimmer | 3 |
| Garage/Stellplatz | Carport |
| Anzahl Garage/Stellplatz | 1 |
Kosten
| Kaufpreis |
419.000 € |
|---|---|
| Provision |
3,57 % inkl. MwSt. vom Kaufpreis |
Finanzierungsrechner:
Kaufpreis:
600.000 €
Eigenkapital:
600.000 €
Monatliche Rate
0 €
Effektiver Jahreszins
0 %
Sollzinsbindung
10 Jahre
Bausubstanz & Energieausweis
| Baujahr | 1980 |
|---|---|
| Objektzustand | Gepflegt |
| Wesentliche Energieträger | Gas |
| Energieausweis | liegt vor |
| Energieausweistyp | Bedarfsausweis |
| Energieverbrauchskennwert | 201,0 kWh/(m²*a) |
| Energieeffizienzklasse | G |
201,0
kWh/(m²*a)
Energieeffizienzklasse G
- A+
- A
- B
- C
- D
- E
- F
- G
- H
- 0
- 25
- 50
- 75
- 100
- 125
- 150
- 175
- 200
- 225
- >250
Beschreibung des Objekts
Ausstattung
Ausstattungsmerkmale dieses Einfamilienhauses sind u. a.
- durchdachter Grundriss
- Einliegerwohnung
- Kaminzimmer
- Einbauküche
- Einbauküche in Einliegerwohnung
- Teilunterkellert und Kriechkeller
- Gaszentralheizung Baujahr: 2023
- Photovoltaikanlage installiert, Sept. 2023 mit ca. 6 KW und einem ca. 8 KW Speicher
- Holztüren in Stahl-/Holzzargen
- Kunststofffenster mit 2- und 3-fach-Isolierverglasung
- Fußbodenfliesen, Laminat-/Vinyl-Beläge
- Spitzboden
- überdachte Terrasse mit Garten und Grundwasserpumpe
- Garage und Carport
Eine detaillierte Beschreibung würde den Rahmen sprengen, daher empfehlen wir Ihnen eine Besichtigung, sodass Sie sich selbst ein Bild von der attraktiven Immobilie machen können.
Lage
Die schöne Immobilie iegt im Ortsteil Husbäke der Gemeinde Edewecht im Landkreis Ammerland. Es handelt sich um eine ruhige, familienfreundliche Wohnstraße mit Einfamilienhäusern und gepflegten Gärten. Die Straße ist eine Sackgasse bzw. reine Anliegerstraße, wodurch kaum Durchgangsverkehr entsteht.
Die Umgebung ist grün und ländlich geprägt, mit Feldern und Wiesen in unmittelbarer Nähe. Trotz der ruhigen Lage ist das Ortszentrum von Edewecht in wenigen Fahrminuten erreichbar. Dort befinden sich Supermärkte, Schulen, Ärzte und weitere Einrichtungen des täglichen Bedarfs.
Die Verkehrsanbindung ist gut: Über den Bachmannsweg gelangt man schnell in die Richtungen Oldenburg (ca. 20–25 Minuten) und Bad Zwischenahn. Öffentliche Verkehrsmittel sind ebenfalls im Ortsteil vorhanden.
Insgesamt bietet die Lage ruhiges Wohnen im Grünen bei gleichzeitig guter Erreichbarkeit der Infrastruktur von Edewecht.
Sonstige Angaben
Wichtige Hinweise:
Alle Angaben zum Objekt beruhen auf den Angaben des Eigentümers. Für die Vollständigkeit und Richtigkeit dieser Daten übernehmen wir daher grundsätzlich keine Gewähr. Irrtümer sowie Zwischenvermietung bleiben vorbehalten.
Wir bitten um Verständnis dafür, dass wir Informationen zu unseren Objekten nur erteilen, wenn Sie bei ihren Anfragen ihre vollständige Postanschrift, E-Mail und Telefonnummer angeben.
Es ist möglich, dass Sie dieses Objekt auch von anderen Maklern aus der Immobilienbörse Weser-Ems angeboten bekommen. In dem Fall wenden Sie sich an den Makler Ihres Vertrauens.
Nach GEG § 80 Abs. 4 muss im Falle des Verkaufs von Ein- und Zweifamilienhäusern ein kostenfreies, informatorisches Beratungsgespräch mit einer nach § 88 GEG ausstellungsberechtigten Person zum Energieausweis geführt werden.
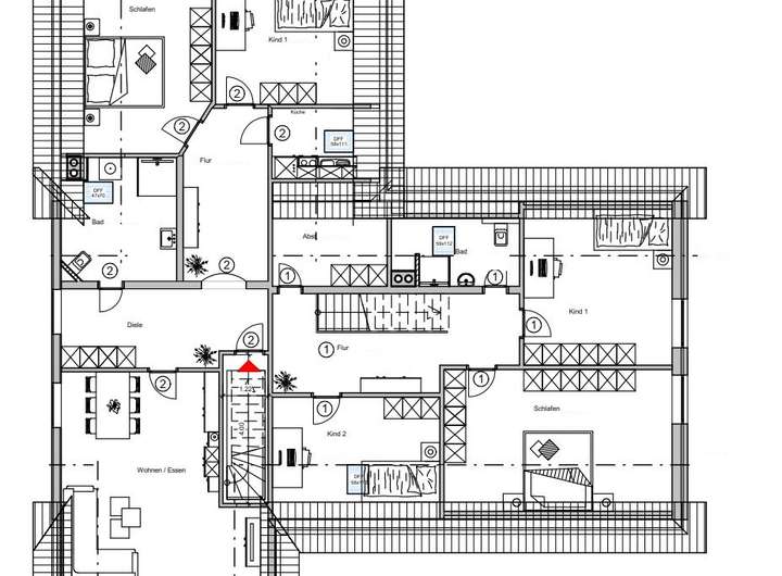
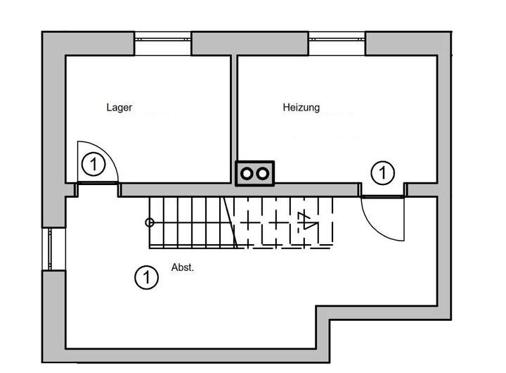
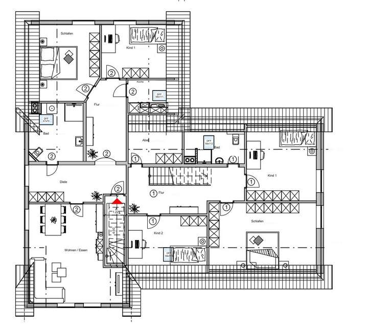
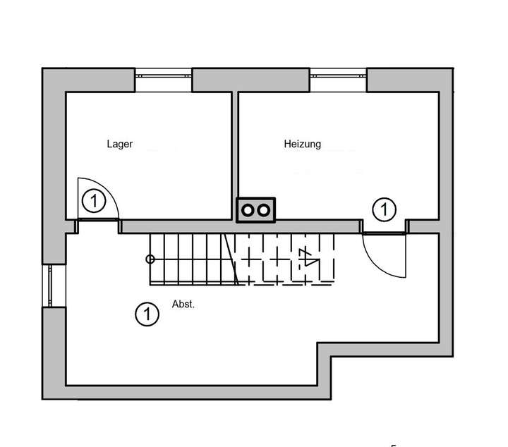
Grundriss
Grundriss Keller
>
>
Grundriss Erdgeschoss
>
>
Grundriss Dachgeschoss
>
>
Adresse
26188 Edewecht
Interessante Orte
Preis- und Lageinformationen
Preistrend für Bestandsimmobilien in Edewecht