Dieses charmante Reihenhaus in Hamburg / Volksdorf bietet eine ideale Wohnmöglichkeit für Familien.
Das Haus wurde 1961 erbaut und präsentiert sich heute in einem gepflegten Zustand. Die Böden sind mit einer Kombination aus Laminat, Teppichboden und Fliesen ausgestattet.
Die Einbauküche ist modern und komplett ausgestattet mit u.a. einem Induktionsherd.
Der Garten lädt mit seiner Südausrichtung und der Terrasse zu entspannten Stunden im Freien ein. Zusätzlich bietet ein Gartenhaus weiteren Stauraum. Die Immobilie ist mit einer Photovoltaik-Anlage ausgestattet, die seit 2024 für umweltfreundlichen Strom sorgt, und einer effizienten Gasheizung aus dem Jahr 2018.
Im Erdgeschoss (Küche, Windfang, Gäste WC und Wohnzimmer) finden Sie einen durchgängigen Fliesenbelag. Das ausgebaute Dachgeschoss bietet zwei zusätzliche Räume und einen Spitzboden. Das Badezimmer ist mit hellen Fliesen, einem Handtuchheizkörper, einer Wanne und einem Fenster ausgestattet.
Diese Immobilie ist vollunterkellert und bietet mit elektrischen Rollläden, neuen Dachfenstern (12/2025) und einem Windfang zusätzlichen Komfort.
Ideal für Familien und in einer hervorragenden Lage gelegen, verspricht dieses Haus ein Zuhause voller Gemütlichkeit und modernem Komfort.
RESERVIERT - Platz für neue Kapitel.
22359 Hamburg
Die vollständige Adresse der Immobilie erhalten Sie vom Anbieter.
Auf Karte anzeigen
Die vollständige Adresse der Immobilie erhalten Sie vom Anbieter.
Finanzierungszertifikat
In nur zwei Minuten zu Ihrem persönlichen Finanzierungszertifkat.
Infos
| Haustyp | Sonstige |
|---|---|
| Etagenzahl | 3 |
| Wohnfläche ca. | 118 m2 |
| Grundstücksfläche | 267 m2 |
| Zimmer | 5,5 |
| Schlafzimmer | 2 |
| Badezimmer | 1 |
| Garage/Stellplatz | Garage |
| Anzahl Garage/Stellplatz | 1 |
Kosten
| Kaufpreis |
599.000 € |
|---|---|
| Provision |
3,57 % inkl. der gesetzlichen MwSt. des Kaufpreises |
Finanzierungsrechner:
Kaufpreis:
600.000 €
Eigenkapital:
600.000 €
Monatliche Rate
0 €
Effektiver Jahreszins
0 %
Sollzinsbindung
10 Jahre
Bausubstanz & Energieausweis
| Baujahr | 1961 |
|---|---|
| Letzte Sanierung | 2018 |
| Objektzustand | Gepflegt |
| Heizungsart | Gas-Heizung |
| Wesentliche Energieträger | Gas |
| Energieausweis | liegt vor |
| Energieausweistyp | Bedarfsausweis |
| Energieverbrauchskennwert | 187,4 kWh/(m²*a) |
| Energieeffizienzklasse | F |
187,4
kWh/(m²*a)
Energieeffizienzklasse F
- A+
- A
- B
- C
- D
- E
- F
- G
- H
- 0
- 25
- 50
- 75
- 100
- 125
- 150
- 175
- 200
- 225
- >250
Beschreibung des Objekts
Ausstattung
Die Highlights zusammengefasst:
- PV Anlage auf dem Dach
- neue Gasheizung aus 2018
- neue Dachfenster (12/2025)
- Garten Richtung Süden
- Garage
- (elektr.) Rollläden
- Badezimmer und Gäste WC
- Küche aus 2011
- Vollkeller
Weitere Informationen erhalten Sie auf Anfrage mit unserem Exposé!
Lage
Entdecken Sie Ihr neues Zuhause im charmanten Stadtteil Hamburg-Volksdorf! Diese Immobilie befindet sich in einer ruhigen und gefragten Wohngegend, wo Sie sowohl die Vorzüge des Stadtlebens als auch die Ruhe einer grünen Umgebung genießen können.
- Nur wenige Gehminuten entfernt liegen Einkaufsmöglichkeiten, Restaurants und Cafés, die für Ihr tägliches Wohl sorgen.
- Die ausgezeichneten Schulen und Kindergärten in der Nähe machen diese Lage besonders attraktiv für Familien.
- Genießen Sie die Nähe zu Parks und Naturreservaten, ideal für Spaziergänge, Fahrradtouren und Entspannung in der Natur.
- Eine hervorragende Anbindung an den öffentlichen Nahverkehr stellt sicher, dass Sie schnell und bequem in die Hamburger Innenstadt oder zu anderen Teilen der Stadt gelangen können.
- Die ruhige Wohnstraße bietet eine entspannte Atmosphäre, während Sie gleichzeitig von der lebendigen Community und den vielfältigen Freizeitmöglichkeiten in Volksdorf profitieren.
Erleben Sie das Beste aus beiden Welten mit dieser einzigartigen Lage in Hamburg-Volksdorf!
Sonstige Angaben
Für nähere Informationen zu dieser Liegenschaft steht Ihnen Herr Florian Grein unter der Mobilfunknummer 01520 - 760 14 73 gern zur Verfügung.
Weitere interessante Angebote finden Sie auf unserer Firmenhomepage: www.kensington-hamburg.com
Alle Angaben sind ohne Gewähr und basieren ausschließlich auf Informationen, die uns von unserem Auftraggeber zur Verfügung gestellt wurden. Wir übernehmen keine Gewähr für die Vollständigkeit, Richtigkeit und Aktualität dieser Angaben.
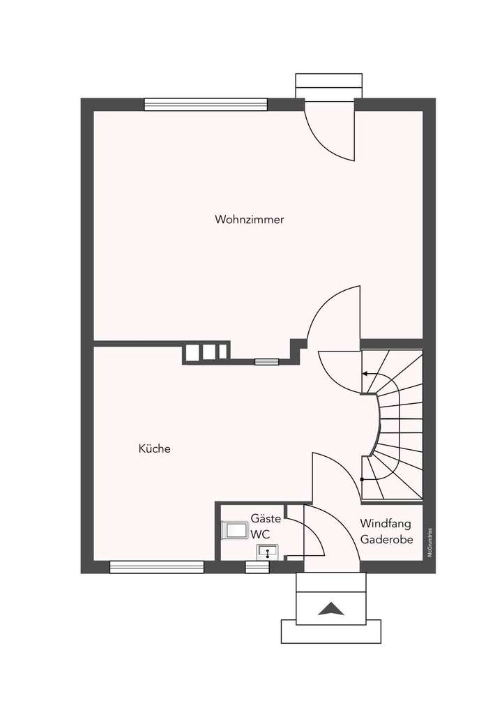
Grundriss
EG
>
>
OG
>
>
DG
>
>
Adresse
22359 Hamburg
Interessante Orte
Preis- und Lageinformationen
Preistrend für Bestandsimmobilien in Volksdorf