Charmante Doppelhaushälfte mit großem Garten & Ausbaupotenzial
Wohnen mit Charakter und Zukunftsperspektive:
Diese liebevoll gepflegte Doppelhaushälfte aus dem Jahr 1938 verbindet solide Massivbauweise mit einem behaglichen Wohngefühl und bietet zugleich attraktives Ausbaupotenzial. Eingebettet in ein großzügiges Erbpachtgrundstück von ca. 675 m² ist dieses Haus ein echtes Zuhause für alle, die Garten, Ruhe und Entwicklungsmöglichkeiten schätzen.
Doppelhaushälfte | Baujahr 1938
Ca. 80 m² Wohnfläche
675 m² Grundstück (Erbpacht)
Großer Garten vorne & hinten
Terrasse, Gartenhaus, Garage & Stellplatz
Wohnen mit Wohlfühlfaktor
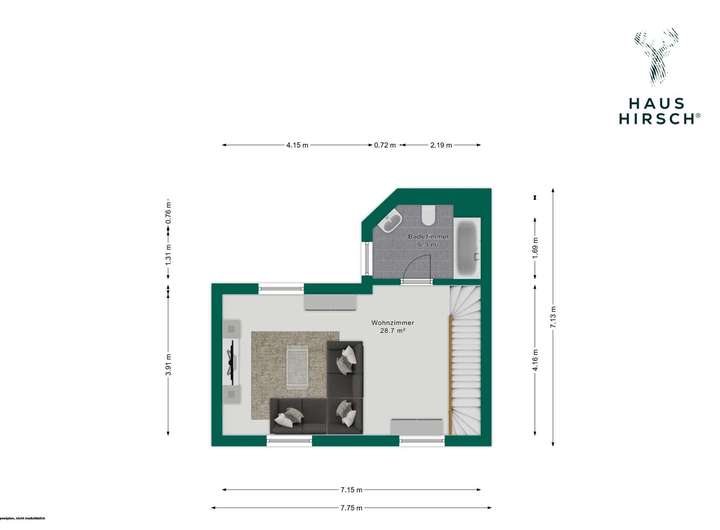
Im Erdgeschoss empfängt Sie ein gemütliches Wohnzimmer mit Parkettboden und offen integrierter Treppe – ein echtes Highlight mit Charme. Ein separates Esszimmer bietet Platz für gemeinsame Stunden, während die moderne Einbauküche mit direktem Zugang in den Garten zum Kochen und Genießen einlädt. Ein Gäste-Bad sowie ein freundlicher Eingangsbereich komplettieren diese Ebene.
Das Obergeschoss beherbergt ein großzügiges Schlafzimmer sowie ein helles Tageslichtbad mit Duschwanne.
Viel Platz für Ideen
Voll unterkellert mit drei praktischen Kellerräumen
Unausgebauter Dachboden
Großzügiges Grundstück mit Erweiterungs- und Gestaltungsmöglichkeiten
Praktisches Gartenhaus mit zwei Räumen und zusätzlichem Stauraum
Außenbereich
Der Außenbereich überzeugt durch seine Aufteilung:
Vorgarten mit Südost-Ausrichtung – sonnige Morgen- und Mittagsstunden
Rückwärtiger Garten mit Nordwest-Ausrichtung – perfekte Abendsonne
Terrasse, überdachter Eingangsbereich mit Kellerzugang
Gartenhaus mit zwei Räumen & zusätzlichem Speicher
Ein Ort, der sowohl Rückzug als auch geselliges Beisammensein ermöglicht.
Ausstattung & Technik
Fliesen & Parkett im Erdgeschoss
Vinylboden im Obergeschoss
Rollläden an allen Fenstern
Moderne Einbauküche im Kaufpreis enthalten
Gasheizung, Energieausweis vorhanden
Garage & zusätzlicher Stellplatz vor dem Haus
Fazit
Diese Doppelhaushälfte ist mehr als nur ein Haus – sie ist eine seltene Gelegenheit, klassischen Charme, großzügigen Garten und echtes Entwicklungspotenzial miteinander zu verbinden. Ideal für Paare oder kleine Familien, die heute gemütlich wohnen und morgen erweitern möchten.
Überzeugen Sie sich selbst bei einer Besichtigung – wir freuen uns auf Ihre Anfrage!
Haus mit Zukunft: Doppelhaushälfte auf großem Grundstück mit Garten & Garage
60529 Frankfurt am Main
Die vollständige Adresse der Immobilie erhalten Sie vom Anbieter.
Auf Karte anzeigen
Die vollständige Adresse der Immobilie erhalten Sie vom Anbieter.
Finanzierungszertifikat
In nur zwei Minuten zu Ihrem persönlichen Finanzierungszertifkat.
Infos
| Haustyp | Doppelhaushaelfte |
|---|---|
| Etagenzahl | 2 |
| Wohnfläche ca. | 70 m2 |
| Nutzfläche | 25 m2 |
| Grundstücksfläche | 675 m2 |
| Zimmer | 2,5 |
| Schlafzimmer | 1 |
| Badezimmer | 1 |
| Garage/Stellplatz | Garage |
| Anzahl Garage/Stellplatz | 2 |
Kosten
| Kaufpreis |
359.000 € |
|---|---|
| Provision |
3,57% Die angegebene Käuferprovision (inkl. MwSt.) ist verdient und fällig mit Beurkundung des notariellen Kaufvertrages. |
Finanzierungsrechner:
Kaufpreis:
600.000 €
Eigenkapital:
600.000 €
Monatliche Rate
0 €
Effektiver Jahreszins
0 %
Sollzinsbindung
10 Jahre
Bausubstanz & Energieausweis
| Baujahr | 1938 |
|---|---|
| Letzte Sanierung | 2010 |
| Bauphase | Haus fertig gestellt |
| Qualität der Austattung | Normal |
| Heizungsart | Gas-Heizung |
| Energieausweis | liegt zur Besichtigung vor |
Beschreibung des Objekts
Lage
Traumhafte Lage in Frankfurt Schwanhein - Goldstein
Naturnah & Urban zugleich
Willkommen in Frankfurt-Goldstein, einem der begehrtesten Wohnviertel im Südwesten der Mainmetropole. Hier genießen Sie die perfekte Kombination aus ruhigem, naturnahem Wohnen und schneller Anbindung an das urbane Leben der Stadt.
Die Nachbarschaft besticht durch gepflegte Einfamilienhäuser, kleine Mehrfamilienhäuser und grüne Gärten. Das zum Verkauf stehende Objekt liegt ruhig zurückgesetzt, ohne störenden Durchgangsverkehr, und bietet dennoch optimale Infrastruktur in unmittelbarer Nähe.
Alles, was Sie brauchen, direkt erreichbar
Einkaufsmöglichkeiten, Ärzte und Restaurants in wenigen Minuten
Beliebtes Main-Taunus-Zentrum bequem erreichbar
Nahegelegene Stadtteile wie Niederrad, Sachsenhausen, Schwanheim
Frankfurter Innenstadt in kurzer Fahrzeit erreichbar
Freizeit & Natur direkt vor der Haustür
Der Frankfurter Stadtwald lädt zu Spaziergängen, Joggingrunden und Radtouren ein
Schwanheimer Wald und das Mainufer bieten Erholung, Natur und Ruhe
Zahlreiche Sport- und Freizeitangebote: Stadion am Brentanobad, Vereine, Rad- und Wanderwege
Perfekte Anbindung
Nur wenige Fahrminuten zum Flughafen Frankfurt
Schneller Zugang zu A3, A5 und A66
ÖPNV: S-Bahn Frankfurt-Niederrad & Straßenbahnlinien Goldstein – ideale Anbindung an das Rhein-Main-Gebiet
Familienfreundlich & lebenswert
Mehrere Kitas, Grundschulen und weiterführende Schulen in unmittelbarer Umgebung
Spielplätze, Sportvereine und Freizeitmöglichkeiten im Grünen
Ein Wohnort, der Natur, Ruhe und Großstadtnähe perfekt vereint
Fazit: Frankfurt-Goldstein bietet höchste Lebensqualität – ein ruhiges, grünes Zuhause mit allen Vorteilen der Metropole direkt vor der Tür.
Sonstige Angaben
Telefonnummer:
Bitte um eine Telefonnummer wo ich Sie kontaktieren kann damit wir Einzelheiten besprechen können und einen Besichtigungstermin vereinbaren können.
Angaben:
Alle Angaben beruhen auf Informationen des Eigentümers.
Für Vollständigkeit, Richtigkeit und Aktualität kann keine Gewähr übernommen werden.
Gerne bieten wir Ihnen die Möglichkeit sich bei einem unverbindlichen Besichtigungstermin eine genaueren Eindruck der Immobilie zu verschaffen.
Maße und Darstellung im Grundriss:
Alle im Exposé dargestellten Grundriss-Maße und Beispiel Dekorationen dienen der unverbindlichen Orientierung. Es handelt sich um Circa-Werte ohne Gewähr auf Richtigkeit oder Maßgenauigkeit. Verbindlich sind nur die Angaben aus den Bauunterlagen oder einem professionellen Aufmaß.
Ich freue mich auf Ihren Anruf.
Grundriss
Grundriss Keller
>
>
Adresse
60529 Frankfurt am Main
Interessante Orte
Preis- und Lageinformationen
Preistrend für Bestandsimmobilien in Schwanheim