Objektnr: 1068134
Diese Immobilie präsentiert sich als tolles Zuhause für all jene, die sich gemeinsam mit ihrer Familie wohlfühlen möchten. Die ruhige und naturnahe Feldrandlage wird vor allem Harmoniebedürftige ansprechen. Stets pfleglich behandelt, präsentiert sich die 1955 erbaute und 1975 erweiterte Immobilie heute in einem einladenden Zustand. Letzte Modernisierungen wurden im Jahr 2018 durchgeführt.
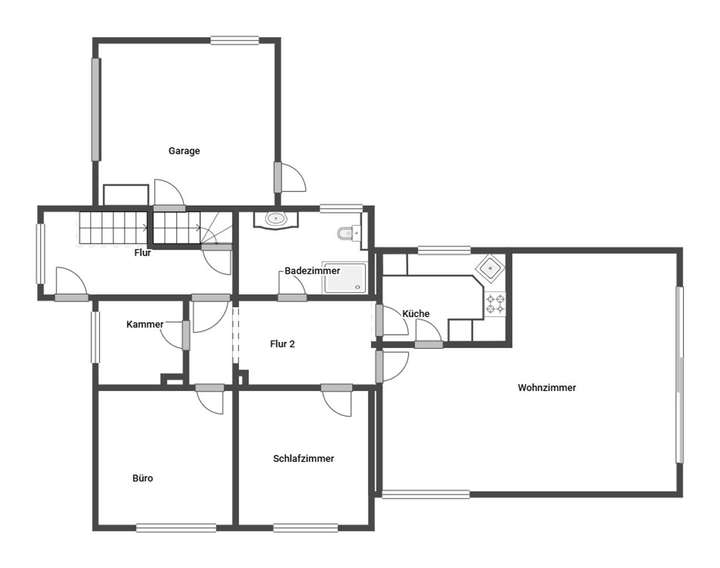
Die etwa 188 m² Wohnfläche sind mit 8 Zimmern , darunter 4 Schlafzimmer auf 2 Etagen für Paare und Familien ideal aufgeteilt. Daneben sind 2 Badezimmer mit Dusche und Badewanne sowie ein Gäste-WC Teil der Immobilie. Viele Köpfe, viele Hobbys, viele Ideen: Dank der großen Raumvielfalt können Sie das Zuhause nutzen, wie es Ihnen gefällt. Zur soliden Ausstattung des teilmöblierten Objekts gehört eine Einbauküche, ein großer Keller mit unterschiedlichen Räumlichkeiten, 2 Garagen mit elektrischen Toren und ein großer Garten mit Terrasse und elektrischer Markise.
Das ca. 1.004 m² große Grundstück schenkt Ihrem Alltag künftig viel Platz unter freiem Himmel. Ein besonderes Highlight ist der große Garten mit Terrasse, der viele Möglichkeiten bietet: Das großflächige Grundstück bietet vielfältige Nutzungsmöglichkeiten. Umgeben von einer natürlichen Barriere können Sie dort ungestört Ruhe und Erholung finden. Viele Kellerräume und ein Dachboden ergänzen das Angebot.
Ob Einfamilien- oder Zweifamilienhaus mit viel Platz und Raum in Lehrte-Immensen
31275 Lehrte
Die vollständige Adresse der Immobilie erhalten Sie vom Anbieter.
Auf Karte anzeigen
Die vollständige Adresse der Immobilie erhalten Sie vom Anbieter.
Finanzierungszertifikat
In nur zwei Minuten zu Ihrem persönlichen Finanzierungszertifkat.
Infos
| Haustyp | Einfamilienhaus |
|---|---|
| Etagenzahl | 2 |
| Wohnfläche ca. | 188 m2 |
| Grundstücksfläche | 1.004,06 m2 |
| Bezugsfrei ab | ab sofort |
| Zimmer | 8 |
| Schlafzimmer | 4 |
| Badezimmer | 2 |
| Garage/Stellplatz | Garage |
| Anzahl Garage/Stellplatz | 2 |
Kosten
| Kaufpreis |
399.000 € |
|---|---|
| Provision |
3,57 % Die Provision i.H.v. 3,57 % inkl. MwSt. ist mit Kaufvertragsbeurkundung fällig, sofern der Verkaufspreis über 83.000,00 € liegt. Liegt der Verkaufspreis dagegen bei/unter 83.000,00 €, ist die fest vereinbarte Mindestprovision i.H.v. mind. 5.950,00 € inkl. MwSt. mit Kaufvertragsbeurkundung fällig. Die Mindestprovision fällt insg. nur einmal an, wodurch Verkäufer und Käufer die Mindestprovision dann jeweils mit 2.975,00 € inkl. MwSt. tragen. |
Finanzierungsrechner:
Kaufpreis:
600.000 €
Eigenkapital:
600.000 €
Monatliche Rate
0 €
Effektiver Jahreszins
0 %
Sollzinsbindung
10 Jahre
Bausubstanz & Energieausweis
| Baujahr | 1955 |
|---|---|
| Letzte Sanierung | 2018 |
| Bauphase | Haus fertig gestellt |
| Objektzustand | Gepflegt |
| Qualität der Austattung | Normal |
| Heizungsart | Zentralheizung |
| Wesentliche Energieträger | Öl |
| Energieausweis | liegt vor |
| Energieausweistyp | Bedarfsausweis |
| Energieverbrauchskennwert | 226,3 kWh/(m²*a) |
| Energieeffizienzklasse | G |
226,3
kWh/(m²*a)
Energieeffizienzklasse G
- A+
- A
- B
- C
- D
- E
- F
- G
- H
- 0
- 25
- 50
- 75
- 100
- 125
- 150
- 175
- 200
- 225
- >250
Beschreibung des Objekts
Ausstattung
+ In familienfreundlicher Umgebung in Feldrandlage von Lehrte, ideal für eine individuelle Nutzung
+ Der uneinsehbarer Garten auf ca. 1.004 m² Grund lädt zum Verweilen ein - eine Terrasse und ein Balkon bereichern das Erlebnis
+ Die Immobilie präsentiert sich in einem gepflegten Zustand - letzte Sanierungen 2018
+ Solide ausgestattetes, teilmöbliertes Haus mit familienfreundlichem Schnitt und einer Einbauküche
+ Das Objekt bietet Staufläche im Keller und Dachboden, sowie Platz für Pkw dank 2 Garagen und Freiplatz
Lage
Lage: Ruhige Feldrandlage von Lehrte-Immensen mit Gelegenheit zu Entspannung
Bildung und Betreuung: Gutes Bildungs- und Betreuungsangebot mit Schule und Kindergarten (max. 3 km Entfernung)
Nahversorgung: Täglicher Bedarf gedeckt: Supermarkt, Apotheke, Postfiliale und Bankfiliale in max. 6 km Entfernung
Anbindung: Gut erreichbar: Bushaltestelle und Autobahn
Sonstige Angaben
Vereinbaren Sie noch heute einen Besichtigungstermin!
_____________________________________________________
Alle Angaben sind ohne Gewähr und basieren ausschließlich auf Informationen, die uns von unserem Auftraggeber zur Verfügung gestellt wurden. Wir übernehmen keine Gewähr für die Vollständigkeit, Richtigkeit und Aktualität der Angaben.
Grundriss
Grundriss Skizze EG
>
>
Grundriss Skizze DG
>
>
Grundriss Skizze UG
>
>
Adresse
31275 Lehrte
Interessante Orte
Preis- und Lageinformationen
Preistrend für Bestandsimmobilien in Lehrte