Diese schöne, sehr gepflegte Doppelhaushälfte, besticht durch ihre Lage in der Nähe der Dove-Elbe und ein liebevoll angelegtes, großes Grundstück. Bereits beim Betreten des Hauses empfängt Sie die großzügige Diele und vermittelt sofort ein behagliches Wohngefühl. Dieses Haus ist mehr als nur ein neues Zuhause – es ist ein Ort zum Ankommen und Wohlfühlen.
Zentraler Mittelpunkt ist der ca. 30 m² große Wohn-Essbereich. Er ist lichtdurchflutet durch eine über die gesamte Breite des Raumes gehende Fensterfront mit großer Terrassenschiebetür. Davor liegt die ca. 30 m² große, nicht einsehbare Terrasse mit perfekter Südwest Ausrichtung, auf der Sie in aller Ruhe die Sonnenstunden genießen oder unter der Markise im Schatten sitzen können. Daran schließt sich der weitläufige, gepflegte Garten an.
Direkt neben dem Wohn-Essbereich liegt die Küche, die ebenfalls über eine Tür zur Terrasse hin geöffnet werden kann. Wenn Sie einen modernen Grundriss mit offener Küche gestalten wollen, besteht hier eine gute Möglichkeit dazu. Zusätzlich bietet das Erdgeschoss ein schönes, großes zum hinteren Garten ausgerichtetes Schlafzimmer mit ca. 14 m², sowie ein kleineres Zimmer, das sich hervorragend als Gäste-, Arbeits- oder Kinderzimmer eignet.
Ein helles, modernisiertes Badezimmer mit Wanne und Dusche sowie großem Fenster zum Garten hin vervollständigt diese Ebene.
Über eine charmante Holztreppe gelangen Sie ins Obergeschoss.
Hier befinden sich gemütliche Schlafzimmer mit ca. 10 und 12 m² Wohnfläche, jeweils ausgestattet mit zwei Dachflächenfenstern für angenehmes Tageslicht. Ergänzt wird das Obergeschoss durch ein weiteres Duschbad sowie eine ca. 14 m² große Ausbaureserve, die derzeit als Stauraum genutzt wird – ideal für zukünftige Wohnwünsche.
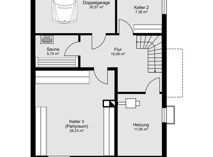
Das Haus ist vollständig unterkellert. Hier finden Sie einen ca. 30 m² großen Partyraum, einen Hauswirtschaftsraum, eine Sauna und ausreichend Abstellfläche.
Ein weiteres Highlight dieses Objekts ist die große Doppelgarage und mindestens drei davorliegende Außen-Stellplätze.
Hieran schließt sich der idyllische, hintere Gartenbereich mit Obstbäumen und einem großen Holzschuppen an.
Abschließend muss die gute Energieklasse B des Objekts hervorgehoben werden, die sich durch eine Wärmepumpe (Erdwärme) als Heizung und die Erzeugung des Warmwassers über die Sole-Wasser-Wärmepumpe ergibt.
Gepflegte Doppelhaushälfte mit großem Garten in der Nähe der Dove-Elbe
21037 Hamburg
Die vollständige Adresse der Immobilie erhalten Sie vom Anbieter.
Auf Karte anzeigen
Die vollständige Adresse der Immobilie erhalten Sie vom Anbieter.
Finanzierungszertifikat
In nur zwei Minuten zu Ihrem persönlichen Finanzierungszertifkat.
Infos
| Haustyp | Doppelhaushaelfte |
|---|---|
| Wohnfläche ca. | 129 m2 |
| Nutzfläche | 120 m2 |
| Grundstücksfläche | 1.300 m2 |
| Bezugsfrei ab | nach Absprache |
| Zimmer | 4,5 |
| Schlafzimmer | 3 |
| Badezimmer | 2 |
| Anzahl Garage/Stellplatz | 5 |
Kosten
| Kaufpreis |
549.000 € |
|---|---|
| Provision |
3,57 % inkl. gesetzl. MwSt. |
Finanzierungsrechner:
Kaufpreis:
600.000 €
Eigenkapital:
600.000 €
Monatliche Rate
0 €
Effektiver Jahreszins
0 %
Sollzinsbindung
10 Jahre
Bausubstanz & Energieausweis
| Baujahr | 1979 |
|---|---|
| Letzte Sanierung | 2016 |
| Objektzustand | Gepflegt |
| Qualität der Austattung | Normal |
| Heizungsart | Wärmepumpe |
| Wesentliche Energieträger | Erdwärme |
| Energieausweis | liegt vor |
| Energieausweistyp | Bedarfsausweis |
| Energieverbrauchskennwert | 68,0 kWh/(m²*a) |
| Energieeffizienzklasse | B |
68,0
kWh/(m²*a)
Energieeffizienzklasse B
- A+
- A
- B
- C
- D
- E
- F
- G
- H
- 0
- 25
- 50
- 75
- 100
- 125
- 150
- 175
- 200
- 225
- >250
Beschreibung des Objekts
Lage
Tatenberg ist ein Hamburger Stadtteil im Bezirk Bergedorf, der nur rund 15 km vom geschäftigen Treiben der Hamburger Innenstadt entfernt liegt. Er ist, der kleinste Stadtteil der Vier und Marschlande. Tatenberg ist ein kleiner, ländlicher, ruhiger, sehr grüner Stadtteil. Die Umgebung ist stark geprägt von Natur und Freiflächen, Landwirtschaft, Wiesen, Flussufern, Wasserwege dominieren das Bild.
Das Haus liegt in der Nähe der Tatenberger Schleuse zwischen dem Sportboothafen Möller und dem Yachthafen Tatenberg.
Für Freizeit und Erholung biete die Lage der Immobilie zahlreiche Angebote für Aktivitäten im Freien und Wassersportmöglichkeiten. Natur und Landschaftsräume sowie die Dove-Elbe laden zu Spaziergängen und Radtouren auf dem Elbradweg ein. Aus der ehemaligen Strecke der Hamburger Marschbahn ist ein ansprechender Radwanderweg entlang schmaler Stichkanäle geworden.
Eine gute Infrastruktur ist durch die unmittelbare Nähe von Ochsenwerder gegeben. Hier finden Sie Geschäfte für des täglichen Bedarfs sowie Kindergarten, Grundschule, Apotheke und Ärzte.
Mit dem PKW ist sowohl die Hamburger Innenstadt und als auch Bergedorf in 15-20 Minuten erreichbar.
Die Natur und Wasserlage machen das Objekt daher besonders attraktiv für Menschen die Natur und Erholung nahe der Großstadt suchen.
Sonstige Angaben
Der Makler-Vertrag mit uns kommt durch die Bestätigung der Inanspruchnahme unserer Maklertätigkeit in Textform zustande, wie z.B. insbesondere die Unterschrift des Suchkundenvertrages und/oder des Objekt-Exposés. Die Höhe der Courtage richtet sich nach den ab dem 23.12.2020 in Kraft getretenen gesetzlichen Regelungen zur Teilung der Maklercourtage. Hiernach wird die Courtage regelmäßig für beide Parteien (Eigentümer und Käufer) in Höhe von 3 % zuzüglich Umsatzsteuer in jeweils geltender Höhe, also insgesamt 3,57 % des Kaufpreises einschließlich Umsatzsteuer bei notariellem Vertragsabschluss verdient und fällig. Die Höhe der Bruttocourtage unterliegt einer Anpassung bei Steuersatzänderung. Grunderwerbssteuer, Notar- und Gerichtskosten trägt der Käufer.
Grundriss
Grundriss Erdgschoss
>
>
Grundriss Dachgeschoss
>
>
Grundriss Keller
>
>
Adresse
21037 Hamburg
Interessante Orte
Preis- und Lageinformationen
Preistrend für Bestandsimmobilien in Tatenberg