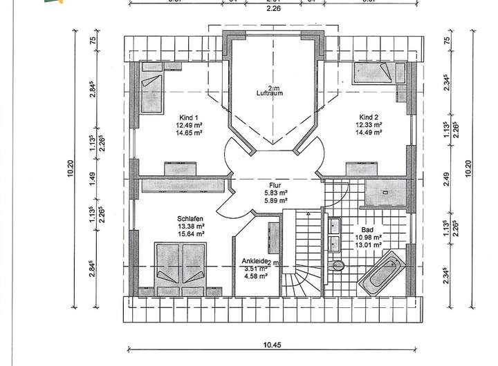
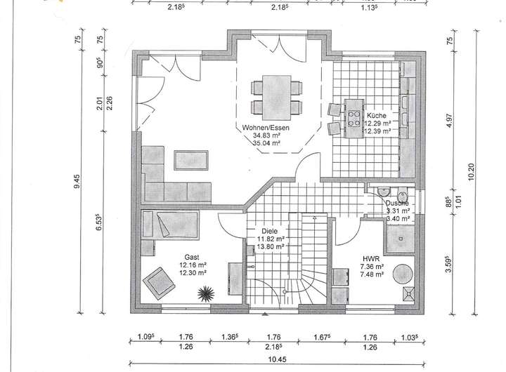
Zum Verkauf steht ein gepflegtes Einfamilienhaus mit ca. 140 m² Wohnfläche, das durch seine großzügige Raumaufteilung und die idyllische, ruhige Lage am Feldrand überzeugt. Das Haus bietet insgesamt 5 Zimmer und damit ausreichend Platz für Familien, Paare oder alle, die Wohnen und Arbeiten unter einem Dach verbinden möchten.
Die landliche Umgebung garantiert ein hohes Maß an Ruhe und Erholung, während die durchdachte Grundrissgestaltung ein angenehmes Wohngefühl schafft. Helle, freundliche Raume und vielseitige Nutzungsmöglichkeiten machen dieses Haus zu einem idealer Zuhause.
Besonders hervorzuheben ist die energieeffiziente Bauweise (Effizienzhaus 70 / EH70), die für niedrige Energiekosten und nachhaltiges Wohnen sorgt.
Einfamilienhaus mit Sauna
38176 Wendeburg
Die vollständige Adresse der Immobilie erhalten Sie vom Anbieter.
Auf Karte anzeigen
Die vollständige Adresse der Immobilie erhalten Sie vom Anbieter.
Finanzierungszertifikat
In nur zwei Minuten zu Ihrem persönlichen Finanzierungszertifkat.
Infos
| Haustyp | Einfamilienhaus |
|---|---|
| Etagenzahl | 2 |
| Wohnfläche ca. | 140 m2 |
| Nutzfläche | 140 m2 |
| Grundstücksfläche | 882 m2 |
| Bezugsfrei ab | 1.4.2026 |
| Zimmer | 5 |
| Schlafzimmer | 4 |
| Badezimmer | 2 |
| Garage/Stellplatz | Außenstellplatz |
| Anzahl Garage/Stellplatz | 5 |
Kosten
| Kaufpreis |
429.000 € |
|---|---|
| Preis für Garage/Stellplatz | 429.000 € |
| Provision | Nein |
Finanzierungsrechner:
Kaufpreis:
600.000 €
Eigenkapital:
600.000 €
Monatliche Rate
0 €
Effektiver Jahreszins
0 %
Sollzinsbindung
10 Jahre
Bausubstanz & Energieausweis
| Baujahr | 2018 |
|---|---|
| Letzte Sanierung | 2024 |
| Bauphase | Haus fertig gestellt |
| Objektzustand | Gepflegt |
| Qualität der Austattung | Gehoben |
| Heizungsart | Fußbodenheizung |
| Wesentliche Energieträger | Strom |
| Energieausweis | liegt vor |
| Energieausweistyp | Bedarfsausweis |
| Energieverbrauchskennwert | 21,0 kWh/(m²*a) |
| Energieeffizienzklasse | A+ |
21,0
kWh/(m²*a)
Energieeffizienzklasse A+
- A+
- A
- B
- C
- D
- E
- F
- G
- H
- 0
- 25
- 50
- 75
- 100
- 125
- 150
- 175
- 200
- 225
- >250
Beschreibung des Objekts
Ausstattung
Erdgeschoss komplett gefliest, Fußbodenheizung, Wärmepumpe, Glasfaser, Satellitenschüssel, 2 Duschen, Badewanne, Sauna, Einbauküche ohne Elektrogeräte, Spielhaus, Pergola, Unterstellmöglichkeiten Fahrräder und Gartengeräte.
Lage
Meerdorf, ein Ortsteil der Gemeinde Wendeburg im Landkreis Peine, bietet eine attraktive Infrastruktur für ruhiges und zugleich gut angebundenes Wohnen. Yor Ort befinden sich ein Kindergarten sowie eine Grundschule mit Außenstelle, was Meerdorf besonders für Familien interessant macht. Weiterfüihrende Schulen, Ärzte, Apotheken und umfangreiche Einkaufsmöglichkeiten sind in den benachbarten Ortsteilen wie Wendeburg, Bortfeld oder Vechelde in kurzer Zeit erreichbar, Die gute Verkehrsanbindung ermöglicht zudem eine schnelle Erreichbarkeit der Städte Peine und Braunschweig sowie der Autobahn A2. Das aktive Dorfleben wird durch Vereine, die Freiwillige Feuerwehr und regelmäßige Veranstaltungen geprägt. Umgeben von Feldern, Wäldern und naturnahen Erholungs- flächen bietet Meerdorf zahlreiche Möglichkeiten für Spaziergänge, Radtouren und Frei- zeitaktivitäten. Insgesamt verbindet der Ort landliche Ruhe mit einer soliden Infrastruktur und guter regionaler Anbindung.
Adresse
38176 Wendeburg
Interessante Orte
Preis- und Lageinformationen
Preistrend für Bestandsimmobilien in Wendeburg