Zweifamilienhaus zu verkaufen
Wohnfläche ca. 273,78 m²
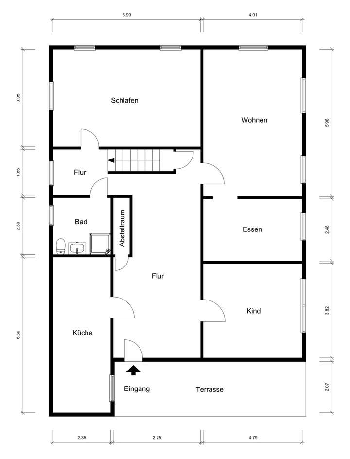
Raumaufteilung
Erdgeschoss: 4-Zimmer, Küche und Bad
(ca. 141,29 m² Wohnfläche)
Obergeschoss: 3-Zimmer, Küche, Bad und Abstellraum
(ca. 132,49 m² Wohnfläche)
Zweifamilienhaus zu verkaufen - Ilsede / Klein Bülten
Schützenstr. 10,
31241 Ilsede
Auf Karte anzeigen
Finanzierungszertifikat
In nur zwei Minuten zu Ihrem persönlichen Finanzierungszertifkat.
Infos
| Haustyp | Mehrfamilienhaus |
|---|---|
| Wohnfläche ca. | 273 m2 |
| Grundstücksfläche | 1.096 m2 |
| Bezugsfrei ab | Nach Absprache |
| Zimmer | 7 |
| Garage/Stellplatz | Garage |
Kosten
| Kaufpreis |
180.000 € |
|---|---|
| Provision |
3,57% inkl. MwSt. |
Finanzierungsrechner:
Kaufpreis:
600.000 €
Eigenkapital:
600.000 €
Monatliche Rate
0 €
Effektiver Jahreszins
0 %
Sollzinsbindung
10 Jahre
Bausubstanz & Energieausweis
| Baujahr | 1900 |
|---|---|
| Bauphase | Haus fertig gestellt |
| Objektzustand | Renovierungsbedürftig |
| Qualität der Austattung | Normal |
| Heizungsart | Gas-Heizung |
| Wesentliche Energieträger | Gas |
| Energieausweis | liegt vor |
| Energieausweistyp | Bedarfsausweis |
| Energieverbrauchskennwert | 247,5 kWh/(m²*a) |
| Energieeffizienzklasse | G |
247,5
kWh/(m²*a)
Energieeffizienzklasse G
- A+
- A
- B
- C
- D
- E
- F
- G
- H
- 0
- 25
- 50
- 75
- 100
- 125
- 150
- 175
- 200
- 225
- >250
Beschreibung des Objekts
Ausstattung
Allgemeines
Gasheizung (Baujahr 1992), Kunststoff-Fenster, Garage, Kfz-Stellplätze,
Werkstatt / Hobbyraum, Dachboden, Terrasse, Loggia, Garten
Lage
Ilsede / Klein Bülten
Sonstige Angaben
Baujahr ca. 1900 / Grundstück 1.096 m²
Kaufpreis 180.000,- EUR
Provision: Bei Zustandekommen des notariellen Kaufvertrages verpflichtet sich der Käufer an den Makler eine Provision zu zahlen. Die vom Käufer zu zahlende Provision beträgt 3,57% des Kaufpreises inkl. der gesetzlichen Mehrwertsteuer.
Die Provision ist verdient und fällig bei Vertragsabschluss.
Besichtigungstermine können Sie jederzeit mit uns vereinbaren.
Wichtiger Hinweis!
Dieses Angebot ist freibleibend. Ein Zwischenverkauf bleibt vorbehalten.
Alle Angaben basieren auf Informationen des jetzigen Eigentümers.
Eine Gewähr wird nicht übernommen.
Versicherungsbüro Ohligschläger
Sascha Ohligschläger
Echternplatz 1
31224 Peine
Telefon: 05171 / 290890
Mobil: 0160 / 90605082
Fax: 05171 / 290889
E-Mail: info@immobilien-peine.de
Homepage: www.versicherung-peine.de
Homepage: www.immobilien-peine.de
Steuernummer: Finanzamt Peine 38/132/02935
USt-IdNr.: DE239517975
Zuständige Erlaubnisbehörde nach § 34 c GewO:
Industrie- und Handelskammer Braunschweig
Brabandtstr. 11
38100 Braunschweig
Online-Streitbeilegung gemäß Art. 14 Abs. 1 ODR-VO:
Die Europäische Kommission stellt eine Plattform zur Online-Streitbeilegung (OS) bereit, die Sie hier finden:
http://ec.europa.eu/consumers/odr
Weitere Dokumente
Urkunde_ImmoScout24_SilberZweifamilienhaus in Ilsede
Grundriss
Grundriss Erdgeschoss
>
>
Grundriss Obergeschoss
>
>
Adresse
Schützenstr. 10, 31241 Ilsede
Interessante Orte
Preis- und Lageinformationen
Preistrend für Bestandsimmobilien in Ilsede