Willkommen zu Hause! Das Familienhaus Fida besticht mit 143 m² Wohnfläche und vollkommenen Wohngefühl! Vertrauen Sie dem ersten Eindruck – hier werden Sie sich wohlfühlen!
Schon bei dem Eintreten begeistert das Haus mit einem offenen Flur mit Blick in den Wohnbereich, der direkt anschließt. Vorbei an der geraden Treppe beindruckt der Wohnbereich mit vielen bodentiefen Fenstern, die Licht und Helligkeit in den Raum bringen. Gerade das Sofa lädt zu gemütlichen Couchnachmittagen ein. Vom Esstisch öffnet sich der Blick in die geräumige Küche. So ist man auch beim Kochen mitten im Geschehen im Wohnbereich. Ergänzt wird die Küche durch eine Speisekammer, wo Vorräte ihren Platz finden. Außerdem gehört ein Home-Office, ein Gäste-WC und ein Hauswirtschaftsraum zum Erdgeschoss von Haus Fida.
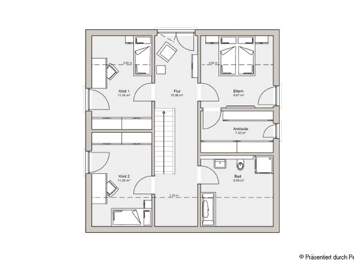
Die Treppe führt in die oberen Flur, der besonders geräumig gestaltet ist und in der Gaube Platz für eine gemütliche Leseecke bietet. Zwei gleichgroße Kinderzimmer, ein Familienbad und ein Elternschlafzimmer mit Ankleide komplettieren das Dachgeschoss. Hier kann man sich wohlfühlen!
Dieses Haus wird nach Ihren individuellen Wünschen geplant und ausgestattet!
Wälder, Wiesen, Seen und Berge - alles was Sie suchen
4452 Borna
Die vollständige Adresse der Immobilie erhalten Sie vom Anbieter.
Auf Karte anzeigen
Die vollständige Adresse der Immobilie erhalten Sie vom Anbieter.
Finanzierungszertifikat
In nur zwei Minuten zu Ihrem persönlichen Finanzierungszertifkat.
Infos
| Haustyp | Einfamilienhaus |
|---|---|
| Wohnfläche ca. | 143 m2 |
| Grundstücksfläche | 498 m2 |
| Zimmer | 5 |
| Schlafzimmer | 3 |
| Badezimmer | 1 |
| Anzahl Garage/Stellplatz | 2 |
Kosten
| Kaufpreis |
439.500 € |
|---|---|
| Provision | Nein |
Finanzierungsrechner:
Kaufpreis:
600.000 €
Eigenkapital:
600.000 €
Monatliche Rate
0 €
Effektiver Jahreszins
0 %
Sollzinsbindung
10 Jahre
Bausubstanz & Energieausweis
| Baujahr | 2026 |
|---|---|
| Bauphase | Haus in Planung (projektiert) |
| Objektzustand | Erstbezug |
| Qualität der Austattung | Gehoben |
| Heizungsart | Wärmepumpe |
| Wesentliche Energieträger | Strom |
| Energieausweistyp | Bedarfsausweis |
| Energieverbrauchskennwert | 18,0 kWh/(m²*a) |
| Energieeffizienzklasse | A+ |
18,0
kWh/(m²*a)
Energieeffizienzklasse A+
- A+
- A
- B
- C
- D
- E
- F
- G
- H
- 0
- 25
- 50
- 75
- 100
- 125
- 150
- 175
- 200
- 225
- >250
Beschreibung des Objekts
Ausstattung
5 Zimmer, offene Küche, Diele, Flur, Bad, WC, Speisekammer, Hauswirtschaftsraum
Das gezeigte Traumhaus im Überblick:
+ Schlüsselfertiges Massivhaus im Sinne der Ausstattungsbeschreibung "Edition 25"
+ Zukunftsorientierte Energieausstattung in Form einer Luft-Wasser-Wärmepumpe und Fußbodenheizung sowie einer kontrollierten Wohnraumlüftung mit Wärmerückgewinnung
+ Inklusive Bodenplatte
Beste Markenausstattung in jedem Kern-Haus:
+ Zimmermannsmäßiger Dachstuhl aus Konstruktionsvollholz
+ Dacheindeckung mit Betondachsteinen von Braas
+ Hochwertiger Kunstharz-Außenputz für eine langlebige Fassade
+ Vollständige Badausstattung von Villeroy & Boch mit Badewanne und flacher Duschwanne sowie einer Echtglasduschkabine
+ Fliesen von Villeroy & Boch in Bad und WC
+ Haustür mit 5-fach-Sicherheitsverriegelung
+ Erstklassige Innentüren der Marke Herholz
+ Fenster mit 3-Scheiben-Wärmeschutzverglasung und Rollläden
+ Stahl-Holz-Treppe mit individueller Farbgestaltungsmöglichkeit
+ Vollständige und überdurchschnittliche Elektroausstattung inklusive Klingelanlage und Netzwerkdosen
+ Rauchmelder für Ihre Sicherheit
+ Alle Leistungen aus einer Hand
+ Alle Planungs- und Architektenleistungen
+ Einsatz regionaler Handwerksbetriebe
+ Baubegleitende 5-Phasen-TÜV-Prüfung und Blower-Door-Test
+ Individuelle Anpassung auf Ihre Bedürfnisse
+ Auf Wunsch mit Keller erhältlich
+ Auf Wunsch mit weiteren Energietechniken erhältlich
Lage
- traumhaftes Grundstück in der aufstrebenden Stadt Borna
- sehr idyllische Umgebung
- ausgezeichnete Infrastruktur
- Schulen, Kindergärten, und Einkaufsmöglichkeiten vorhanden
- gute Anbindung an Leipzig
- ebenso hervorragende Anbindung an die Autobahn
- ideal, wenn Sie die Ruhe mögen, und doch zentral wohnen möchten
Sonstige Angaben
Ist dies schon Ihr Traumhaus? Oder dürfen wir ein individuelles Haus für Sie planen?
Ich freue mich, Ihre Wünsche zu erfahren und Ihre Fragen zu beantworten.
Sie erreichen mich unter 0341-2527132
Ihre Grit Hohberg
Kern-Haus
Seit 1994 realisieren wir individuelle Häuser rund um Leipzig und Halle. Über 1.900 zufriedene Bauherren in der Region sprechen für sich.
Unser engagiertes Team plant und baut massive Häuser und begleitet Sie mit umfassendem Service.
+ Eigener Architekt
+ Preisgarantie
+ Verbindliche Bauzeit
+ 5-Phasen-TÜV-Prüfung
Der in dieser Anzeige gezeigte Preis versteht sich inklusive Grundstück und exklusive der Baunebenkosten.
Grundriss
Grundriss Erdgeschoss
>
>
Grundriss Dachgeschoss
>
>
Adresse
4452 Borna
Interessante Orte
Preis- und Lageinformationen
Preistrend für Bestandsimmobilien in Borna