Architektenhaus Anto präsentiert sich vielfältig auf zwei Etagen mit einem innovativen Grundriss, der Wünsche wahr werden lässt. Im Erdgeschoss betreten Sie das Haus durch eine geräumige Diele, die offen in die Küche übergeht. Die Küche wird zum Mittelpunkt des Wohnbereiches. Direkt daneben befindet sich der Esstisch, wo man gemeinsam isst und Zeit verbringt. Der Wohnbereich mit Couch und TV schließt daran an und lädt zum Entspannen ein. Neben der Küche führt eine Tür in das praktische Home-Office. Ebenfalls im Erdgeschoss sind ein Hauswirtschaftsraum und ein Gäste-WC vorhanden.
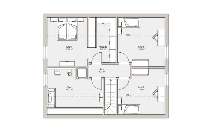
Abgerundet wird das Satteldachhaus im Dachgeschoss mit einem Elternschlafzimmer mit einer Ankleide, zwei Kinderzimmer und einem geräumigen Familienbad.
Schlüsselfertiges Massivhaus südlich von Altenburg!
08393 Schönberg
Die vollständige Adresse der Immobilie erhalten Sie vom Anbieter.
Auf Karte anzeigen
Die vollständige Adresse der Immobilie erhalten Sie vom Anbieter.
Finanzierungszertifikat
In nur zwei Minuten zu Ihrem persönlichen Finanzierungszertifkat.
Infos
| Haustyp | Einfamilienhaus |
|---|---|
| Wohnfläche ca. | 143 m2 |
| Grundstücksfläche | 988 m2 |
| Zimmer | 5 |
| Schlafzimmer | 3 |
| Badezimmer | 1 |
| Anzahl Garage/Stellplatz | 2 |
Kosten
| Kaufpreis |
359.360 € |
|---|---|
| Provision | Nein |
Finanzierungsrechner:
Kaufpreis:
600.000 €
Eigenkapital:
600.000 €
Monatliche Rate
0 €
Effektiver Jahreszins
0 %
Sollzinsbindung
10 Jahre
Bausubstanz & Energieausweis
| Baujahr | 2026 |
|---|---|
| Bauphase | Haus in Planung (projektiert) |
| Objektzustand | Erstbezug |
| Qualität der Austattung | Gehoben |
| Heizungsart | Wärmepumpe |
| Energieausweis | liegt vor |
| Energieausweistyp | Bedarfsausweis |
| Energieverbrauchskennwert | 13,3 kWh/(m²*a) |
| Energieeffizienzklasse | A+ |
13,3
kWh/(m²*a)
Energieeffizienzklasse A+
- A+
- A
- B
- C
- D
- E
- F
- G
- H
- 0
- 25
- 50
- 75
- 100
- 125
- 150
- 175
- 200
- 225
- >250
Beschreibung des Objekts
Ausstattung
5 Zimmer, offene Küche, Diele, Flur, Bad, WC, Ankleide, Hauswirtschaftsraum
Das gezeigte Traumhaus im Überblick:
+ Massivhaus im Sinne der Ausstattungsbeschreibung "Nestbau"
+ Zukunftsorientierte Energieausstattung in Form einer Luft-Wasser-Wärmepumpe und Fußbodenheizung
Beste Markenausstattung in jedem Kern-Haus:
+ Fenster mit 3-Scheiben-Wärmeschutzverglasung und elektrischen Rollläden
+ Dacheindeckung mit Betondachsteinen von Braas mit "Star-Oberfläche"
+ Hochwertiger Kunstharz-Außenputz
+ Badausstattung mit Badewanne und flacher Duschwanne
+ Fliesen in Bad und WC
+ Haustür mit Sicherheitsverriegelung
+ Innentüren der Marke Herholz mit Edelstahldrückern
+ Stahl-Holz-Treppe mit individueller Farbgestaltungsmöglichkeit
+ Elektroausstattung inklusive Klingelanlage
+ Rauchmelder für Ihre Sicherheit
+ Einsatz regionaler Handwerksbetriebe
+ Blower-Door-Test
Lage
Hierbei handelt es sich um ein schönes ebenes Grundstück am Rand einer Wohnsiedlung etwas südlich von Altenburg, in ländlicher Umgebung.
Der gezeigte Preis versteht sich inklusive Grundstück.
Sonstige Angaben
Kern-Haus
Kern-Haus baut individuelle und massive Architektenhäuser zu einem attraktiven Preis-Leistungs-Verhältnis – und das bereits mit einer Erfahrung seit 1980. Die Kern-Haus AG ist ein deutscher, inhabergeführter Massivhausanbieter mit Sitz im rheinland-pfälzischen Ransbach-Baumbach. Kern-Haus setzt auf eine hohe Bauqualität der Handwerker und auf eine große Auswahl starker Marken. So verwendet Kern-Haus beim Bau Ihres Hauses nur hochwertige Markenprodukte renommierter Hersteller.
Preise und Auszeichnungen von Kern-Haus:
- German Brand Award in den Jahren 2018 und 2021
- Hausbau Design Award: Sieger in den Jahren 2017, 2018, 2019, 2020, 2021, 2022 und 2023
- Deutscher Traumhauspreis: Sieger in den Jahren 2014, 2015, 2016 und 2018 und Silber 2017, 2020 und 2021
- Mittelstandspreis "Top 100" in den Jahren 2014, 2016, 2018, 2020 und 2022
- German Design Award im Jahr 2018
Weitere Informationen
Der gezeigte Preis versteht sich inklusive Grundstück und exklusive der Baunebenkosten.
Grundriss
Grundriss Erdgeschoss
>
>
Grundriss Dachgeschoss
>
>
Adresse
08393 Schönberg
Interessante Orte
Preis- und Lageinformationen
Preistrend für Bestandsimmobilien in Schönberg