Willkommen in Ihrem neuen Zuhause! Dieses attraktive 2-geschossige Doppelhaushälfte wird im Sommer 2027 fertiggestellt und bietet einen Erstbezug in einer begehrten Lage von Hamburg-Rahlstedt. Mit 4 Zimmern und Studio, sowie Abstellraum im ausgebautem Spitzboden ca. 171 m² Wohn-Nutzfläche, sowie einer Grundstücksgröße von ca. 418 m² ist dieses Haus ideal für Familien, die Wert auf modernen Wohnkomfort und eine familienfreundliche Umgebung legen. Das Haus erstreckt sich über zwei Etagen, sowie ausgebautem Spitzboden und verfügt über eine Wärmepumpe als Heizsystem. Ein Gäste-WC ist vorhanden, um den Komfort im Erdgeschoss zu erhöhen. Die Bauausführung entspricht höchsten Standards für einen Erstbezug.
Wir bauen für Sie eine attraktive 2-geschossige-Doppelhaushälfte in familienfreundlicher Lage
22145 Hamburg
Die vollständige Adresse der Immobilie erhalten Sie vom Anbieter.
Auf Karte anzeigen
Die vollständige Adresse der Immobilie erhalten Sie vom Anbieter.
Finanzierungszertifikat
In nur zwei Minuten zu Ihrem persönlichen Finanzierungszertifkat.
Infos
| Haustyp | Doppelhaushaelfte |
|---|---|
| Etagenzahl | 2 |
| Wohnfläche ca. | 124 m2 |
| Nutzfläche | 47 m2 |
| Grundstücksfläche | 418 m2 |
| Bezugsfrei ab | 07.2027 |
| Zimmer | 4 |
| Schlafzimmer | 3 |
| Badezimmer | 1 |
Kosten
| Kaufpreis |
613.200 € |
|---|---|
| Provision |
9799,65 Käuferprovision auf den anteiligen Grundstückskaufpreis |
Finanzierungsrechner:
Kaufpreis:
600.000 €
Eigenkapital:
600.000 €
Monatliche Rate
0 €
Effektiver Jahreszins
0 %
Sollzinsbindung
10 Jahre
Bausubstanz & Energieausweis
| Baujahr | 2026 |
|---|---|
| Bauphase | Haus in Planung (projektiert) |
| Objektzustand | Erstbezug |
| Heizungsart | Wärmepumpe |
Beschreibung des Objekts
Ausstattung
nachfolgende Leistungen sind inklusiv:
- sämtliche Bauleistungen nach Gebäude-Energie-Gesetz (GEG)
- individuelle Grundrissgestaltunng nach Ihren Wünschen
- Architektenleistung, Bauanträge, Statik
- Erdarbeiten gem. Baubeschreibung
- Streifenfundamente inkl. Sohlplatte und 5cm Untersohlendämmung
- 12cm Wanddämmung
-Stahlbeton-Fertigteildecke mit Trittschalldämmung über Erdgeschoss
- massive Innenwände
- Wandhängende WC´s mit Abmauerung und Hintermauerspülkasten
- Dusch Fa. Kaldewei inkl. Armaturen und 2-teiliger Duschabtrennung
- Badewanne Fa. Kaldewei inkl. Armaturen und gefliester Frontschürze
- Luft-Wasser-Wärmepumpe
- Fußbodenheizung im Erd- und Obergeschoss
- Nebeneingangstür im HWR
- Hauseingangstür mit verglastem Seitenteil feststehend, Kunststoff
- Fenster aus Kunststoff, dreifach verglast, UG-Wert 0,6 W/m²*K, inkl. warmer Kante
- Pilzkopfverriegelung (besserer Einbruchschutz)
- Bodenfliesen in Diele, HWR, Küche, Gäste-WC und Bad mit Sockelleiste
- Wandfliesen in Bad und WC
- frostsicherer Außenwasseranschluss
- nur Marken- und Qualitätsbaustoffe
- Bauausführung nur durch Meisterbetriebe aus der Region
- Bauherrenhaftpflicht-, Bauleistungs- und Rohbau-Feuerversicherung
- Absteckung und Einmessung des Gebäudes (vor Baubeginn)
- Bauschuttentsorgung
- Bautoilette
- Bauleitung durch erfahrene und qualifizierte Bauleiter
Sonderausstattung inkl.:
- Ausführung KfW40 KFN
- 1/2 gewendelte Massivholztreppe zum ausgeb. Spitzboden
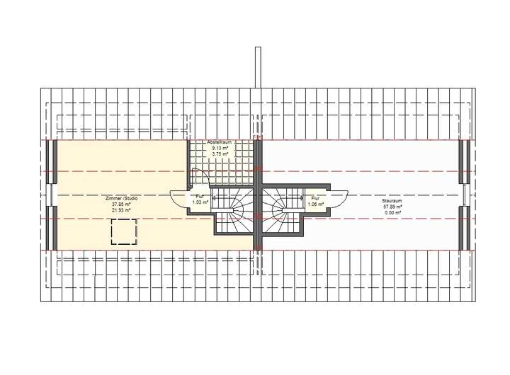
- ca. 38 m² Studio im ausgeb.. Spitzboden
- ca. 9 m² Abst.-Raum im ausgeb. Spitzboden
- zus. bodengl. Dusche im Gäste-WC m. Trennwand
- elt. Rollläden im Erd- und Obergeschoss
- Photovoltaik-Anlage 9,90 kWp mit 10,33 kWh Speicher
Lage
Das Grundstück befindet sich im familienfreundlichen Stadtteil Rahlstedt-Meiendorf. Dieser grüne Stadtteil im Nordosten Hamburgs vereint urbanes Leben und naturnahe Idylle auf ideale Weise. Die Umgebung ist geprägt von gepflegten Einfamilienhäusern, viel Grün und hervorragender Infrastruktur. Schulen, Kindergärten, Einkaufsmöglichkeiten und der öffentliche Nahverkehr sind schnell erreichbar, ebenso wie die idyllischen Wander- und Radwege des nahegelegenen Naturschutzgebietes Höltigbaum.
Sonstige Angaben
Hinzu kommt für die Grundstücksvermittlung eine Maklercourtage.
Wichtige Information: Die Baunebenkosten, wie z. B. Hausanschlüsse, Außenanlagen, Notar- und Gerichtskosten, Grunderwerbsteuer, Behördengebühren, Bauwasser und Baustrom, Maler-, Tapezier- und Spachtelarbeiten, sowie Bodenbeläge sind nicht im aufgeführten Kaufpreis enthalten. Gern ermitteln wir für Sie in einem ausführlichen Beratungsgespräch eine detaillierte Gesamtkostenaufstellung. Die Abbildungen können Sonderausstattungen enthalten.
Das Grundstück ist im angegebenen Preis enthalten.
Das in diesem Angebot angegebene Baujahr entspricht dem möglichen Zeitpunkt des Baubeginns.
Weitere Dokumente
Baubeschreibung-VM_05_2025 1 (Adresse
22145 Hamburg
Interessante Orte
Preis- und Lageinformationen
Preistrend für Bestandsimmobilien in Rahlstedt