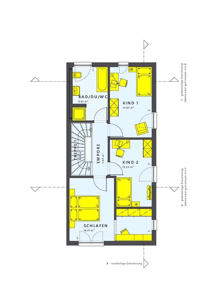
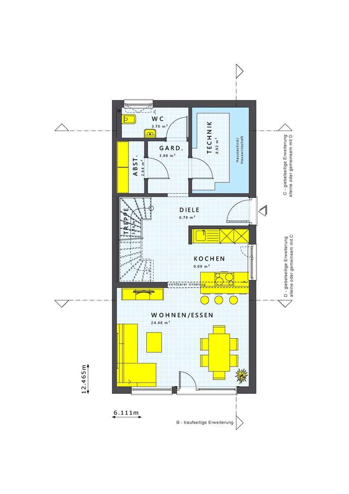
Willkommen in deinem zukünftigen Zuhause in Hamburg, einem einzigartigen Doppelhaus mit einem klassischen Satteldach, das speziell nach deinen Wünschen und Vorstellungen projektiert wird. Mit einer großzügigen Wohnfläche von 125,74 m² und insgesamt 8 Zimmern, darunter 4 Schlafzimmer und 2 Badezimmer, bietet dieses Haus ausreichend Platz für die ganze Familie. Die durchdachte Architektur wird durch die elegante Dachabschleppung, die sich bis zum Wintergartenerker im Erdgeschoss erstreckt, perfekt ergänzt. Der zweigeschossige Giebelerker sorgt nicht nur für eine ansprechende Fassade, sondern maximiert auch den Wohnraum und vergrößert deine Küche sowie die Kinderzimmer. Ein besonderes Highlight ist die stilvolle Glasüberdachung am Hauseingang, die für einen einladenden ersten Eindruck sorgt.
Zusätzlich zu dieser beeindruckenden Architektur bietet LivingHaus eine Vielzahl an zusätzlichen Leistungen, die dein Bauprojekt zu einem stressfreien Erlebnis machen. Die hochwertige Traumküche wird individuell auf deinen Grundriss abgestimmt und vereint modernste Technik mit cleveren Stauraumlösungen und ästhetischem Design. Dank der pünktlichen Lieferung kannst du direkt nach dem Einzug mit dem Kochen beginnen.
Das LivingHaus Bau-Cockpit, eine praktische Bau-App, sorgt dafür, dass du den Überblick über dein Bauprojekt behältst. Von der Terminplanung bis hin zur Dokumentenverwaltung ist alles digital und einfach zugänglich. Durch das I-KON Konzept wird dein Zuhause nicht nur energieeffizient, sondern auch umweltfreundlich, während du mit dem Zuhause-Darlehen von attraktiven Finanzierungsmöglichkeiten profitierst.
Das Zuhause-Paket liefert dir eine hochwertige Grundausstattung, die moderne Böden, edle Türen und stilvolle Sanitäranlagen umfasst. Für alle, die selbst Hand anlegen möchten, bietet das DIY-Ausbau-Coaching wertvolle Tipps und Unterstützung von Experten.
Mit LivingHaus erhältst du nicht nur ein wunderschönes Zuhause, sondern auch ein durchdachtes Gesamtkonzept, das von der Finanzierung bis zur individuellen Ausgestaltung reicht. Hier wird dein Traumhaus Wirklichkeit!
Dein maßgeschneidertes Traumhaus in Hamburg - individuell geplant mit LivingHaus
21075 Hamburg
Die vollständige Adresse der Immobilie erhalten Sie vom Anbieter.
Auf Karte anzeigen
Die vollständige Adresse der Immobilie erhalten Sie vom Anbieter.
Finanzierungszertifikat
In nur zwei Minuten zu Ihrem persönlichen Finanzierungszertifkat.
Infos
| Haustyp | Doppelhaushaelfte |
|---|---|
| Etagenzahl | 2 |
| Wohnfläche ca. | 125 m2 |
| Nutzfläche | 125,74 m2 |
| Grundstücksfläche | 789 m2 |
| Zimmer | 8 |
| Schlafzimmer | 4 |
| Badezimmer | 2 |
Kosten
| Kaufpreis |
666.813 € |
|---|
Finanzierungsrechner:
Kaufpreis:
600.000 €
Eigenkapital:
600.000 €
Monatliche Rate
0 €
Effektiver Jahreszins
0 %
Sollzinsbindung
10 Jahre
Bausubstanz & Energieausweis
| Baujahr | 2026 |
|---|---|
| Bauphase | Haus in Planung (projektiert) |
| Qualität der Austattung | Gehoben |
| Energieausweis | liegt vor |
| Energieausweistyp | Bedarfsausweis |
| Energieverbrauchskennwert | 18,0 kWh/(m²*a) |
| Energieeffizienzklasse | A+ |
18,0
kWh/(m²*a)
Energieeffizienzklasse A+
- A+
- A
- B
- C
- D
- E
- F
- G
- H
- 0
- 25
- 50
- 75
- 100
- 125
- 150
- 175
- 200
- 225
- >250
Beschreibung des Objekts
Ausstattung
Dein neues Zuhause kommt mit einer Vielzahl an hochwertigen Ausstattungsmerkmalen. Der LivingHaus Sicherheitsservice ermöglicht dir eine 18-monatige Festpreisgarantie, während du von essenziellen Bauversicherungen wie Bauherrenhaftpflicht und Bauleistungsversicherung profitierst. Die Grundkonstruktion des Gebäudes ist durch eine 30-jährige Garantie abgesichert. Du erhältst eine umfassende Ausstattungsberatung in der Haus-Statterei und eine professionelle Bauantragsplanung durch erfahrene Architekten. Auch ein Bodengutachten für die ideale Gründung ist im Leistungspaket enthalten.
Die moderne Wärmepumpentechnik sorgt für ein angenehmes Raumklima und effizientes Heizen. Aluminiumgeschäumte Rollläden bieten sowohl im Sommer als auch im Winter zusätzlichen Komfort. Du kannst auf eine vorkonfigurierte I-KON-Lösung zurückgreifen, die eine integrierte PV-Anlage und Speicherbatterie umfasst.
Dein Zuhause wird mit allem ausgestattet, was du für einen stressfreien Einzug benötigst. Von Fliesen für das gesamte Erdgeschoss bis hin zu bodengleichen Duschen mit Echtglasabtrennung ist alles vorhanden. Dank des hohen Vorfertigungsgrades wird der Bauprozess effizient gestaltet.
LivingHaus bietet dir somit alles, was du für dein individuelles und sicheres Zuhause benötigst - dein "Wie ich es will Fertighaus".
Lage
Hamburg bietet dir als Standort eine Vielzahl an Vorteilen, die das Leben hier besonders lebenswert machen. In der unmittelbaren Umgebung findest du zahlreiche Bildungseinrichtungen, darunter moderne Schulen und Kindergärten, die für Familien ein wichtiges Kriterium darstellen. So sind beispielsweise die Grundschule Barmbek und das Gymnasium Barmbek Süd sehr gut erreichbar und genießen hohe Bewertungen von Eltern und Schülern.
Für die tägliche Versorgung sind mehrere Supermärkte wie REWE und EDEKA in nur wenigen Minuten erreichbar. Auch Ärzte und Apotheken sind in der Nachbarschaft vorhanden, sodass du und deine Familie immer gut versorgt seid. Die Nähe zu den Hamburger Stadtteilen bietet zusätzlich eine Vielzahl an Freizeitmöglichkeiten, von Parks über Sporteinrichtungen bis hin zu kulturellen Angeboten. Die Alster und die vielen Grünflächen der Stadt laden zu entspannenden Spaziergängen ein und bieten einen Ausgleich zum urbanen Leben.
Die Anbindung an den öffentlichen Nahverkehr ist hervorragend, mit mehreren Bushaltestellen und U-Bahnstationen in der Nähe, die dich schnell ins Zentrum von Hamburg bringen. Zudem sind die Autobahnen A1 und A7 leicht erreichbar, was Pendlern eine bequeme Anreise zu ihren Arbeitsplätzen ermöglicht. So bist du sowohl in der Stadt als auch im Grünen bestens aufgehoben und kannst die Vorzüge eines urbanen Lebensstils mit der Ruhe der Natur kombinieren. Hamburg ist der ideale Ort für Familien, Naturliebhaber und Berufstätige.
Sonstige Angaben
Das hier angebotene Grundstück ist im obigen Preis eingerechnet, es wird ohne zusätzliche Provision an einen Living Haus-Bauherren bereitgestellt.
Zusätzliche Baunebenkosten müssen noch hinzugerechnet werden, hierüber beraten wir dich gern.
Wir bieten auch interessante Finanzierungsmöglichkeiten inklusive Beantragung aller Fördermittel!
Die Hausabbildungen und die Bilder der Inneneinrichtung zeigen möglicherweise Extras, die nicht im angegebenen Kaufpreis inbegriffen sind.
Gute Beratung ist der Anfang von Allem. Deshalb analysieren wir gemeinsam mit euch eure Vorstellungen, Wünsche und Bedürfnisse und finden so das für Dich und Deine Familie passende Living Haus.
Interessiert? Kontaktiere mich und vereinbare noch heute einen kostenlosen und unverbindlichen Beratungstermin unter 017648990314
Grundriss
Cleverer Wohnraum kompakt
>
>
Cleverer Familiengrundris
>
>
Adresse
21075 Hamburg
Interessante Orte
Preis- und Lageinformationen
Preistrend für Bestandsimmobilien in Lohbrügge