Dieses charmante und sehr schöne Reihenmittelhaus wurde im Jahr 2016 erbaut und entspricht dem KfW-Effizienzhaus-70-Standard. Dank dieser energieeffizienten Bauweise benötigt das Haus rund 30 % weniger Primärenergie als ein vergleichbares Referenzgebäude nach dem Gebäudeenergiegesetz (GEG). Die Immobilie ist nach dem Wohnungseigentumsgesetz (WEG) aufgeteilt und überzeugt durch eine moderne Architektur sowie eine durchdachte Raumaufteilung.
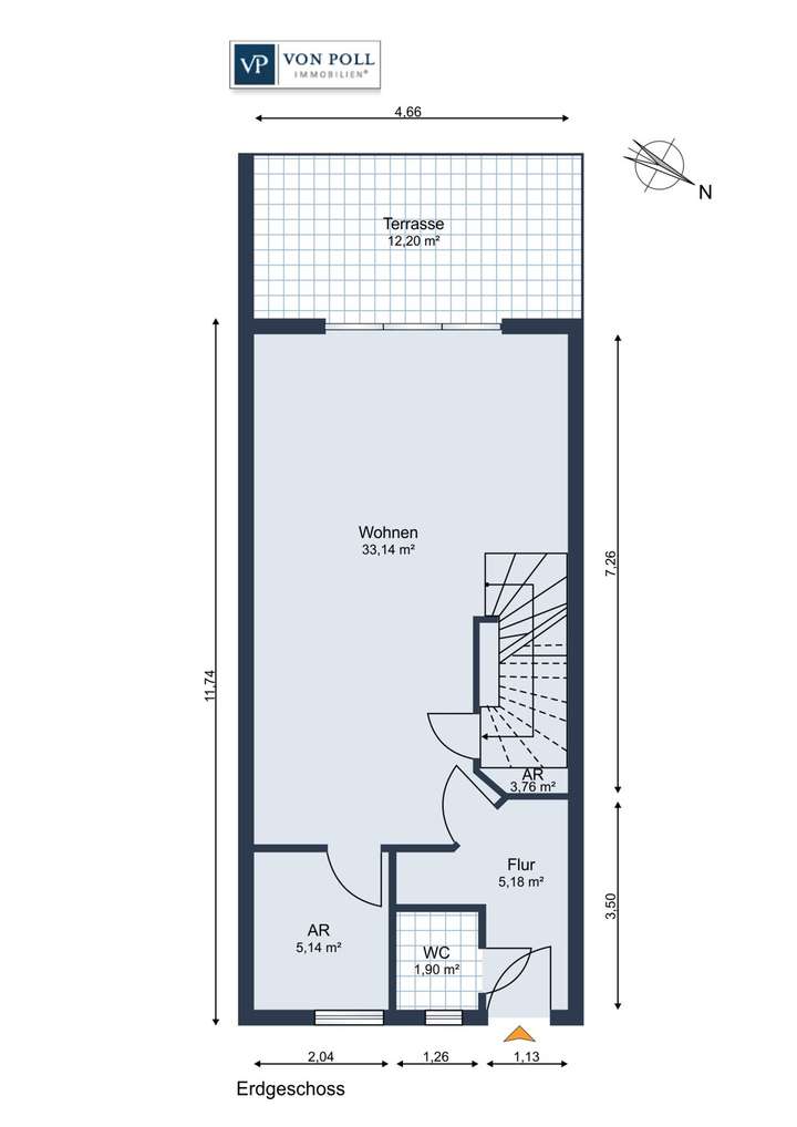
Beim Betreten des Hauses empfängt Sie ein stilvoll gefliester Eingangsbereich, der Platz für eine Garderobe bietet. Ein praktisches Gäste-WC befindet sich ebenfalls im Eingangsbereich. Geradeaus gelangen Sie in den offenen Wohn- und Essbereich mit einer eleganten, weißen Einbauküche. Die großzügigen Fensterfronten sorgen für eine helle und freundliche Atmosphäre. Von hier aus haben Sie direkten Zugang zur Terrasse und dem gepflegten Garten – ideal für entspannte Stunden im Freien.
Über eine mit geölten Eichendielen belegte Treppe gelangen Sie in das erste Obergeschoss. Ein besonderes Highlight ist die große Glasscheibe aus Verbundsicherheitsglas, die den offenen Treppenbereich stilvoll ergänzt. Hier befinden sich zwei geräumige Schlafzimmer, ein Tageslichtbad mit Wanne und Dusche sowie ein Hauswirtschaftsraum mit Technikzentrale.
Das Dachgeschoss rundet das Raumangebot perfekt ab. Eine großzügige Galerie mit Zugang zur Dachterrasse schafft eine besondere Wohnatmosphäre. Zudem bietet das Dachgeschoss ein Gäste- oder Arbeitszimmer sowie ein weiteres Badezimmer mit Dusche.
Abgerundet wird dieses attraktive Immobilienangebot durch eine Garage und einen zusätzlichen Stellplatz.
Die Immobilie ist derzeit vermietet und eignet sich hervorragend als langfristige Kapitalanlage für Investoren, die Wert auf moderne Bauqualität und gute Vermietbarkeit legen.
Bezugsfrei ab Frühjahr 2027: Vermietetes Reihenhaus mit Dachterrasse & Garage in Stuhr
28816 Stuhr
Die vollständige Adresse der Immobilie erhalten Sie vom Anbieter.
Auf Karte anzeigen
Die vollständige Adresse der Immobilie erhalten Sie vom Anbieter.
Finanzierungszertifikat
In nur zwei Minuten zu Ihrem persönlichen Finanzierungszertifkat.
Infos
| Haustyp | Reihenmittelhaus |
|---|---|
| Etagenzahl | 3 |
| Wohnfläche ca. | 135 m2 |
| Grundstücksfläche | 118 m2 |
| Zimmer | 4 |
| Schlafzimmer | 3 |
| Badezimmer | 2 |
| Garage/Stellplatz | Außenstellplatz |
| Anzahl Garage/Stellplatz | 1 |
Kosten
| Kaufpreis |
399.000 € |
|---|---|
| Provision |
Käuferprovision beträgt 3,57 % (inkl. MwSt.) des beurkundeten Kaufpreises |
Finanzierungsrechner:
Kaufpreis:
600.000 €
Eigenkapital:
600.000 €
Monatliche Rate
0 €
Effektiver Jahreszins
0 %
Sollzinsbindung
10 Jahre
Bausubstanz & Energieausweis
| Baujahr | 2016 |
|---|---|
| Bauphase | Haus fertig gestellt |
| Objektzustand | Gepflegt |
| Qualität der Austattung | Gehoben |
| Heizungsart | Solar-Heizung |
| Wesentliche Energieträger | Gas |
| Energieausweis | liegt vor |
| Energieausweistyp | Verbrauchsausweis |
| Energieverbrauchskennwert | 40,9 kWh/(m²*a) |
| Energieeffizienzklasse | A |
40,9
kWh/(m²*a)
Energieeffizienzklasse A
- A+
- A
- B
- C
- D
- E
- F
- G
- H
- 0
- 25
- 50
- 75
- 100
- 125
- 150
- 175
- 200
- 225
- >250
Beschreibung des Objekts
Ausstattung
- Teilungserklätung nach WEG mit 190/1000 Anteilen und Gesamtgrundstück von 1177 Quadratmetern
- KFW Energieeffizient 70 mit Lüftungsanlage und Wärmerückgewinnung
- Solarthermie auf dem Dach
- Gastherme aus ca. 2016 im HWR im 1.OG
- ökologischer Innenputz sowie Farbe (keine Tapete)
- im ganzen Haus wurde gebürsteter und geölter Eichenparkettboden schwimmend verlegt (außer Bäder, HWR)
- die Treppen wurden mit 4 cm dicken Eichendielen belegt
- 3-Fachverglasung der Kunststofffenster
- 2 Vollbäder mit Fenster im 1. OG und DG und 1 GWC im EG
- gesamte Haustechnik,Waschmaschinenanschluss im HWR (1.OG)
- 2 Abstellräume
- 3 Schlafzimmer
- 1 Galerie
- 1 Dachterrasse
- 1 Garage (Sondereigentum) und ein weiterer Stellplatz
Lage
Das Haus ist in einer familienfreundlichen und zentralen Lage von Stuhr-Brinkum gelegen.Brinkum ist ein Ortsteil der Gemeinde Stuhr und grenzt nördlich an das Naturschutzgebiet Kladdinger Wiesen und östlich der B 6 an die Leester Marsch, welche zur Gemeinde Weyhe
gehört.
Brinkum ist mit einer eigenen Abfahrt an die A1 angebunden und auch nur wenige Minuten vom Flughafen entfernt. Kindergärten, Grund,-und weiterführende Schulen (KGS Brinkum), Volkshochschule, Musikschule und Sportvereine sind in der Nähe.
Zudem befinden sich alle Notwendigkeiten des täglichen Bedarfs, wie Ärzte, Apotheken, diverse Einkaufsmöglichkeiten, Wochenmarkt, Ochtumpark etc. in der Nähe.
Sonstige Angaben
GELDWÄSCHE: Als Immobilienmaklerunternehmen ist die von Poll Immobilien GmbH nach § 2 Abs. 1 Nr. 14 und § 11 Abs. 1, 2 Geldwäschegesetz (GwG) dazu verpflichtet, bei der Begründung einer Geschäftsbeziehung die Identität des Vertragspartners festzustellen und zu überprüfen, bzw. sobald ein ernsthaftes Interesse an der Durchführung des Immobilienkaufvertrages besteht. Hierzu ist es erforderlich, dass wir nach § 11 Abs. 4 GwG die relevanten Daten Ihres Personalausweises festhalten (wenn Sie als natürliche Person handeln) – beispielsweise mittels einer Kopie. Bei einer juristischen Person benötigen wir eine Kopie des Handelsregisterauszugs, aus welchem der wirtschaftlich Berechtigte hervorgeht. Das Geldwäschegesetz sieht vor, dass der Makler die Kopien bzw. Unterlagen fünf Jahre aufbewahren muss. Als unser Vertragspartner haben Sie auch eine Mitwirkungspflicht nach § 11 Abs. 6 GwG.
HAFTUNG: Wir weisen darauf hin, dass die von uns weitergegebenen Objektinformationen, Unterlagen, Pläne etc. vom Verkäufer bzw. Vermieter stammen. Eine Haftung für die Richtigkeit oder Vollständigkeit der Angaben übernehmen wir daher nicht. Es obliegt daher unseren Kunden, die darin enthaltenen Objektinformationen und Angaben auf ihre Richtigkeit hin zu überprüfen. Alle Immobilienangebote sind freibleibend und vorbehaltlich Irrtümer, Zwischenverkauf- und Vermietung oder sonstiger Zwischenverwertung.
UNSER SERVICE FÜR SIE ALS EIGENTÜMER:
Planen Sie den Verkauf oder die Vermietung Ihrer Immobilie, so ist es für Sie wichtig, deren Marktwert zu kennen. Lassen Sie kostenfrei und unverbindlich den aktuellen Wert Ihrer Immobilie professionell durch einen unserer Immobilienspezialisten einschätzen. Unser bundesweites und internationales Netzwerk ermöglicht es uns, Verkäufer bzw. Vermieter und Interessenten bestmöglich zusammenzuführen.
Grundriss
Erdgeschoss Grundriss.jpg
>
>
Obergeschoss Grundriss.jpg
>
>
Spitzboden Grundriss.jpg
>
>
Adresse
28816 Stuhr
Interessante Orte
Preis- und Lageinformationen
Preistrend für Bestandsimmobilien in Stuhr