Ideal für die junge Familie - jetzt einziehen & wohlfühlen
KfW Förderung schon ab Energiestandard 55 möglich, bis 100.000,-€ , zu sehr günstigen Konditionen
26188 Edewecht
Die vollständige Adresse der Immobilie erhalten Sie vom Anbieter.
Auf Karte anzeigen
Die vollständige Adresse der Immobilie erhalten Sie vom Anbieter.
Finanzierungszertifikat
In nur zwei Minuten zu Ihrem persönlichen Finanzierungszertifkat.
Infos
| Haustyp | Einfamilienhaus |
|---|---|
| Wohnfläche ca. | 140 m2 |
| Nutzfläche | 0 m2 |
| Grundstücksfläche | 472 m2 |
| Zimmer | 4 |
| Schlafzimmer | 3 |
| Badezimmer | 1 |
| Anzahl Garage/Stellplatz | 0 |
Kosten
| Kaufpreis |
270.625 € |
|---|---|
| Provision | Nein |
Finanzierungsrechner:
Kaufpreis:
600.000 €
Eigenkapital:
600.000 €
Monatliche Rate
0 €
Effektiver Jahreszins
0 %
Sollzinsbindung
10 Jahre
Bausubstanz & Energieausweis
| Baujahr | 2026 |
|---|---|
| Bauphase | Haus in Planung (projektiert) |
| Qualität der Austattung | Gehoben |
| Heizungsart | Wärmepumpe |
Beschreibung des Objekts
Ausstattung
🏡 Fertighaus: Schnell. Preiswert. Individuell. Technologisch führend.
🚀 Schnelle Bauzeit
Vorfertigung ermöglicht Einzug in wenigen Monaten
Minimale Wetterabhängigkeit = planbare Termine
Ideal für Familien, die zügig ins Eigenheim wollen
💰 Preiswert & transparent
Fixe Kosten durch standardisierte Prozesse
Ausbauhaus-Optionen für Eigenleistung und Kostensenkung
Förderfähig durch Energieeffizienzstandards
🎨 Individuelle Gestaltung
Große Auswahl an Grundrissen und Designs
Anpassbar an Lebensstil, Grundstück und Budget
Von klassisch bis modern – alles ist möglich
⚙️ Modernste Technik
Smarte Haustechnik: Heizsysteme, Lichtsteuerung, Sicherheit
Energieeffizienz durch Dämmung, Wärmepumpe, Solarpanels
Nachhaltige Materialien und CO₂-reduzierte Bauweise
Lage
Noch sind einige Grundstücke über die Gemeinde Edewecht zu erwerben. Der Grundstückspreis ist nicht im genannten Gesamtpreis enthalten.
Preis: 148,-€/qm
Sie haben noch kein Grundstück? Wir begleiten Sie mit unserem einzigartigen
Service bei der Suche nach Ihrem Traumgrundstück – ein Fleckchen Erde, das Ihr
neues Lebensgefühl bereitstellt.
Hier, an diesem Ort, fühlen Sie sofort:
Geborgenheit, Freiheit und die Vorfreude auf neue Möglichlichkeiten. Mit uns
finden Sie den perfekten Standort, an dem Sie sich niederlassen, wachsen und
Ihre Pläne Wirklichkeit werden lassen.
Willkommen zu Hause, dort, wo Ihre Zukunft beginnt!
Sonstige Angaben
5 Zimmer + offener Wohn-/Essbereich
Flexible Grundrisse für Eure Lebenssituation
Energiesparend & nachhaltig (Alle KfW-Standards möglich)
Kurze Bauzeit
Festpreisgarantie
Persönliche Betreuung von Anfang an
Jetzt Beratungstermin sichern!
Lasst Euch unverbindlich beraten und entdeckt, wie einfach der Weg in Euer Eigenheim sein kann.
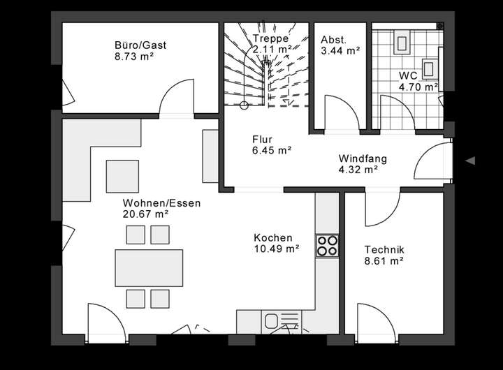
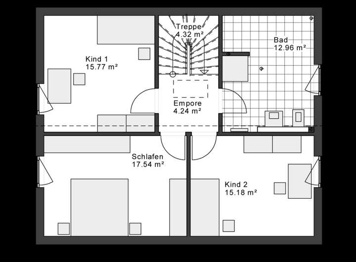
Grundriss
Grundriss EG
>
>
Grundriss OG
>
>
Adresse
26188 Edewecht
Interessante Orte
Preis- und Lageinformationen
Preistrend für Bestandsimmobilien in Edewecht