Ideal für die junge Familie - jetzt einziehen & wohlfühlen
Heute dein Zuhause, morgen deine Zukunft.
26188 Edewecht
Die vollständige Adresse der Immobilie erhalten Sie vom Anbieter.
Auf Karte anzeigen
Die vollständige Adresse der Immobilie erhalten Sie vom Anbieter.
Finanzierungszertifikat
In nur zwei Minuten zu Ihrem persönlichen Finanzierungszertifkat.
Infos
| Haustyp | Einfamilienhaus |
|---|---|
| Wohnfläche ca. | 123 m2 |
| Nutzfläche | 0 m2 |
| Grundstücksfläche | 686 m2 |
| Zimmer | 3 |
| Schlafzimmer | 3 |
| Badezimmer | 1 |
| Anzahl Garage/Stellplatz | 0 |
Kosten
| Kaufpreis |
292.281 € |
|---|---|
| Provision | Nein |
Finanzierungsrechner:
Kaufpreis:
600.000 €
Eigenkapital:
600.000 €
Monatliche Rate
0 €
Effektiver Jahreszins
0 %
Sollzinsbindung
10 Jahre
Bausubstanz & Energieausweis
| Baujahr | 2026 |
|---|---|
| Bauphase | Haus in Planung (projektiert) |
| Qualität der Austattung | Gehoben |
| Heizungsart | Wärmepumpe |
Beschreibung des Objekts
Ausstattung
THINK BLACK – All in.
- Schlüsselfertig & sofort bezugsbereit – ohne zusätzlichen Aufwand
- Kompletter Innenausbau – keine Handwerkersuche, kein Planungsstress
- Durchdachte Raumaufteilung – moderne Wohnkonzepte für jede Lebensphase
- Innovative Haustechnik – zukunftssicheres Wohnen mit höchster Effizienz
- Maximaler Komfort – alles fertig, alles drin
Für alle, die einfach einziehen und losleben wollen!
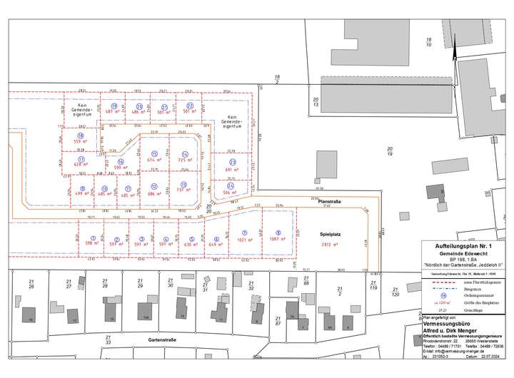
Lage
Noch sind einige Grundstücke über die Gemeinde Edewecht zu erwerben. Der Grundstückspreis ist nicht im genannten Gesamtpreis enthalten.
Preis: 164-183,-€/qm
Sie haben noch kein Grundstück? Wir begleiten Sie mit unserem einzigartigen
Service bei der Suche nach Ihrem Traumgrundstück – ein Fleckchen Erde, das Ihr
neues Lebensgefühl bereitstellt.
Hier, an diesem Ort, fühlen Sie sofort:
Geborgenheit, Freiheit und die Vorfreude auf neue Möglichlichkeiten. Mit uns
finden Sie den perfekten Standort, an dem Sie sich niederlassen, wachsen und
Ihre Pläne Wirklichkeit werden lassen.
Willkommen zu Hause, dort, wo Ihre Zukunft beginnt!
Sonstige Angaben
Dein Haus, dein Eigentum, Sicherheit, Wertbeständigkeit, Geborgenheit für Dich und deine Familie
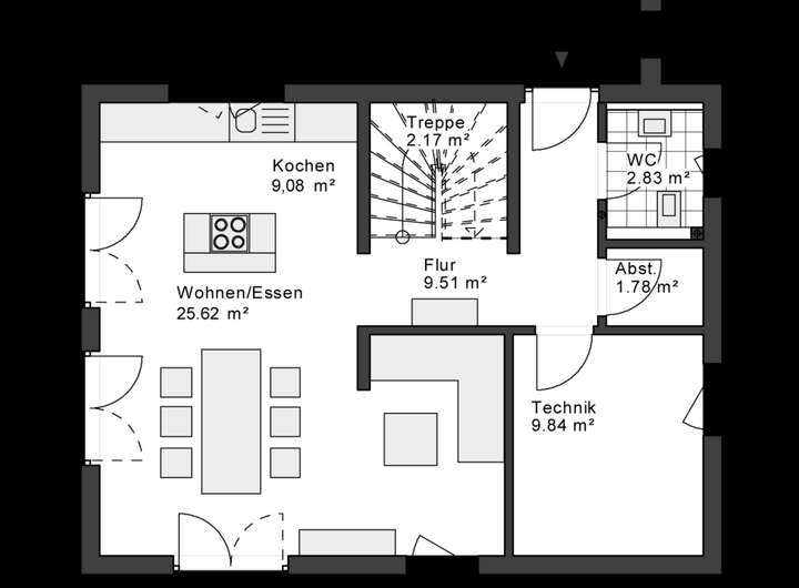
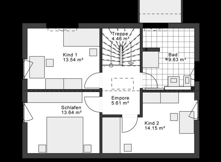
Grundriss
Grundriss EG
>
>
Grundriss OG
>
>
Adresse
26188 Edewecht
Interessante Orte
Preis- und Lageinformationen
Preistrend für Bestandsimmobilien in Edewecht