Bist du bereit? Lass uns loslegen!
Warum warten, wenn dein eigenes Zuhause nur eine Entscheidung entfernt ist?
Unsere Wegbegleiter holen dich dort ab, wo du gerade stehst, und ebnen deinen persönlichen Weg zum Wohneigentum.
Fehlt dir noch das passende Grundstück? Wir helfen dir, es zu finden.
Hast du Fragen zur Finanzierung? Wir haben die Lösung.
Bist du unsicher, welches Haus das richtige für dich ist? Unsere Experten unterstützen dich dabei.
Es gibt nie den perfekten Moment, aber es gibt den richtigen Schritt.
Dein Zuhause beginnt heute mit White&Black.
KfW Förderung schon ab Energiestandard 55 möglich, bis 100.000,-€ , zu sehr günstigen Konditionen
26188 Edewecht
Die vollständige Adresse der Immobilie erhalten Sie vom Anbieter.
Auf Karte anzeigen
Die vollständige Adresse der Immobilie erhalten Sie vom Anbieter.
Finanzierungszertifikat
In nur zwei Minuten zu Ihrem persönlichen Finanzierungszertifkat.
Infos
| Haustyp | Einfamilienhaus |
|---|---|
| Wohnfläche ca. | 149 m2 |
| Nutzfläche | 0 m2 |
| Grundstücksfläche | 686 m2 |
| Zimmer | 4 |
| Schlafzimmer | 3 |
| Badezimmer | 1 |
| Anzahl Garage/Stellplatz | 0 |
Kosten
| Kaufpreis |
276.451 € |
|---|---|
| Provision | Nein |
Finanzierungsrechner:
Kaufpreis:
600.000 €
Eigenkapital:
600.000 €
Monatliche Rate
0 €
Effektiver Jahreszins
0 %
Sollzinsbindung
10 Jahre
Bausubstanz & Energieausweis
| Baujahr | 2026 |
|---|---|
| Bauphase | Haus in Planung (projektiert) |
| Qualität der Austattung | Gehoben |
| Heizungsart | Wärmepumpe |
Beschreibung des Objekts
Ausstattung
Lieferung und Aufstellung des Rohbaus mit Fenster und Außentüren auf bauseitiger Bodenplatte/Kellet, inkl. Statik, Bauantrag. Aufstellung erfolgt durch ein eigenes, erfahrenes und qualifiziertes Montageteam, inkl. Baustelleneinrichtung, Bautoilette ggfl. Gerüst. Dazu erhalten Sie unsere 18 Monate Festpreisgarantie. Das Haus ist nach der Übergabe des Rohbaus regendicht und wettergeschützt. In dieser Ausbaustufe werden Rollläden, Sanitär- und Elektroinstallation, Luft-Wasser-Wärmepumpe mit Fußbodenheizung, Beplankung der Decken und Dachschrägen, sowie schwimmender Estrich, Wand-Bodenfliesen in den Naßräumen, Duschwanne und Sanitärobjekte geliefert und fachgerecht montiert.
Lage
Noch sind einige Grundstücke über die Gemeinde Edewecht zu erwerben. Der Grundstückspreis ist nicht im genannten Gesamtpreis enthalten.
Preis: 164-183,-€/qm
Sie haben noch kein Grundstück? Wir begleiten Sie mit unserem einzigartigen
Service bei der Suche nach Ihrem Traumgrundstück – ein Fleckchen Erde, das Ihr
neues Lebensgefühl bereitstellt.
Hier, an diesem Ort, fühlen Sie sofort:
Geborgenheit, Freiheit und die Vorfreude auf neue Möglichlichkeiten. Mit uns
finden Sie den perfekten Standort, an dem Sie sich niederlassen, wachsen und
Ihre Pläne Wirklichkeit werden lassen.
Willkommen zu Hause, dort, wo Ihre Zukunft beginnt!
Sonstige Angaben
5 Zimmer + offener Wohn-/Essbereich
Flexible Grundrisse für Eure Lebenssituation
Energiesparend & nachhaltig (Alle KfW-Standards möglich)
Kurze Bauzeit
Festpreisgarantie
Persönliche Betreuung von Anfang an
Jetzt Beratungstermin sichern!
Lasst Euch unverbindlich beraten und entdeckt, wie einfach der Weg in Euer Eigenheim sein kann.
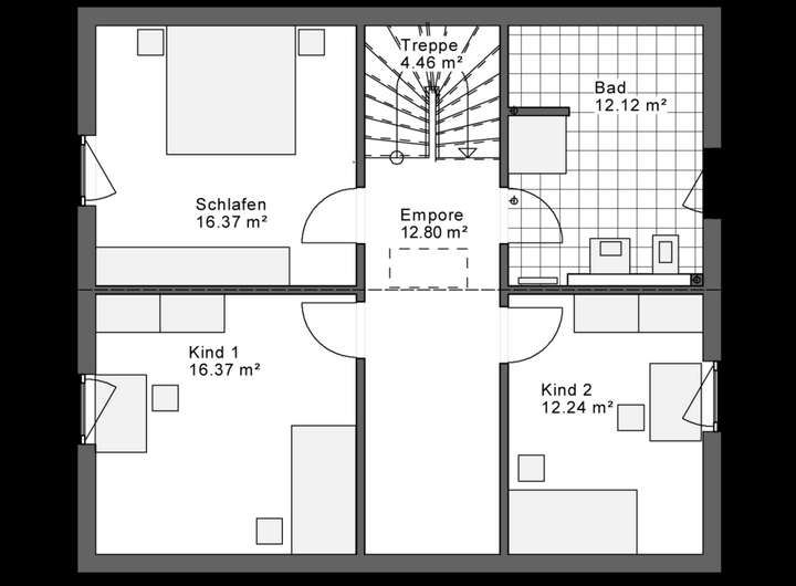
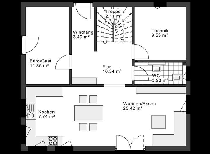
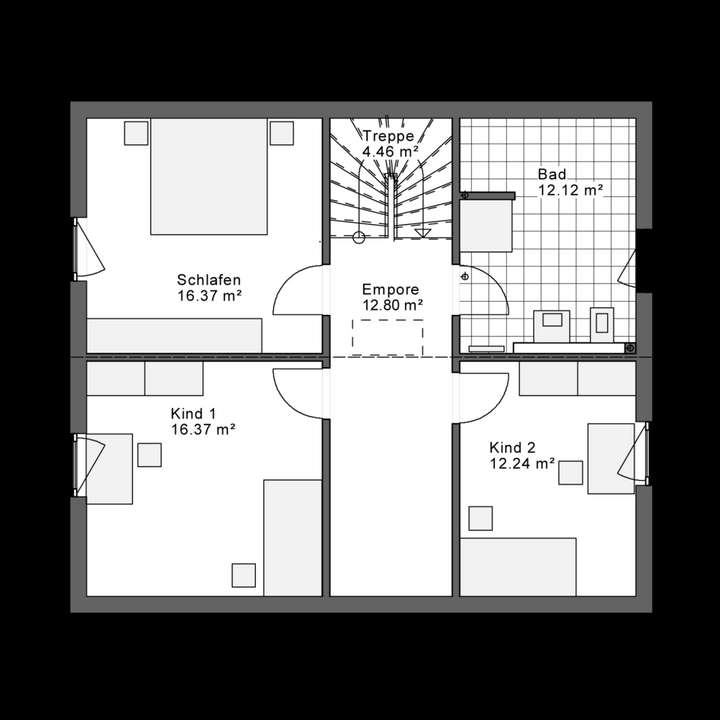
Grundriss
Grundriss EG
>
>
Grundriss OG
>
>
Adresse
26188 Edewecht
Interessante Orte
Preis- und Lageinformationen
Preistrend für Bestandsimmobilien in Edewecht