Unsere Danhaus Haustypen werden in Holzständerbauweise industriell, mit modernsten computergesteuerten, Abbundmaschinen, vorgefertigt und auf Ihrem Grundstück, auf der Bodenplatte aufgestellt . Danach wird innerhalb kürzester Zeit, die Außenwand mit massivem Vollklinker, inkl. Verfugung, mineralischer hydrophober Dämmung, Luftschicht, mit zugelassenen Mauerwerksankern, gemauert. Die Kombination aus Holzständerwerk und Vollklinker garantiert ein Höchstmaß an Wärme- und Schalldämmung. Sie vereint modernste Technik mit klassischer Klinkerfassade und bleibt über Generationen wertstabil und schön.
Geld sparen durch Eigenleistung
26188 Edewecht
Die vollständige Adresse der Immobilie erhalten Sie vom Anbieter.
Auf Karte anzeigen
Die vollständige Adresse der Immobilie erhalten Sie vom Anbieter.
Finanzierungszertifikat
In nur zwei Minuten zu Ihrem persönlichen Finanzierungszertifkat.
Infos
| Haustyp | Einfamilienhaus |
|---|---|
| Wohnfläche ca. | 124 m2 |
| Nutzfläche | 0 m2 |
| Grundstücksfläche | 559 m2 |
| Zimmer | 4 |
| Schlafzimmer | 3 |
| Badezimmer | 2 |
| Anzahl Garage/Stellplatz | 0 |
Kosten
| Kaufpreis |
255.000 € |
|---|---|
| Provision | Nein |
Finanzierungsrechner:
Kaufpreis:
600.000 €
Eigenkapital:
600.000 €
Monatliche Rate
0 €
Effektiver Jahreszins
0 %
Sollzinsbindung
10 Jahre
Bausubstanz & Energieausweis
| Baujahr | 2026 |
|---|---|
| Bauphase | Haus in Planung (projektiert) |
| Qualität der Austattung | Gehoben |
| Heizungsart | Wärmepumpe |
Beschreibung des Objekts
Ausstattung
Danhaus liefert und erstellt die Bodenplatte und den Rohbau, inkl. Fenster und Haustüren.
Lage
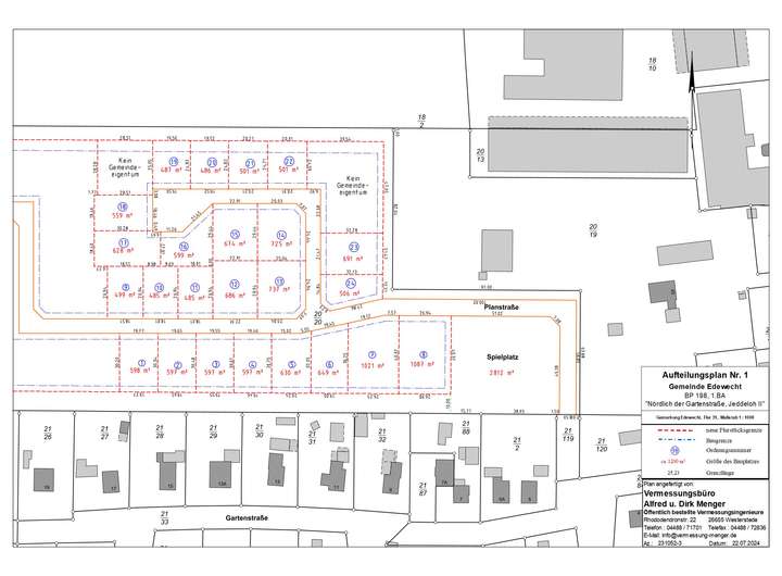
Noch sind einige Grundstücke über die Gemeinde Edewecht zu erwerben. Der Grundstückspreis ist nicht im genannten Gesamtpreis enthalten.
Preis: 164-183,-€/qm
Sie haben noch kein Grundstück? Wir begleiten Sie mit unserem einzigartigen
Service bei der Suche nach Ihrem Traumgrundstück – ein Fleckchen Erde, das Ihr
neues Lebensgefühl bereitstellt.
Hier, an diesem Ort, fühlen Sie sofort:
Geborgenheit, Freiheit und die Vorfreude auf neue Möglichlichkeiten. Mit uns
finden Sie den perfekten Standort, an dem Sie sich niederlassen, wachsen und
Ihre Pläne Wirklichkeit werden lassen.
Willkommen zu Hause, dort, wo Ihre Zukunft beginnt!
Sonstige Angaben
Sie bestimmen die Energie-Effizienzklasse, von KfW 55 bis KfF 40+ und QNG.
Anbauteile, Carport, Garage und Keller können Extras sein, die als Sonderausstattung angeboten werden. Abbildungen, Grundrisse und Flächenangaben sind beispielhaft und können Extras zeigen. Flächenangaben nach DIN 277.
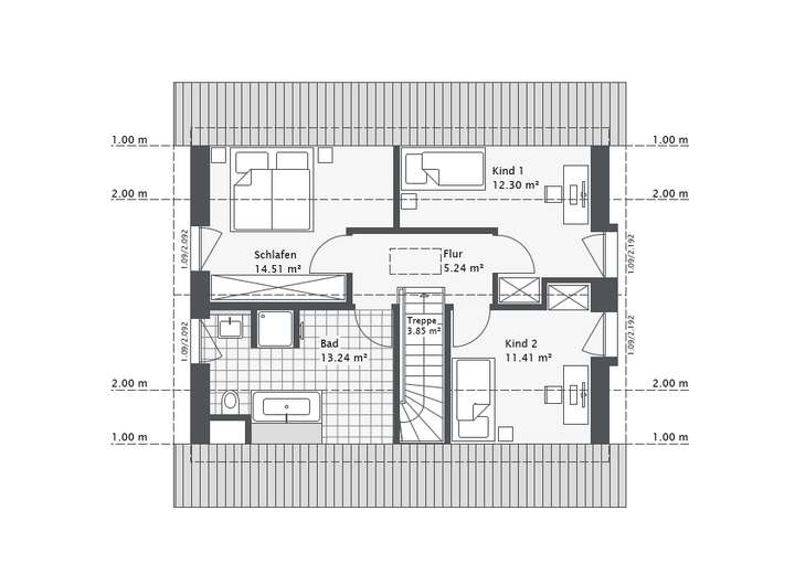
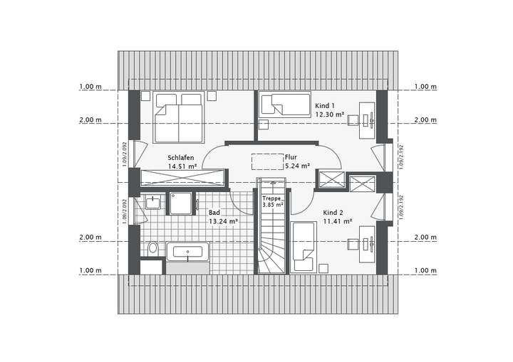
Grundriss
DreamLine-E-123 E1 EG
>
>
DreamLine-E-123 E1 OG
>
>
Adresse
26188 Edewecht
Interessante Orte
Preis- und Lageinformationen
Preistrend für Bestandsimmobilien in Edewecht