Das umfassend modernisierte Mehrfamilienhaus liegt im beliebten Stadtteil Alt-Rahlstedt. Die umgebende Bebauung besteht überwiegend aus Einfamilien- und kleineren Mehrfamilienhäusern. Die Lage in einer Einbahnstraße mit Tempo 30-Zone bietet ein angenehmes Wohnumfeld.
Mit einer Größe von ca. 805 m² verfügt das Grundstück über einen herrlichen und weitläufigen Garten.
Erdgeschoss (frei):
+ 4 Zimmer und ca. 110 m² Wohnfläche
+ große Terrasse
+ Garten
Obergeschoss (frei):
+ 3 Zimmer und ca. 70 m² Wohnfläche
+ große Dachterrasse
Dachgeschoss (vermietet):
+ 2 Räume und ca. 50 m² wohnlich ausgebaute Nutzfläche
Die Räumlichkeiten im Dachgeschoss sind derzeit vermietet an ein älteres Ehepaar, die dort auch gerne weiterhin wohnen bleiben möchten. Die Wohnungen im Erd- und Obergeschoss stehen leer und könnten sofort neu vermietet werden. Alternativ könnten Sie diese auch selbst nutzen.
Seitlich neben dem Haus findet ein Auto in der geräumigen Garage einen geschützten Platz. Durch das hintere Tor ist eine Durchfahrt zum rückwärtigen Carport möglich. Die Auffahrt bietet zudem Stellfläche für ein weiteres Auto.
Sind Sie perspektivisch auf der Suche nach einem Mehrgenerationenhaus oder wollen Sie eine oder zwei Wohnungen selbst nutzen und die dritte als Kapitalanlage nutzen? Diese Immobilie bietet Ihnen einen bunten Strauß an Möglichkeiten. Sie können entscheiden, welche Nutzung aktuell und in Zukunft für Sie passend ist.
TOP-Modernisierte Kaffeemühle, teilvermietet, in ruhiger Wohnlage von Alt-Rahlstedt!
22149 Hamburg
Die vollständige Adresse der Immobilie erhalten Sie vom Anbieter.
Auf Karte anzeigen
Die vollständige Adresse der Immobilie erhalten Sie vom Anbieter.
Finanzierungszertifikat
In nur zwei Minuten zu Ihrem persönlichen Finanzierungszertifkat.
Infos
| Haustyp | Einfamilienhaus |
|---|---|
| Etagenzahl | 3 |
| Wohnfläche ca. | 179 m2 |
| Nutzfläche | 217,28 m2 |
| Grundstücksfläche | 805 m2 |
| Bezugsfrei ab | ab sofort |
| Zimmer | 9 |
| Schlafzimmer | 7 |
| Badezimmer | 3 |
| Garage/Stellplatz | Garage |
| Anzahl Garage/Stellplatz | 1 |
Kosten
| Kaufpreis |
995.000 € |
|---|---|
| Provision |
3,57 % inkl. Mwst. |
Finanzierungsrechner:
Kaufpreis:
600.000 €
Eigenkapital:
600.000 €
Monatliche Rate
0 €
Effektiver Jahreszins
0 %
Sollzinsbindung
10 Jahre
Bausubstanz & Energieausweis
| Baujahr | 1929 |
|---|---|
| Objektzustand | Saniert |
| Heizungsart | Zentralheizung |
| Wesentliche Energieträger | Erdgas leicht |
| Energieausweis | liegt vor |
| Energieausweistyp | Verbrauchsausweis |
| Energieverbrauchskennwert | 178,4 kWh/(m²*a) |
| Energieeffizienzklasse | F |
178,4
kWh/(m²*a)
Energieeffizienzklasse F
- A+
- A
- B
- C
- D
- E
- F
- G
- H
- 0
- 25
- 50
- 75
- 100
- 125
- 150
- 175
- 200
- 225
- >250
Beschreibung des Objekts
Ausstattung
Besondere Highlights:
+ Repräsentative Kaffeemühle
+ nachhaltiges Wertsteigerungspotenzial und Inflationsschutz
+ massive Bauweise und Wärmedämmverbundsystem mit Putz-Fassade
+ Baujahr ursprünglich ca. 1930
+ umfangreich modernisiert zwischen 2001 und 2025
+ insgesamt ca. 180 m² vermietbare Wohnfläche im EG und OG
+ zuzüglich ca. 50 m² wohnlich ausgebaute Nutzfläche im DG
+ ca. 805 m² Grundstücksgröße
+ Wohnungen im EG und OG aktuell leerstehend
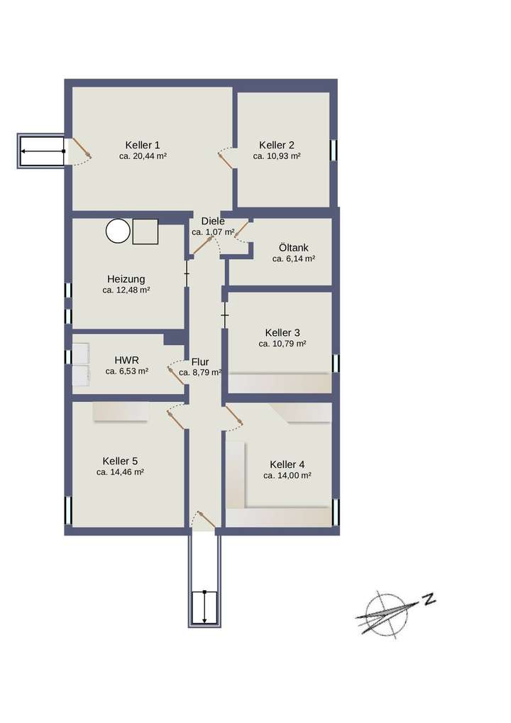
+ ca. 106 m² Kellerfläche
+ verkehrsberuhigte Tempo 30-Zone
+ eigener Kellerteil für jede Wohnung
+ solide Wohnungsgrößen mit hoher Marktnachfrage
+ herrlich angelegter Garten mit altem Baum- und Gehölzbestand und Pavillon
+ moderne Tageslicht-Bäder
+ Energieeffizienzklasse "F"
+ effiziente Gas-Heizungsanlage aus 1998
+ zentrale Warmwasserbereitung
+ große Garage mit Durchfahrt zum rückwärtigen Carport
+ zusätzlicher PKW-Stellplatz auf der Auffahrt
+ zwei Regenauffangbehälter und Bodentanks
+ fußläufig sind die Fußgängerzone und der Bahnhof Rahlstedt schnell erreichbar
Die Erd- und Obergeschosswohnungen stehen derzeit leer.
Dachgeschoss (vermietet):
IST-Miete kalt: 468 € pro Monat, also 5.832 € pro Jahr
Es besteht kein Sanierungsstau. Die Kellerdecke und die oberste Geschossdecke sind bereits gedämmt. Das Gebäude ist in einem gepflegten Zustand.
Zur Wahrung der Privatsphäre der Mieter zeigen wir keine Fotos der Dachgeschosswohnung.
Bitte beachten Sie, dass individuelle Besichtigungen zum Schutz der Mieter erst nach einem telefonischen Vorgespräch und nur mit einem vorliegenden Nachweis der grundsätzlichen Finanzierbarkeit erfolgen können. Vielen Dank für ihr Verständnis.
Nähere Details erläutere ich Ihnen gerne in einem persönlichen Gespräch.
Lage
Die Immobilie liegt im beliebten Hamburger Stadtteil Rahlstedt, Bezirk Wandsbek. Rahlstedt vereint dörflichen Charme mit städtischer Infrastruktur und gilt mit seinen Grünflächen, Parks und Naturschutzgebieten als einer der familienfreundlichsten Stadtteile Hamburgs. Die Wohnstraße ist als Tempo-30-Zone mit den beiderseitigen Gehwegen angenehm ruhig. Hier genießen Sie eine entspannte Wohnatmosphäre mit guter Nachbarschaft, ohne auf die Nähe zum urbanen Leben verzichten zu müssen.
Die Nahversorgung ist exzellent: Supermärkte, Bäckereien, Apotheken, Ärzte, Cafés und Restaurants befinden sich in unmittelbarer Nähe und sind bequem zu Fuß erreichbar. Das beliebte Rahlstedt-Center mit einer Vielzahl an Geschäften, Gastronomie und Dienstleistungen liegt nur wenige Minuten entfernt. Auch das kulturelle Angebot überzeugt mit Sportvereinen, Bibliotheken und Freizeitmöglichkeiten in direkter Umgebung.
Familien profitieren von einem breiten Bildungsangebot: Gleich im Hüllenkamp befindet sich ein Standort der Grund- und Stadtteilschule Alt-Rahlstedt, weitere Kitas, Grund- und weiterführende Schulen sowie das renommierte Gymnasium Rahlstedt sind ebenfalls schnell zu erreichen.
Die Verkehrsanbindung ist hervorragend: Buslinien bringen Sie in wenigen Minuten zum Regionalbahnhof Rahlstedt, von dem aus Sie den Hamburger Hauptbahnhof in ca. 17 Minuten erreichen. Mit dem Auto gelangen Sie dank der Nähe zur A1 und A24 schnell in alle Richtungen.
Für Erholung und Freizeit bietet Rahlstedt zahlreiche Möglichkeiten: Spaziergänge an der Wandse, Ausflüge in das Naturschutzgebiet Höltigbaum oder sportliche Aktivitäten in den umliegenden Grünanlagen lassen Sie den Alltag vergessen. Hier wohnen Sie ruhig, naturnah und dennoch bestens angebunden – ideal für Familien, Pendler und alle, die Wert auf Lebensqualität legen.
Sonstige Angaben
Auszug der erfolgten Modernisierungen:
2025:
EG-Wohnung: WALL-Box-Anschluss
OG-Wohnung: Erneuerung Sanitärobjekte, Erneuerung E-Verteilung, neuer Design-Boden
2019:
EG-Wohnung. Komplettrenovierung inkl. neuem Bad, Küche, Gartenzuwegung
2006/2007:
OG-Wohnung: Komplettrenovierung inkl. Küche
2002:
Renovierung der Fassade
2001:
Haus gesamt: Erneuerung Heizung und Elektrik, Fenster
EG-Wohnung: neue Sanitäreinrichtungen, Renovierung,
OG-Wohnung: neue Sanitäreinrichtungen, Renovierung, Ausbau Dachterrasse
Sie wollen Ihre Immobilie verkaufen? Sprechen Sie uns an und vereinbaren Sie einen Termin für eine kostenlose Werteinschätzung. Entsprechend Ihrer Vorstellungen erhalten Sie von uns ein für Sie maßgeschneidertes Vermarktungskonzept für Ihre Immobilie.
Dolberg & Uderstadt Immobilien, Ihr Vertrauensmakler seit 1971 – profitieren Sie von der Erfahrung aus mehr als 50 Jahren im Verkauf von Immobilien.
Nebenkosten: ca. 2 % Notar- und Gerichtskosten sowie 5,5 % gesetzlicher Grunderwerbsteuer
Käufercourtage: 3,57 % inkl. Mehrwertsteuer
Bitte haben Sie Verständnis dafür, dass auf Wunsch der Verkäufer keine Reservierungen vor Notartermin möglich sind.
Haftungsausschluss: Wir möchten Sie darauf hinweisen, dass sämtliche Angaben auf Grundlage von Eigentümerangaben, nach bestem Wissen und Gewissen, jedoch ohne Gewähr auf Vollständigkeit und Richtigkeit, erfolgen. Irrtum und Zwischenverkauf vorbehalten. Der Makler ist von jeglicher Haftung befreit.
Grundriss
Grundriss EG
>
>
Grundriss OG
>
>
Grundriss DG
>
>
Grundriss KG
>
>
Adresse
22149 Hamburg
Interessante Orte
Preis- und Lageinformationen
Preistrend für Bestandsimmobilien in Rahlstedt