Zum Verkauf steht ein gepflegtes Reihenhaus in Garbsen-Berenbostel, das durch seine solide Bauweise und sein großzügiges Platzangebot überzeugt. Das im Jahr 1976 errichtete Haus wurde in massiver Bauweise mit ansprechenden Verblendklinkern gebaut und befindet sich in einem altersbedingt gut gepflegten Zustand.
Die Wohnfläche beträgt ca. 148 m² und verteilt sich auf zwei Geschosse sowie ein ausgebautes Dachgeschoss. Insgesamt stehen 6 Zimmer zur Verfügung, die vielfältige Nutzungsmöglichkeiten bieten – ideal für Familien, Homeoffice oder Gästezimmer.
Zusätzlichen Stauraum bietet der voll unterkellerte Bereich. Eine Garage gehört ebenfalls zum Objekt und rundet das Angebot komfortabel ab.
Dieses Reihenhaus vereint solides Wohnen, ausreichend Platz und eine angenehme Wohnlage in Garbsen-Berenbostel und bietet eine ideale Grundlage für individuelles Wohnen oder behutsame Modernisierung nach eigenen Vorstellungen.
Solides Reihenhaus mit Garage in ruhiger Lage von Garbsen-Berenbostel
30827 Garbsen
Die vollständige Adresse der Immobilie erhalten Sie vom Anbieter.
Auf Karte anzeigen
Die vollständige Adresse der Immobilie erhalten Sie vom Anbieter.
Finanzierungszertifikat
In nur zwei Minuten zu Ihrem persönlichen Finanzierungszertifkat.
Infos
| Haustyp | Reihenmittelhaus |
|---|---|
| Etagenzahl | 3 |
| Wohnfläche ca. | 148 m2 |
| Nutzfläche | 56 m2 |
| Grundstücksfläche | 181 m2 |
| Zimmer | 6 |
| Schlafzimmer | 5 |
| Badezimmer | 2 |
| Garage/Stellplatz | Garage |
| Anzahl Garage/Stellplatz | 1 |
Kosten
| Kaufpreis |
329.000 € |
|---|---|
| Provision |
11745,30 3,57 % Käuferprovision inkl. MwSt., verdient und fällig mit Beurkundung des notariellen Kaufvertrages. Der Immobilienmakler hat einen provisionspflichtigen Maklervertrag mit dem Verkäufer in gleicher Höhe abgeschlossen. Die Provision ist zu zahlen an Blau Immobilien GmbH, Altenebekener Damm 11, 30173 Hannover |
Finanzierungsrechner:
Kaufpreis:
600.000 €
Eigenkapital:
600.000 €
Monatliche Rate
0 €
Effektiver Jahreszins
0 %
Sollzinsbindung
10 Jahre
Bausubstanz & Energieausweis
| Baujahr | 1976 |
|---|---|
| Objektzustand | Gepflegt |
| Qualität der Austattung | Einfach |
| Heizungsart | Gas-Heizung |
| Wesentliche Energieträger | Gas |
| Energieausweis | liegt vor |
| Energieausweistyp | Bedarfsausweis |
| Energieverbrauchskennwert | 145,2 kWh/(m²*a) |
| Energieeffizienzklasse | E |
145,2
kWh/(m²*a)
Energieeffizienzklasse E
- A+
- A
- B
- C
- D
- E
- F
- G
- H
- 0
- 25
- 50
- 75
- 100
- 125
- 150
- 175
- 200
- 225
- >250
Beschreibung des Objekts
Ausstattung
Die Ausstattung des Hauses ist als einfach und funktional zu beschreiben und entspricht überwiegend dem Baujahr.
Dies bietet Käufern die ideale Gelegenheit, die Immobilie nach eigenen Vorstellungen und individuellen Wünschen zu renovieren und zu modernisieren. Ob zeitgemäße Raumgestaltung, neue Bodenbeläge oder eine moderne technische Ausstattung – hier lassen sich persönliche Wohnideen hervorragend verwirklichen.
Das Haus stellt somit eine solide Grundlage dar, um ein individuelles Zuhause zu schaffen und den Charme der Immobilie mit modernen Elementen zu verbinden. Besonders für Käufer, die Wert auf Gestaltungsspielraum legen, bietet dieses Objekt großes Potenzial.
Lage
Berenbostel, ein beliebter Stadtteil von Garbsen, zeichnet sich durch eine gelungene Kombination aus ruhigem Wohnen und guter Infrastruktur aus. Die Umgebung ist geprägt von gepflegten Wohngebieten, viel Grün und einer angenehmen Nachbarschaft, die besonders bei Familien und Berufspendlern geschätzt wird.
Einkaufsmöglichkeiten für den täglichen Bedarf, Schulen, Kindergärten, Ärzte sowie Freizeit- und Sportangebote befinden sich in unmittelbarer Nähe und sind bequem erreichbar. Darüber hinaus bietet Berenbostel eine sehr gute Anbindung an den öffentlichen Nahverkehr sowie an die Autobahn, wodurch sowohl das Garbsener Stadtzentrum als auch die Landeshauptstadt Hannover schnell zu erreichen sind.
Naherholungsgebiete, Spazier- und Radwege in der Umgebung laden zu Aktivitäten im Freien ein und sorgen für eine hohe Lebensqualität. Insgesamt überzeugt Berenbostel durch seine attraktive Lage, die ruhiges Wohnen mit urbaner Nähe und einer hervorragenden Infrastruktur vereint.
Grundriss
Grundriss EG
>
>
Grundriss 1.OG
>
>
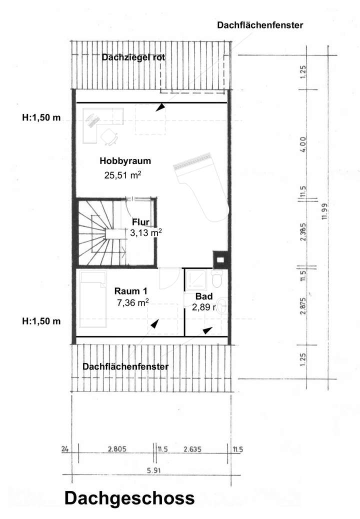
Grundriss DG
>
>
Grundriss Keller
>
>
Adresse
30827 Garbsen
Interessante Orte
Preis- und Lageinformationen
Preistrend für Bestandsimmobilien in Garbsen