Das gepflegte Vierparteienhaus befindet sich in einer ruhigen Sackgasse in Egelsbach, die ausschließlich von Anwohnern genutzt wird. Das im Jahr 1967 errichtete Gebäude wurde im Jahr 2000 umfassend saniert, erweitert und aufgestockt. Die Leitungen im Anbau und Dachgeschoss wurden im Jahr 2000 erneuert, während sie in den übrigen Bereichen dem ursprünglichen Baujahr entsprechen.
Das Haus umfasst vier Wohneinheiten:
- eine großzügige 5-Zimmer-Maisonettewohnung im Souterrain und Erdgeschoss, der der Garten zugeordnet ist,
- eine 1-Zimmer-Wohnung im ersten Obergeschoss,
- eine 3-Zimmer-Wohnung mit großem Balkon im ersten Obergeschoss sowie
- eine 3-Zimmer-Dachgeschosswohnung.
Die Wohnflächen betragen ca. 169 m², 20 m², 84 m² und 69 m².
Im Jahr 2025 erhielt die Immobilie eine neue Heizung in Form einer modernen Viessmann-Wärmepumpe. Die Heizung wird im Contracting betrieben. Die bestehende Gasheizung ist weiterhin funktionsfähig und kann bei Bedarf zugeschaltet werden.
Das Haus ist mit Eichenparkett, doppelt verglasten Fenstern und Rollläden ausgestattet. Großzügige Terrassen mit Bangkirai-Holzbelag bieten zusätzlichen Wohnkomfort. Zwei Außenstellplätze sowie eine Garage stehen zur Verfügung, wobei die Garage groß genug ist, um zwei kleinere Pkw unterzubringen.
Hochwertiges Vierparteienhaus in ruhiger Lage
63329 Egelsbach
Die vollständige Adresse der Immobilie erhalten Sie vom Anbieter.
Auf Karte anzeigen
Die vollständige Adresse der Immobilie erhalten Sie vom Anbieter.
Finanzierungszertifikat
In nur zwei Minuten zu Ihrem persönlichen Finanzierungszertifkat.
Infos
| Haustyp | Mehrfamilienhaus |
|---|---|
| Etagenzahl | 3 |
| Wohnfläche ca. | 341 m2 |
| Grundstücksfläche | 587 m2 |
| Zimmer | 11 |
| Anzahl Garage/Stellplatz | 3 |
Kosten
| Kaufpreis |
850.000 € |
|---|---|
| Provision |
5,95 % inkl. MwSt. Die Provision in Höhe von 5,95 % versteht sich inkl. MwSt. und wird fällig bei Unterzeichnung des Kaufvertrages. Zahlbar durch den Käufer. |
| Mieteinnahmen | 3.900 € |
Finanzierungsrechner:
Kaufpreis:
600.000 €
Eigenkapital:
600.000 €
Monatliche Rate
0 €
Effektiver Jahreszins
0 %
Sollzinsbindung
10 Jahre
Bausubstanz & Energieausweis
| Baujahr | 1967 |
|---|---|
| Letzte Sanierung | 2000 |
| Objektzustand | Modernisiert |
| Qualität der Austattung | Gehoben |
| Heizungsart | Wärmepumpe |
| Wesentliche Energieträger | Strom |
| Energieausweis | liegt vor |
| Energieausweistyp | Bedarfsausweis |
| Energieverbrauchskennwert | 42,5 kWh/(m²*a) |
Beschreibung des Objekts
Ausstattung
- Eichenparkett
- Wärmepumpe (Contracting)
- Balkone
- Großer Garten für die EG Wohnung
- Balkone in drei von vier Wohnungen
- Einbauküchen
- Zweifachverglasung
- Rollläden
- Raf-Stores
- Teilweise in Poroton gemauert
Lage
Die Immobilie liegt in einer ruhigen, wenig befahrenen Sackgasse in Egelsbach – eine angenehme Wohnlage, die fast ausschließlich von Anwohnern genutzt wird. In unmittelbarer Nähe befinden sich Grünflächen und fußläufig erreichbare Einkaufsmöglichkeiten, Kindergärten sowie Schulen. Die Anbindung an den öffentlichen Nahverkehr (S-Bahn) und die Nähe zur Autobahn ermöglichen zugleich eine schnelle Erreichbarkeit von Frankfurt, Darmstadt und umliegenden Städten.
Sonstige Angaben
Das Mehrfamilienhaus ist gemäß der vorliegenden Baugenehmigung lediglich als Zweiparteienhaus genehmigt. Nach der genehmigten Planung bilden die 3-Zimmer-Wohnung im 1. Obergeschoss, die 1-Zimmer-Wohnung im 1. Obergeschoss sowie die Wohnung im Dachgeschoss eine baulich verbundene Einheit, die durch eine interne Treppe miteinander verbunden ist.
Die Wohnung im Erdgeschoss und Souterrain entspricht in ihrer Ausführung und Nutzung der genehmigten Bauplanung.
Somit besteht aus baurechtlicher Sicht eine Nutzung als Zweiparteienhaus, auch wenn das Gebäude seit der Sanierung im Jahr 2000 in vier separate Wohneinheiten aufgeteilt ist.
Alle Angaben stammen vom Eigentümer. Es gibt keine Gewähr für die Vollständigkeit und Richtigkeit der Angaben. Es gelten unsere AGB.
Grundriss
Grundriss Erdgeschoss
>
>
Grundriss Obergeschoss
>
>
Grundriss Dachgeschoss
>
>
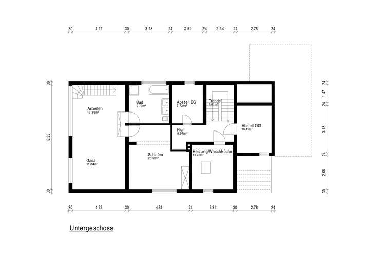
Grundriss Untergeschoss
>
>
Adresse
63329 Egelsbach
Interessante Orte
Preis- und Lageinformationen
Preistrend für Bestandsimmobilien in Egelsbach