Willkommen in Ihrem neuen Zuhause in Sasel, wo Wohnträume Wirklichkeit werden. Auf einem charmanten Grundstück von ca. 489 m² erwartet Sie ein exklusives Einfamilienhaus, das durch seine hervorragende Lage und ein durchdachtes Raumkonzept besticht.
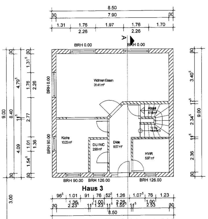
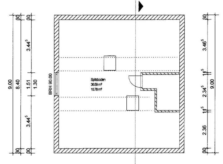
Das Haus bietet Ihnen eine Wohnfläche von 132m². Beim Betreten dieses Hauses werden Sie von der Wärme und dem einladenden Charakter des Erdgeschosses begrüßt. Der großzügige Wohn- und Essbereich bildet das Herzstück des Hauses und bietet direkten Zugang zu einer gemütlichen Terrasse sowie einem liebevoll angelegten Garten. Diese Außenbereiche laden zum Verweilen und Entspannen ein und bieten gleichzeitig einen perfekten Ort für gesellige Stunden im Freien. Der Spitzboden kann auf Wunsch zum Wohnraum ausgebaut werden.
Bitte beachten Sie, dass Malerarbeiten, die Errichtung einer Gaube sowie die Gestaltung der Außenanlage nicht im Kaufpreis enthalten sind. Diese Leistungen können jedoch auf Wunsch durch unsere qualifizierten Subunternehmer realisiert werden.
Im Preis des Hauses sind die Standardausstattung des Badezimmers, Innentüren sowie Fenster bereits enthalten.
Die Grundrisse können selbstverständlich auf Ihre Wünsche angepasst werden!
KFW 55 Haus
Luftwärmepumpe
Fußbodenheizung
KFW 40 und 40+ gegen Aufpreis möglich
Gemeinsam Träume verwirklichen mit unseren vollmassiven Qualitätshäusern.
massiv - Stein auf Stein
Sie wollen nicht länger Miete zahlen?
Sie wollen mehr Raum für Ihre Familie?
Sie wollen einen schönen Garten?
Dieses Einfamilienhaus im TOP-Energiestand erfüllt alle Anforderungen, die Sie an Ihr NEUES ZUHAUSE stellen.
Wir kümmern uns um:
-Ihr Traumhaus
-Ihr Grundstück
-Ihre Finanzierung
+++ Neubauvorhaben +++ Wunderschönes Einfamilienhaus in Sasel +++
22391 Hamburg
Die vollständige Adresse der Immobilie erhalten Sie vom Anbieter.
Auf Karte anzeigen
Die vollständige Adresse der Immobilie erhalten Sie vom Anbieter.
Finanzierungszertifikat
In nur zwei Minuten zu Ihrem persönlichen Finanzierungszertifkat.
Infos
| Wohnfläche ca. | 132 m2 |
|---|---|
| Grundstücksfläche | 489 m2 |
| Zimmer | 6 |
| Badezimmer | 2 |
Kosten
| Kaufpreis |
618.900 € |
|---|---|
| Provision |
3,15 3,15% inkl. MwSt. auf den Grundstückskaufpreis |
Finanzierungsrechner:
Kaufpreis:
600.000 €
Eigenkapital:
600.000 €
Monatliche Rate
0 €
Effektiver Jahreszins
0 %
Sollzinsbindung
10 Jahre
Bausubstanz & Energieausweis
| Heizungsart | Wärmepumpe |
|---|
Beschreibung des Objekts
Lage
Die Immobilie befindet sich in einer ruhigen und begehrten Wohnlage im Hamburger Norden, die durch ihre grüne Umgebung und hohe Lebensqualität überzeugt. Das Umfeld ist geprägt von gepflegten Einfamilienhäusern, viel Natur und einer angenehmen, familienfreundlichen Nachbarschaft.
Zahlreiche Grünflächen, Parks und Naherholungsgebiete in der Umgebung laden zu Spaziergängen, sportlichen Aktivitäten und erholsamen Stunden im Freien ein. Gleichzeitig profitieren Sie von einer guten Infrastruktur: Einkaufsmöglichkeiten für den täglichen Bedarf, Ärzte, Schulen und Kindergärten sind bequem erreichbar.
Die Verkehrsanbindung ist sehr gut. Öffentliche Verkehrsmittel ermöglichen eine schnelle Verbindung in die Hamburger Innenstadt sowie in die umliegenden Stadtteile. Auch mit dem Auto sind wichtige Verkehrsachsen zügig erreichbar, sodass Berufspendler ebenso wie Familien von der Lage profitieren.
Insgesamt bietet diese Wohnlage eine gelungene Kombination aus naturnahem Wohnen und urbaner Erreichbarkeit – ideal für alle, die Ruhe und Wohnkomfort schätzen, ohne auf die Vorteile der Großstadt verzichten zu wollen.
Sonstige Angaben
Gute Gründe die für uns sprechen:
= wirtschaftlich gesundes langjähiges Unternehmen
= gute alte Bau- und Handwerkskunst
= massiv - Stein auf Stein
= Festpreisgarantie für das Haus
= Bauzeitgarantie
= freie individuelle Planung Ihres Traumhauses möglich
= fachmännische Betreuung vom Kauf bis zum Einzug
= Begleitung bei allen Anträgen rund um Ihren Bau
= Beantragung aller Fördermöglichkeiten
= Schlüsselfertig, massiv, Stein auf Stein
= Verwendung von nur deutschen Markenprodukten
= KFW 55 und KFW 40 Häuser
Planen Sie mit uns Ihre Rente aus Stein.
Bodenbeläge sowie Maler- / Tapezierarbeiten sind Eigenleistung.
Hauspreis mit Grundstück 618.900,00 €
zzgl. Baunebenkosten ca. 92.800,00 €
zzgl. Maler-, Bodenbelags-, Fliesen- und Spachtelarbeiten
zzgl. Kaufnebenkosten
Vereinbaren Sie jetzt Ihr persönliches Informationsgespräch.
Reinhard Kunz 0151 405 412 95
Büro 0451 3008 996
-informativ - unverbindlich - kostenlos-
Wir freuen uns auf Ihr Kommen!
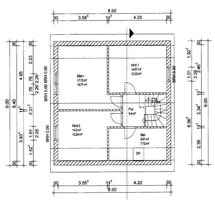
Grundriss
Erdgeschoss
>
>
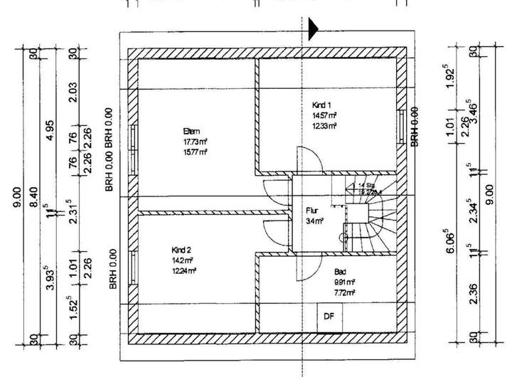
Obergeschoss
>
>
Spitzboden
>
>
Adresse
22391 Hamburg
Interessante Orte
Preis- und Lageinformationen
Preistrend für Bestandsimmobilien in Sasel