WELCOME HOME. WELCOME TO YOUR FUTURE.
Dein Zuhause ist mehr als vier Wände – es ist dein Rückzugsort, dein Investment, dein neuer Lebensabschnitt.
White&Black macht Wohneigentum bezahlbar, modern und flexibel.
Jetzt ist der richtige Moment, um anzukommen.
Your Home Needs a Place – Kein Grundstück? Kein Problem!
04655 Kohren-Sahlis
Die vollständige Adresse der Immobilie erhalten Sie vom Anbieter.
Auf Karte anzeigen
Die vollständige Adresse der Immobilie erhalten Sie vom Anbieter.
Finanzierungszertifikat
In nur zwei Minuten zu Ihrem persönlichen Finanzierungszertifkat.
Infos
| Haustyp | Einfamilienhaus |
|---|---|
| Wohnfläche ca. | 148 m2 |
| Nutzfläche | 0 m2 |
| Grundstücksfläche | 746 m2 |
| Zimmer | 4 |
| Schlafzimmer | 3 |
| Badezimmer | 1 |
| Anzahl Garage/Stellplatz | 0 |
Kosten
| Kaufpreis |
184.442 € |
|---|---|
| Provision | Nein |
Finanzierungsrechner:
Kaufpreis:
600.000 €
Eigenkapital:
600.000 €
Monatliche Rate
0 €
Effektiver Jahreszins
0 %
Sollzinsbindung
10 Jahre
Bausubstanz & Energieausweis
| Baujahr | 2026 |
|---|---|
| Bauphase | Haus in Planung (projektiert) |
| Qualität der Austattung | Gehoben |
| Heizungsart | Wärmepumpe |
Beschreibung des Objekts
Ausstattung
THINK WHITE – Do it yourself.
- Fertige Gebäudehülle – du entscheidest über den Innenausbau
- Maximale Individualität – für kreative Köpfe & Macher
- Ideal für Eigenleistung – handwerkliches Geschick spart bares Geld
- Optimierte Grundrisse – smarte Wohnkonzepte für flexible Gestaltung
- Hochwertige Bauweise – modern, nachhaltig & energieeffizient
- Zugang zu staatlichen Förderprogrammen – clever finanzieren & sparen
Für alle, die ihr Zuhause selbst gestalten wollen!
Lage
Kohren-Sahlis ist eine malerische Kleinstadt im Landkreis Leipzig im Bundesland Sachsen, Deutschland. Die Stadt ist bekannt für ihre reiche Geschichte und ihr kulturelles Erbe, das bis ins Mittelalter zurückreicht. Gelegen in einer leicht hügeligen Landschaft, ist Kohren-Sahlis von fruchtbaren Feldern, Wäldern und kleinen Bächen umgeben.
Das Stadtbild wird von gut erhaltenen Fachwerkhäusern und historischen Gebäuden geprägt, die das reiche Erbe der Stadt widerspiegeln. Die beiden Ortsteile Kohren und Sahlis bieten jeweils ihren eigenen Charme und Geschichte, die sich in den engen Gassen und malerischen Plätzen widerspiegeln.
Die Lage von Kohren-Sahlis in der Nähe des Kohrener Landes, einer Region mit zahlreichen Teichen und Naturschutzgebieten, macht sie zu einem idealen Ausgangspunkt für Naturliebhaber und Outdoor-Enthusiasten. Wanderwege und Radwege durchziehen die Umgebung und laden zu Erkundungen ein.
Die Stadt ist auch für ihr kulturelles Leben bekannt, mit verschiedenen Veranstaltungen, Festen und kulturellen Einrichtungen, die das ganze Jahr über stattfinden. Kohren-Sahlis strahlt eine entspannte Atmosphäre aus und bietet seinen Einwohnern und Besuchern eine gelungene Mischung aus Geschichte, Natur und Gemeinschaft.
Sonstige Angaben
Vereinbare einen persönlichen Beratungstermin, um über Deinen Haustraum und das angebotene Objekt zu sprechen.
Bitte beachte, dass die dargestellten Bilder und Grundrisse nur beispielhaft sind und unter Umständen Sonderbauteile enthalten, die nicht im angegebenen Preis enthalten sind.
Hab außerdem bitte Verständnis dafür, dass weitere Details zum angebotenen Grundstück erst nach einem persönlichen Gespräch bekanntgegeben werden und nur vollständige Anfragen bearbeitet werden können.
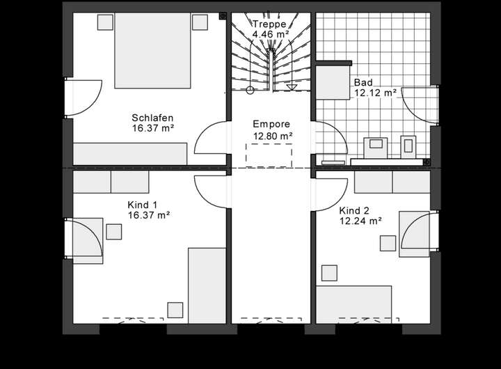
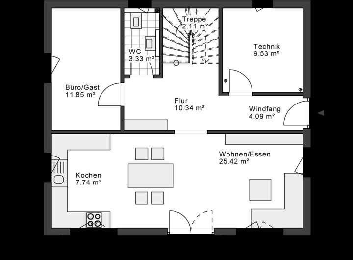
Grundriss
Grundriss EG
>
>
Grundriss OG
>
>
Adresse
04655 Kohren-Sahlis
Interessante Orte
Preis- und Lageinformationen
Preistrend für Bestandsimmobilien in Kohren-Sahlis