Zuhause ankommen: Luce ist mehr als ein Familienhaus - denn hier trifft repräsentative Eleganz auf lichtdurchflutete Räume. Über den angrenzenden Carport gelangen Sie in Ihr über 190 Quadratmeter großes Traumhaus. Ihre Einkäufe können Sie direkt in den angrenzenden Hauswirtschaftsraum oder in der Speisekammer, die direkt an die Küche angrenzt, abstellen.
Highlight im Erdgeschoss ist der fast 47 Quadratmeter große, offene Wohn- und Essbereich. Dieser wird durch den über beide Etagen ragenden Wintergarten lichtdurchflutet - und das zu jeder Jahreszeit. Das Erdgeschoss wird komplettiert durch ein Home-Office, das entspanntes Arbeiten von Zuhause möglich macht, und ein Gäste-WC mit Dusche.
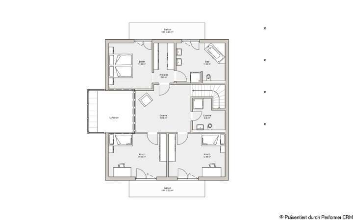
Selbst vom Dachgeschoss aus können Sie über die Galerie durch den Wintergarten in den heimischen Garten blicken. Die beiden Kinderzimmer mit jeweils 17 Quadratmetern verfügen über ein eigenes Badezimmer mit Dusche. Das Eltern-Schlafzimmer ist mit einer Ankleide und einem Wellness-Badezimmer mit Badewanne und Dusche ausgestattet. Alle Schlafzimmer verfügen über einen direkten Zugang auf einen der beiden Balkone. Luce: Symbiose von Licht und Freiraum!
Dieses Haus wird nach Ihren individuellen Wünschen geplant und ausgestattet!
Stil & Komfort
04552 Borna
Die vollständige Adresse der Immobilie erhalten Sie vom Anbieter.
Auf Karte anzeigen
Die vollständige Adresse der Immobilie erhalten Sie vom Anbieter.
Finanzierungszertifikat
In nur zwei Minuten zu Ihrem persönlichen Finanzierungszertifkat.
Infos
| Haustyp | Einfamilienhaus |
|---|---|
| Wohnfläche ca. | 192 m2 |
| Grundstücksfläche | 1.064 m2 |
| Zimmer | 5 |
| Schlafzimmer | 4 |
| Badezimmer | 1 |
| Anzahl Garage/Stellplatz | 2 |
Kosten
| Kaufpreis |
619.360 € |
|---|---|
| Provision | Nein |
Finanzierungsrechner:
Kaufpreis:
600.000 €
Eigenkapital:
600.000 €
Monatliche Rate
0 €
Effektiver Jahreszins
0 %
Sollzinsbindung
10 Jahre
Bausubstanz & Energieausweis
| Baujahr | 2026 |
|---|---|
| Bauphase | Haus in Planung (projektiert) |
| Objektzustand | Erstbezug |
| Qualität der Austattung | Gehoben |
| Heizungsart | Wärmepumpe |
| Wesentliche Energieträger | Strom |
| Energieausweistyp | Bedarfsausweis |
| Energieverbrauchskennwert | 18,4 kWh/(m²*a) |
| Energieeffizienzklasse | A+ |
18,4
kWh/(m²*a)
Energieeffizienzklasse A+
- A+
- A
- B
- C
- D
- E
- F
- G
- H
- 0
- 25
- 50
- 75
- 100
- 125
- 150
- 175
- 200
- 225
- >250
Beschreibung des Objekts
Ausstattung
5 Zimmer, offene Küche, Diele, 2 x Dusche, Galerie, Bad, Ankleide, Hauswirtschaftsraum, SPK, 2 Balkone, Carport
Das gezeigte Traumhaus im Überblick:
+ Schlüsselfertiges Massivhaus im Sinne der Ausstattungsbeschreibung "Edition 25"
+ Zukunftsorientierte Energieausstattung in Form einer Luft-Wasser-Wärmepumpe und Fußbodenheizung sowie einer kontrollierten Wohnraumlüftung mit Wärmerückgewinnung
+ Inklusive Bodenplatte
Beste Markenausstattung in jedem Kern-Haus:
+ Zimmermannsmäßiger Dachstuhl aus Konstruktionsvollholz
+ Dacheindeckung mit Betondachsteinen von Braas
+ Hochwertiger Kunstharz-Außenputz für eine langlebige Fassade
+ Vollständige Badausstattung von Villeroy & Boch mit Badewanne und flacher Duschwanne sowie einer Echtglasduschkabine
+ Fliesen von Villeroy & Boch in Bad und WC
+ Haustür mit 5-fach-Sicherheitsverriegelung
+ Erstklassige Innentüren der Marke Herholz
+ Fenster mit 3-Scheiben-Wärmeschutzverglasung und Rollläden
+ Stahl-Holz-Treppe mit individueller Farbgestaltungsmöglichkeit
+ Vollständige und überdurchschnittliche Elektroausstattung inklusive Klingelanlage und Netzwerkdosen
+ Rauchmelder für Ihre Sicherheit
+ Alle Leistungen aus einer Hand
+ Alle Planungs- und Architektenleistungen
+ Einsatz regionaler Handwerksbetriebe
+ Baubegleitende 5-Phasen-TÜV-Prüfung und Blower-Door-Test
+ Individuelle Anpassung auf Ihre Bedürfnisse
+ Auf Wunsch mit Keller erhältlich
+ Auf Wunsch mit weiteren Energietechniken erhältlich
Lage
- gelegen in Borna im südlichen Teil der Leipziger Tieflandsbucht, nahe dem Kohrener Land
- Borna ist frastrukturell bestens erschlossen
- in der Nähe zahlreiche Ärzte, Apotheken, Kindergärten, Schulen und eine Vielzahl von Einkaufmöglichkeiten
- Innenstadt Leipzig erreichen Sie durch die S-Bahn in weniger als 25 Minuten
Sonstige Angaben
Ist dies schon Ihr Traumhaus? Oder dürfen wir ein individuelles Haus für Sie planen?
Ich freue mich, Ihre Wünsche zu erfahren und Ihre Fragen zu beantworten.
Sie erreichen mich unter 0341-2527132
Ihre Grit Hohberg
Kern-Haus
Seit 1994 realisieren wir individuelle Häuser rund um Leipzig und Halle. Über 1.900 zufriedene Bauherren in der Region sprechen für sich.
Unser engagiertes Team plant und baut massive Häuser und begleitet Sie mit umfassendem Service.
+ Eigener Architekt
+ Preisgarantie
+ Verbindliche Bauzeit
+ 5-Phasen-TÜV-Prüfung
Der in dieser Anzeige gezeigte Preis versteht sich inklusive Grundstück und exklusive der Baunebenkosten.
Grundriss
Grundriss Erdgeschoss
>
>
Grundriss Dachgeschoss
>
>
Adresse
04552 Borna
Interessante Orte
Preis- und Lageinformationen
Preistrend für Bestandsimmobilien in Borna