High end Designer-Villa – Pure Exzellenz im Rhein-Main-Gebiet. Eine Adresse. Ein Statement. Ein Lebensstil.
Diese außergewöhnliche Architektenvilla ist kein Haus – sie ist ein Manifest modernen Luxuslebens.
Diese Villa in absolut privater Premiumlage eröffnet Ihnen ein Wohnerlebnis auf Weltklasse-Niveau – eine seltene Ikone im Rhein-Main-Gebiet.
Das Herzstück der Villa:
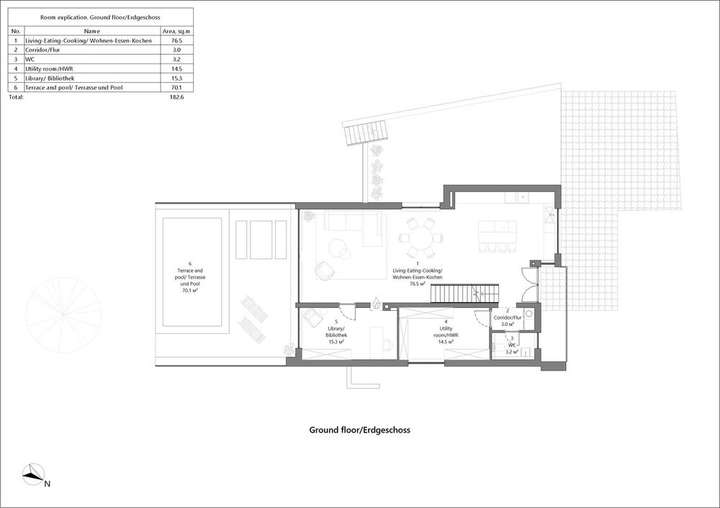
Ein über 80 m² großer, offen inszenierter Wohn- und Essbereich, gekrönt von einer monumentalen, 5 Meter hohen Glasfront (elektrisch betrieben Hebe-Schiebetür mit komfortabler Soft-Motion-Technologie)
Innen und Außen verschmelzen zu einem spektakulären Raumgefühl aus Licht, Weite und Eleganz.
Der Blick:
→ Ein kunstvoll gestalteter Garten
→ Ein beheizter Designer-Pool
→ Absolute Ruhe & Privatsphäre
Großzügigkeit neu definiert – Raum für höchste Ansprüche
11 perfekt inszenierte Räume, durchdacht, luxuriös, flexibel:
→ 3 exklusive Designer-Bäder
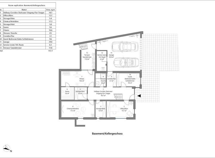
→ Privater Fitness- & Saunabereich
→ Eigenes Heimkino mit Dolby Atmos mit Technik auf Cinema Niveau
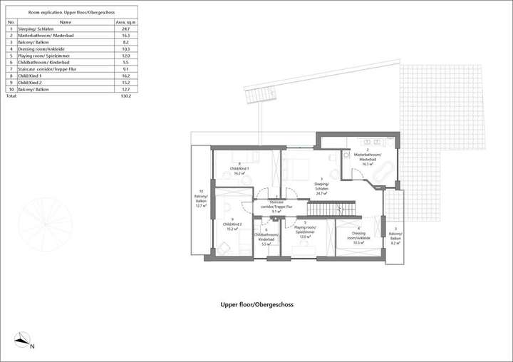
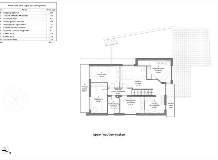
→ 3 großzügige Kinderzimmer
→ 2 repräsentative Home-Office- / Bürobereiche
Weitere Räume für Gäste, Personal oder individuelle Lebenskonzepte
Ein Zuhause, das sich Ihrem Lebensstil anpasst – nicht umgekehrt.
Private Parents’ Area – Ihre persönliche Luxus-Suite (ca. 55 m²)
Ein Rückzugsort auf Hotel-Suite-Niveau:
→ Großzügiges Schlafzimmer
→ Elegantes Masterbad en suite (17m2)
→ Außergewöhnlich große, begehbare Ankleide
Wellness & Spa – Luxus für jeden Tag
Ihr privates Spa – jederzeit verfügbar:
→ Beheizter Pool mit dezenter Premium Abdeckung und Gegenstromanlage
→ Private Sauna für ganzjährige Erholung
Penthouse-Lifestyle – Leben über den Dächern. Ein architektonisches Highlight:
Die ca. 40 m² große Dachterrasse mit spektakulärem 360-Grad-Panoramablick und Aussichten auf:
→ Taunus & Feldberg
→ Die Weite der Wetterau
→ Atemberaubende Sonnenuntergänge
... und vieles mehr
Ein Ort für exklusive Events, stille Momente und große Emotionen.
Ein Statement! Neubau-Luxusvilla · Pool · Heimkino · Sauna· KNX-Smart Living · Architektur
61118 Bad Vilbel
Die vollständige Adresse der Immobilie erhalten Sie vom Anbieter.
Auf Karte anzeigen
Die vollständige Adresse der Immobilie erhalten Sie vom Anbieter.
Finanzierungszertifikat
In nur zwei Minuten zu Ihrem persönlichen Finanzierungszertifkat.
Infos
| Haustyp | Einfamilienhaus |
|---|---|
| Wohnfläche ca. | 385 m2 |
| Grundstücksfläche | 643 m2 |
| Bezugsfrei ab | 1.6.2026 |
| Zimmer | 11 |
| Schlafzimmer | 5 |
| Badezimmer | 3 |
| Garage/Stellplatz | Garage |
| Anzahl Garage/Stellplatz | 2 |
Kosten
| Kaufpreis |
0 € |
|---|---|
| Provision | Nein |
Finanzierungsrechner:
Kaufpreis:
600.000 €
Eigenkapital:
600.000 €
Monatliche Rate
0 €
Effektiver Jahreszins
0 %
Sollzinsbindung
10 Jahre
Bausubstanz & Energieausweis
| Baujahr | 2023 |
|---|---|
| Letzte Sanierung | 2025 |
| Bauphase | Haus fertig gestellt |
| Objektzustand | Neuwertig |
| Qualität der Austattung | Luxus |
| Heizungsart | Fußbodenheizung |
| Wesentliche Energieträger | Strom |
| Energieausweis | liegt vor |
| Energieausweistyp | Bedarfsausweis |
| Energieverbrauchskennwert | 22,3 kWh/(m²*a) |
| Energieeffizienzklasse | A+ |
22,3
kWh/(m²*a)
Energieeffizienzklasse A+
- A+
- A
- B
- C
- D
- E
- F
- G
- H
- 0
- 25
- 50
- 75
- 100
- 125
- 150
- 175
- 200
- 225
- >250
Beschreibung des Objekts
Ausstattung
Key facts:
- Wohnfläche von 385m2; Grundstücksgröße von 643m2; Fertigstellung: Juni 2023
- beheizter Pool samt Gegenstrommanlage und dezenter Rolladenabdeckung & Außendusche
- Luxus Outdoorküche mit BBQ (Gas und Kohle / Keramik Grills), Spüle, Getränkekühlschrank usw.
- Designer Leuchten aus ITA (u.a. Firma Artemide und Tom Dixon)
- Sauna ud Panorama Echtholz Kamin
- KNX Smart Home System für die gesamte Steuerung von Heizung, Klima bis hin zu Türen, Alarmanlage und Steckdosen
- Wandbündige Türen und Sockelleisten („clean Look“)
- Einbauschränke (Fa Cabinet) im gesamten Haus, Deckenhöhen bis 3,30m
- fugenloser Designer Boden aus NL
- eine 40m2 Dachterasse mit grandiosen uverbaubarem Blick auf Taunus & Feldberg.
Lage
Die Villa befindet sich in exzellenter Wohnlage von Bad Vilbel-Niederberg, einem der begehrtesten und ruhigsten Wohngebiete im Rhein-Main-Gebiet.
Die erhöhte Lage bietet Weitblick Richtung Taunus und ein hohes Maß an Privatsphäre. Gleichzeitig genießen Sie eine ideale Balance aus Ruhe, Natur und urbaner Nähe.
Bad Vilbel überzeugt durch seine hervorragende Infrastruktur:
→ Schnelle Anbindung an Frankfurt am Main (Innenstadt, Bankenviertel, Flughafen)
→ S-Bahn-Anschluss, Busverbindungen sowie sehr gute Autobahnanbindung (A661 / A5)
→ Hochwertige Schulen (überregional bekannte Europäische Schule) , Kitas in unmittelbarer Umgebung
→ Vielfältige Einkaufsmöglichkeiten, Restaurants und medizinische Versorgung fussläufig erreichbar.
Sonstige Angaben
Diese Villa ist kein Immobilienangebot. Sie ist eine einmalige Gelegenheit, ein architektonisches Statement, ein Lebensstil für Kenner. Für Menschen, die keine Kompromisse eingehen, die Diskretion schätzen, und die das Besondere als Standard betrachten.
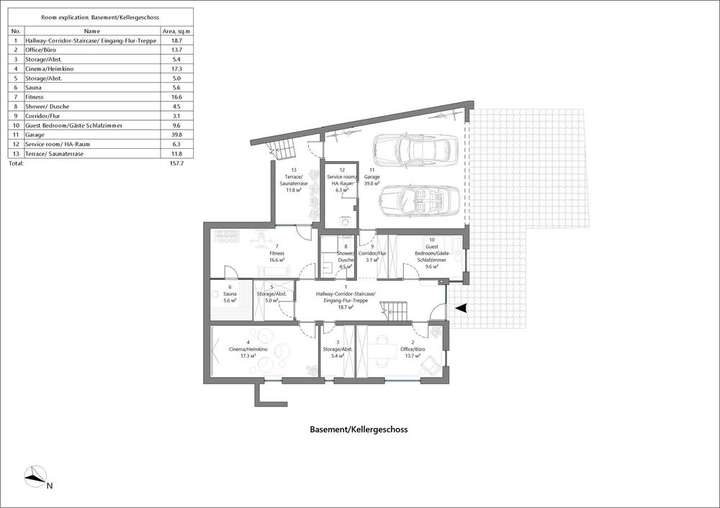
Grundriss
Grundriss EG
>
>
Grundriss EG
>
>
Grundriss OG
>
>
Grundriss DG
>
>
Adresse
61118 Bad Vilbel
Interessante Orte
Preis- und Lageinformationen
Preistrend für Bestandsimmobilien in Bad Vilbel