Aufteilung:
Ursprünglich als Einfamilienhaus konzipiert, präsentiert sich dieses denkmalgeschützte Haus aus dem Baujahr 1873 heute in einer flexiblen Nutzung: Die großzügige Erdgeschosswohnung mit ca. 97 m² Wohnfläche umfasst drei helle Zimmer, eine separate Küche und ein Bad – ideal als Hauptwohnung. Im Obergeschoss befinden sich zwei möblierte Apartments mit ca. 41 m² und 45 m² Wohnfläche, die separat genutzt werden können und bei Bedarf wieder zu einer zusammenhängenden Einheit zurückgebaut werden können. Der Souterrain-Keller bietet durch Tageslicht und ca. 77 m² Nutzfläche vielfältige Nutzungsmöglichkeiten, etwa als Hobbyraum oder Arbeitsbereich.
Das Obergeschoss wird im Frühjahr 2026 bezugsfrei, da die Apartments derzeit über Zeitmietverträge vermietet sind.
Ausstattung:
Alle Räume sind mit hochwertigem Parkettboden ausgestattet und profitieren von größenteils ca. 3,5 m hohen Decken, die ein besonders großzügiges und luftiges Wohngefühl schaffen. Die separate Küche der Hauptwohnung ist funktional gestaltet und bietet direkten Zugang zur überdachten Terrasse. Das Tageslichtbad verfügt über eine Dusche und eine Badewanne. Für die Wärmeversorgung sorgen zwei Gasbrennwertthermen – jeweils eine im Hochparterre und im Dachgeschoss (Baujahre 2015 und 2019). Holzfenster mit Isolierverglasung tragen zu einer soliden energetischen Ausstattung bei. Die Apartments im Obergeschoss verfügen jeweils über ein eigenes Bad und eine Einbauküche.
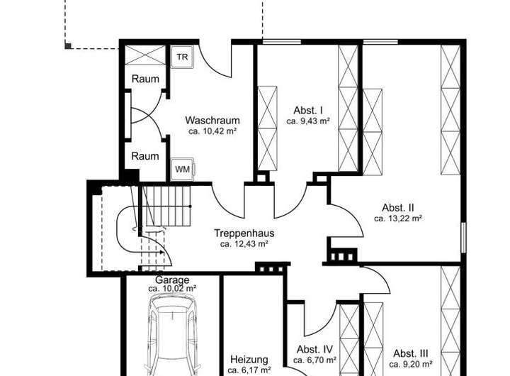
Der Souterrain-Keller bietet durch Tageslicht und ca. 77 m² Nutzfläche vielfältige Nutzungsmöglichkeiten, etwa als Hobbyraum oder Arbeitsbereich.
Die Garage ist bauartbedingt für kleinere Fahrzeuge geeignet; ein zusätzlicher Stellplatz direkt davor ergänzt das Angebot.
Außenanlage & Garten:
Der Außenbereich überzeugt mit gepflegter Eleganz: der klar strukturierte Vorgarten mit formgeschnittenen Gehölzen, Beeten und klassischem Klinkerweg unterstreicht den hochwertigen Gesamteindruck des Hauses.
Der rückwärtige Garten ist ein echtes Highlight – großzügig, liebevoll angelegt, stimmungsvoll beleuchtet und weitgehend sichtbar geschützt. Hohe Hecken, gewachsener Baumbestand und dichte Randbepflanzung schaffen Privatsphäre. Ein Grundwasserbrunnen und ein praktischer Fahrradunterstand runden das Angebot ab.
Die große, überdachte Terrasse mit direktem Zugang in den Garten lädt zu entspannten Stunden im Grünen ein. Das komplett eingefriedete Grundstück verfügt seitlich über eine abschließbare, hohe Pforte, und ein witterungsgeschützter Zugang zum Keller sorgt für zusätzlichen Komfort.
Exklusives Denkmaljuwel: Oldenburger Hundehütte im Ziegelhofviertel mit traumhaftem Garten
26121 Oldenburg (Oldenburg)
Die vollständige Adresse der Immobilie erhalten Sie vom Anbieter.
Auf Karte anzeigen
Die vollständige Adresse der Immobilie erhalten Sie vom Anbieter.
Finanzierungszertifikat
In nur zwei Minuten zu Ihrem persönlichen Finanzierungszertifkat.
Infos
| Wohnfläche ca. | 190 m2 |
|---|---|
| Nutzfläche | 77 m2 |
| Grundstücksfläche | 561 m2 |
| Bezugsfrei ab | Verkauf ab September 2026 |
| Zimmer | 5,5 |
| Badezimmer | 3 |
| Garage/Stellplatz | Garage |
Kosten
| Kaufpreis |
1.290.000 € |
|---|---|
| Provision |
3,57 % inkl. MwSt. vom Kaufpreis Provisionspflichtig für den Käufer. Ferner sind wir als Doppelmakler tätig. Unsere Objektangaben basieren auf den uns erteilten Informationen. Eine Haftung für die Richtigkeit und Vollständigkeit können wir deshalb nicht übernehmen. |
Finanzierungsrechner:
Kaufpreis:
600.000 €
Eigenkapital:
600.000 €
Monatliche Rate
0 €
Effektiver Jahreszins
0 %
Sollzinsbindung
10 Jahre
Bausubstanz & Energieausweis
| Baujahr | unbekannt |
|---|---|
| Denkmalschutzobjekt | Ja |
| Objektzustand | Gepflegt |
| Heizungsart | Gas-Heizung |
| Energieausweis | laut Gesetz nicht erforderlich |
Ausstattung
Lage
Dieses denkmalgeschützte Haus im Stil der "Oldenburger Hundehütte" vereint historischen Charme mit modernem Wohnkomfort. Die symmetrische Fassadengliederung, das markante Satteldach und die liebevoll gestalteten Giebelfenster verleihen dem Gebäude eine unverwechselbare Ausstrahlung.
Die Lage besticht durch eine ruhige, grüne Wohnumgebung, die von alten Bäumen und gepflegten Straßen geprägt ist. Gleichzeitig profitieren die Bewohner von der Nähe zu Parks und Spazierwegen, die zu entspannten Momenten an der frischen Luft einladen. Die Oldenburger Fußgängerzone, Einkaufsmöglichkeiten, Cafés und kulturelle Angebote sind bequem fußläufig erreichbar, ebenso wie die Anbindung an den öffentlichen Nahverkehr – eine perfekte Kombination aus Stadtnähe und naturnahem Wohngefühl.
Das Haus ist ideal für alle, die das Flair historischer Architektur schätzen und zugleich Wert auf eine lebendige, gut erschlossene Nachbarschaft legen.
Sonstige Angaben
Bitte beachten Sie, dass der Erwerb des Hauses frühestens ab September 2026 erfolgen kann.
Dieses Objekt ist denkmalgeschützt, weshalb kein Energieausweis benötigt wird.
Gerne stehen wir Ihnen in einem persönlichen Gespräch zur Verfügung.
Ihre Ansprechpartneri für Fragen und weitere Informationen in unserem Hause ist
Frau Claudia Bahlmann, c.bahlmann@robertcspies.de oder 0441-972395-14 / 0175-6644687
Robert C. Spies Immobilien GmbH & Co. KG Oldenburg, Kleine Kirchenstraße 7 in 26122 Oldenburg
Grundriss
Terrasse
>
>
Aufteilung EG
>
>
Aufteilung DG
>
>
Aufteilung KG
>
>
Adresse
26121 Oldenburg (Oldenburg)
Interessante Orte
Preis- und Lageinformationen
Preistrend für Bestandsimmobilien in Innenstadt