Objektnr: 1064412
Dieses Haus richtet sich an Käufer, die Raum, Ruhe und Entwicklungspotenzial schätzen und kein fertiges Neubauprodukt erwarten. Mit rund 210 m² Wohnfläche, einem großzügigen Grundstück und einer gewachsenen Lage im Hamburger Süden eignet sich die Immobilie besonders für Best Ager, Patchwork-Familien oder Selbstständige, die ihr Zuhause an eine neue Lebensphase anpassen möchten.
Das Gebäude stammt aus dem Jahr 1978 und befindet sich in einem soliden, gepflegten Zustand mit Modernisierungen aus 2008. Gleichzeitig bietet es bewusst Gestaltungsspielraum für individuelle Weiterentwicklung.
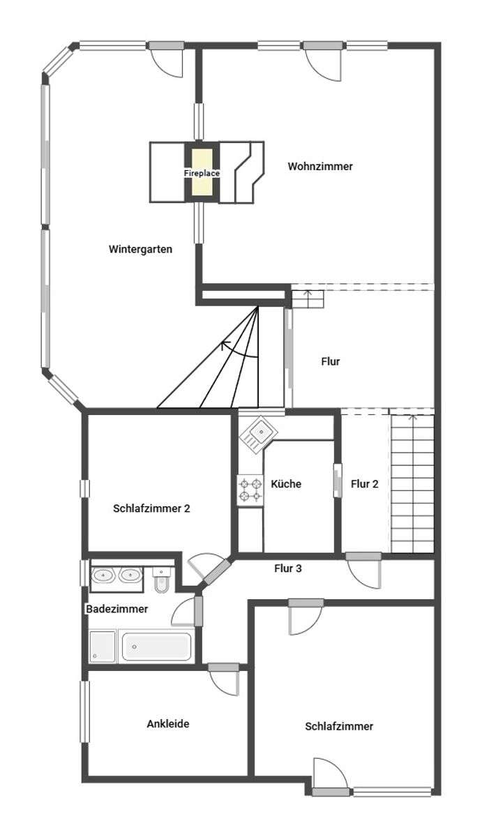
Der großzügige Wohnbereich mit Kamin und der angrenzende Wintergarten bilden das Herzstück des Hauses und schaffen eine angenehme Verbindung zwischen Innen- und Außenbereich. Der Garten bietet Privatsphäre und Ruhe, ein echtes Plus für Käufer, die Rückzug und Platz zu schätzen wissen.
Das Haus ist ideal für Käufer, die langfristig denken und ein Zuhause suchen, das sich ihren Bedürfnissen anpassen lässt, die Potenzial erkennen und bewusst gestalten möchten.
Großzügiges Wohnen im Grünen - Haus mit Raum für neue Lebensphasen
21077 Hamburg
Die vollständige Adresse der Immobilie erhalten Sie vom Anbieter.
Auf Karte anzeigen
Die vollständige Adresse der Immobilie erhalten Sie vom Anbieter.
Finanzierungszertifikat
In nur zwei Minuten zu Ihrem persönlichen Finanzierungszertifkat.
Infos
| Haustyp | Doppelhaushaelfte |
|---|---|
| Etagenzahl | 1 |
| Wohnfläche ca. | 210 m2 |
| Grundstücksfläche | 850 m2 |
| Bezugsfrei ab | ab sofort |
| Zimmer | 6 |
| Schlafzimmer | 2 |
| Badezimmer | 1 |
| Garage/Stellplatz | Carport |
| Anzahl Garage/Stellplatz | 1 |
Kosten
| Kaufpreis |
658.000 € |
|---|---|
| Provision |
3,57 % Die Provision i.H.v. 3,57 % inkl. MwSt. ist mit Kaufvertragsbeurkundung fällig, sofern der Verkaufspreis über 83.000,00 € liegt. Liegt der Verkaufspreis dagegen bei/unter 83.000,00 €, ist die fest vereinbarte Mindestprovision i.H.v. mind. 5.950,00 € inkl. MwSt. mit Kaufvertragsbeurkundung fällig. Die Mindestprovision fällt insg. nur einmal an, wodurch Verkäufer und Käufer die Mindestprovision dann jeweils mit 2.975,00 € inkl. MwSt. tragen. |
Finanzierungsrechner:
Kaufpreis:
600.000 €
Eigenkapital:
600.000 €
Monatliche Rate
0 €
Effektiver Jahreszins
0 %
Sollzinsbindung
10 Jahre
Bausubstanz & Energieausweis
| Baujahr | 1978 |
|---|---|
| Letzte Sanierung | 2008 |
| Bauphase | Haus fertig gestellt |
| Objektzustand | Gepflegt |
| Qualität der Austattung | Normal |
| Heizungsart | Zentralheizung |
| Wesentliche Energieträger | Gas |
| Energieausweis | liegt vor |
| Energieausweistyp | Bedarfsausweis |
| Energieverbrauchskennwert | 172,8 kWh/(m²*a) |
| Energieeffizienzklasse | F |
172,8
kWh/(m²*a)
Energieeffizienzklasse F
- A+
- A
- B
- C
- D
- E
- F
- G
- H
- 0
- 25
- 50
- 75
- 100
- 125
- 150
- 175
- 200
- 225
- >250
Beschreibung des Objekts
Ausstattung
+ ca. 210 m² Wohnfläche
+ großzügiger Wohnbereich mit Kamin
+ Wintergarten mit Blick in den Garten
+ letzte Modernisierung 2008, Gestaltungsspielraum für individuelle Weiterentwicklung
+ PV-Anlage, Carport, Wallbox
Lage
Lage: Idyllische Vorstadtlage in einer Sackgasse bietet ruhige, friedliche Umgebung für Ruhesuchende
Bildung und Betreuung: Familienfreundliche Lage dank Kindergärten und Schulen in fußläufiger Entfernung
Nahversorgung: Supermarkt in ca. 1,1 km, Apotheke und Postfiliale fußläufig
Anbindung: Bushaltestelle fußläufig, 4 km bis Bahnhof, Autobahn komfortabel erreichbar
Sonstige Angaben
Vereinbaren Sie noch heute einen Besichtigungstermin!
_____________________________________________________
Alle Angaben sind ohne Gewähr und basieren ausschließlich auf Informationen, die uns von unserem Auftraggeber zur Verfügung gestellt wurden. Wir übernehmen keine Gewähr für die Vollständigkeit, Richtigkeit und Aktualität der Angaben.
Grundriss
Grundriss Skizze EG
>
>
Grundriss Skizze UG
>
>
Adresse
21077 Hamburg
Interessante Orte
Preis- und Lageinformationen
Preistrend für Bestandsimmobilien in Eißendorf