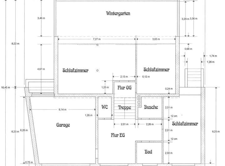
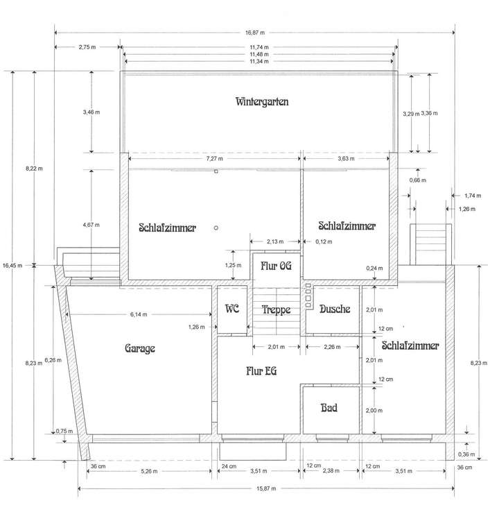
Das massive Wohnhaus wurde Anfang der siebziger Jahre in Split-Level-Bauweise errichtet. Der Grundriss gestaltet sich mit großzügigen Räumen auf vier versetzten Ebenen. Raumbreite Fensterfronten öffnen sich zum Garten und der Wintergarten im Obergeschoss ermöglicht einen Rundblick über das idyllische Grundstück.
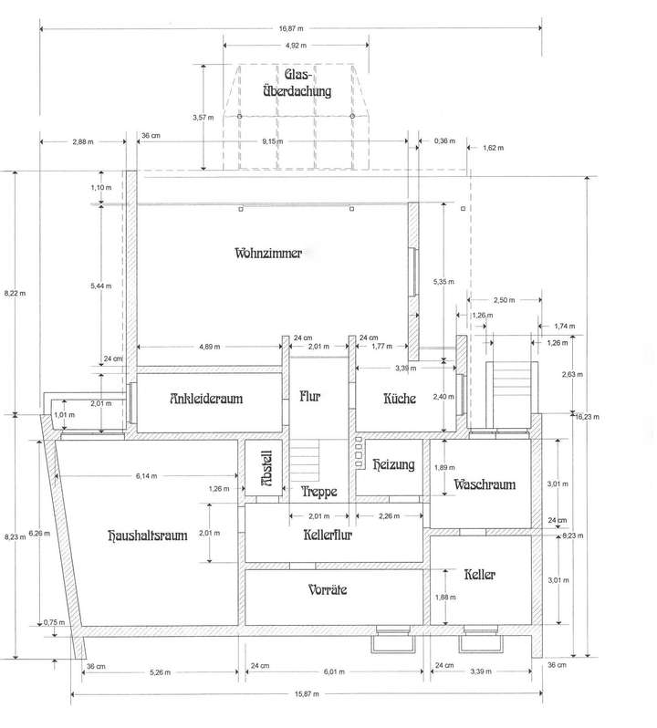
Auf der Ebene des Gartengeschosses befindet sich das geräumige Wohnzimmer, an welches sich die offene Küche anschließt. Vier weitere Zimmer verteilen sich auf drei Ebenen und können bei Bedarf wieder in sechs Zimmer unterteilt werden, wie es der ursprüngliche Grundriss vorsah. Es gibt zwei Bäder, sowohl mit Dusche als auch mit Badewanne und eine Gästetoilette. Die knalligen Farben der Fliesen spiegeln den Zeitgeist wider.
Im Kellergeschoss liegen Wirtschafts- und Lagerraum. Der zusätzliche große Hobbyraum ist als Spiele-, Sport- oder Musikzimmer hervorragend nutzbar. Unter Wohnzimmer und Küche befindet sich ein Kriechkeller. Neben dem einladenden Eingangsbereich liegt mit direktem Zugang die Doppelgarage.
Das Haus wurde seinerzeit sehr individuell und wertig errichtet und ausgestattet. Es befindet sich heute noch in einem guten, jedoch renovierungsbedürftigen Zustand. Die Gasheizung von Viessmann wurde 2015 installiert. Die Mehrzahl der Fenster sind inzwischen erneuert und 3-fach verglast. Eine Alarmanlage ist vorhanden.
Einzigartig sind die ruhige Lage am Ende einer Sackgasse und das herrliche, nicht einsehbare Grundstück. Für eine luftige Gestaltung kann dieses noch von dem einen oder anderen Gewächs befreit werden.
Als Besonderheit sei erwähnt, dass man über einen privaten Weg - zum Grundstück gehörend - den angrenzenden Wald erreicht.
Das Haus ist frei und geräumt. Gern lade ich Sie zur Besichtigung ein und freue mich, Sie kennenzulernen.
Wohnen in der Natur – Ihr Familienzuhause am Rand der Fischbeker Heide
21149 Hamburg
Die vollständige Adresse der Immobilie erhalten Sie vom Anbieter.
Auf Karte anzeigen
Die vollständige Adresse der Immobilie erhalten Sie vom Anbieter.
Finanzierungszertifikat
In nur zwei Minuten zu Ihrem persönlichen Finanzierungszertifkat.
Infos
| Haustyp | Einfamilienhaus |
|---|---|
| Wohnfläche ca. | 234 m2 |
| Nutzfläche | 121,36 m2 |
| Grundstücksfläche | 1.325 m2 |
| Bezugsfrei ab | Sofort |
| Zimmer | 5 |
| Schlafzimmer | 3 |
| Badezimmer | 2 |
| Garage/Stellplatz | Garage |
| Anzahl Garage/Stellplatz | 2 |
Kosten
| Kaufpreis |
720.000 € |
|---|---|
| Provision |
3,5 % inkl. gesetzl. MwSt. vom erzielten Kaufpreis |
Finanzierungsrechner:
Kaufpreis:
600.000 €
Eigenkapital:
600.000 €
Monatliche Rate
0 €
Effektiver Jahreszins
0 %
Sollzinsbindung
10 Jahre
Bausubstanz & Energieausweis
| Baujahr | 1972 |
|---|---|
| Objektzustand | Renovierungsbedürftig |
| Qualität der Austattung | Normal |
| Heizungsart | Zentralheizung |
| Wesentliche Energieträger | Gas |
| Energieausweis | liegt vor |
| Energieausweistyp | Bedarfsausweis |
| Energieverbrauchskennwert | 167,4 kWh/(m²*a) |
| Energieeffizienzklasse | F |
167,4
kWh/(m²*a)
Energieeffizienzklasse F
- A+
- A
- B
- C
- D
- E
- F
- G
- H
- 0
- 25
- 50
- 75
- 100
- 125
- 150
- 175
- 200
- 225
- >250
Beschreibung des Objekts
Lage
Neugraben-Fischbek ist ein Stadtteil im Bezirk Harburg. Das Wohnumfeld zeichnet sich durch eine ruhige, grüne Lage mit gleichzeitig guter Anbindung an die Hamburger Innenstadt aus.
Besonders hervorzuheben ist die Nähe zum Naturschutzgebiet Fischbeker Heide und zum Hamburger Forst, die vielfältige Möglichkeiten für Erholung, Sport und Freizeit bieten. Spaziergänge, Radfahren und Ausflüge in die Natur sind direkt vor der Haustür möglich.
Neugraben-Fischbek verbindet damit urbanes Wohnen mit naturnahem Lebensgefühl und zählt zu den attraktiven Wohnlagen im Süden Hamburgs.
Grundriss
Gartengeschoss + Kellergeschos
>
>
Erdgeschoss + Obergeschoss
>
>
Dachaufsicht
>
>
Adresse
21149 Hamburg
Interessante Orte
Preis- und Lageinformationen
Preistrend für Bestandsimmobilien in Neugraben-Fischbek