Vorweg: Dieses Haus wird im vermietet angeboten!
Auf einer relativ kleinen Fläche und durch eine Stichstraße erschlossen wurden 1954 fünfunddreißig Reihenhäuser gebaut, deren Bewohner sich seit jeher durch eine gute Erdung und ein starkes Miteinander ausgezeichnet haben. Abgehoben war eigentlich immer woanders!
Die Häuser sind gut geschnitten und bieten ausreichend Platz für Paare und kleine Familien. Das von uns angebotene Reihenmittelhaus steht in Ost-West-Lage auf einem Grundstück von ca. 260 m2. Es ist voll unterkellert und verfügt auf zwei Geschossen über eine Wohnfläche von ca. 86 m2. Das Haus wurde 2024 neu gestrichen und das Dach neu gedeckt.
Der Keller mit seinen auf dreieinhalb Räumen verteilten 40 m2 bietet ausreichend Platz für Lagerflächen, Vorräte oder auch für eine Nutzung als Hobbyraum. Er beherbergt auch die Gasttherme mit Boiler, die das Haus zentral beheizen und mit Warmwasser versorgen.
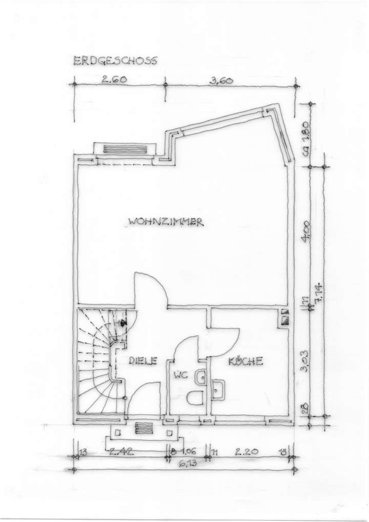
Im Erdgeschoss befindet sich das Wohnzimmer mit seiner beeindruckenden, tiefgestaffelten Aussicht auf stattlichen Bewuchs und der Option auf großartige Sonnenuntergänge. Neben der Küche gibt es im EG auch eine Gästetoilette.
Das Obergeschoss verfügt neben dem Bad und einen kleinen Balkon über zweieinhalb Räume, die als Schlafzimmer, Kinderzimmer oder Heimbüro genutzt werden können.
Großartig gelegenes Reihenhaus in Nienstedten
22609 Hamburg
Die vollständige Adresse der Immobilie erhalten Sie vom Anbieter.
Auf Karte anzeigen
Die vollständige Adresse der Immobilie erhalten Sie vom Anbieter.
Finanzierungszertifikat
In nur zwei Minuten zu Ihrem persönlichen Finanzierungszertifkat.
Infos
| Haustyp | Reihenmittelhaus |
|---|---|
| Etagenzahl | 2 |
| Wohnfläche ca. | 86 m2 |
| Grundstücksfläche | 260 m2 |
| Bezugsfrei ab | nach Absprache |
| Zimmer | 3,5 |
| Badezimmer | 1 |
Kosten
| Kaufpreis |
680.000 € |
|---|---|
| Provision | Nein |
Finanzierungsrechner:
Kaufpreis:
600.000 €
Eigenkapital:
600.000 €
Monatliche Rate
0 €
Effektiver Jahreszins
0 %
Sollzinsbindung
10 Jahre
Bausubstanz & Energieausweis
| Baujahr | 1954 |
|---|---|
| Bauphase | Haus fertig gestellt |
| Heizungsart | Zentralheizung |
| Wesentliche Energieträger | Gas |
| Energieausweis | liegt zur Besichtigung vor |
Beschreibung des Objekts
Ausstattung
Balkon, Terrasse, Garten, Keller, Einbauküche, Gäste-WC, Sonstiges (s. Text)
Lage
Unbestreitbar ist Nienstedten ist eine der beliebtesten Hamburger Wohngegenden. Dann auch noch gute fünf Gehminuten vom Ortskern entfernt zu wohnen ist schon ein kleiner Glücksfall! Der Nienstedtener Marktplatz, der mit seinen Geschäften das städtebauliche und funktionale Zentrum von Nienstedten ist, bietet neben der Versorgung mit Artikel des täglichen Bedarfs auch Cafés und kleine Restaurants. Zwei Mal im Jahr beherbergt er mit dem Nienstedtener Jahrmarkt ein sehr traditionelles und höchst analoges kleines Volksfest. Ein Kindergarten in der unmittelbaren Nachbarschaft, eine 750 m entfernte Grundschule, und die S-Bahn gut erreichbaren Gymnasien in Blankenese oder das Christianeum in Othmarschen bieten ein breites Bildungs-Angebot für die einziehenden Kinder und die, die noch kommen wollen.
Mit der S-Bahn ist man in zwanzig Minuten in der Innenstadt. Zwei Buslinien bringen Sie in die benachbarten Ortszentren von Osdorf mit seinem OEZ, Othmarschen, Ottensen, Blankenese und gut darüber hinaus.
Keine viertel Stunde zu Fuß und man ist an der Elbe, keine viertel Stunde und man ist mitten im Hirschpark. Keine halbe Stunde schöner Fußweg an der Elbe entlang und man hat den Fähranleger Teufelsbrück erreicht. Keine dreiviertel Stunde und man befindet sich mitten im Treppenviertel von Blankenese. Eigentlich ist fast alles da! Nur die Alster ist nicht um die Ecke.
Infrastruktur (im Umkreis von 5 km):
Allgemeinmediziner, Kindergarten, Grundschule, Hauptschule, Realschule, Gymnasium, Öffentliche Verkehrsmittel
Sonstige Angaben
Heizungsart: Zentralheizung
Energieträger: Gas
Energieausweis nicht vorhanden
Makleranfragen nicht erwünscht. Nach § 7 UWG sind unaufgeforderte Kontaktaufnahmen durch Makler ohne ausdrückliche Einwilligung des Empfängers verboten!
ohne-makler (OM) ist weder Anbieter noch Vermittler der Immobilie. OM betreibt eine Plattform für Immobilieneigentümer, die unter anderem die gleichzeitige Veröffentlichung einzelner Inserate auf mehreren Immobilienportalen ermöglicht. Die Inhalte dieser Inserate werden ausschließlich von Dritten verantwortet. Für die Richtigkeit, Vollständigkeit oder Rechtmäßigkeit der Angaben übernimmt OM keine Haftung. Hinweise auf mögliche Rechtsverstöße können jederzeit gemeldet werden und werden nach Prüfung umgehend bearbeitet.
Grundriss
Grundriss
>
>
Grundriss
>
>
Grundriss
>
>
Adresse
22609 Hamburg
Interessante Orte
Preis- und Lageinformationen
Preistrend für Bestandsimmobilien in Nienstedten