Das gepflegte Mittelreihenhaus, dessen Baujahr auf 1962 zurückgeht, wurde renoviert und präsentiert sich heute als einladendes Zuhause mit durchdachter Raumaufteilung und angenehmem Wohnambiente. Die Wohn- und Nutzfläche von insgesamt ca. 93 m² verteilt sich auf drei freundlich gestaltete Räume, die dank großer Fensterflächen lichtdurchflutet und offen wirken.
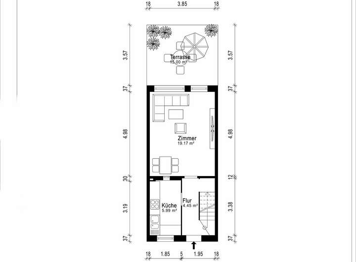
Der Mittelpunkt des Hauses befindet sich im Erdgeschoss: Hier gehen Kochen, Essen und Wohnen harmonisch ineinander über. Die Küche bietet ausreichend Platz für gemeinsames Zubereiten von Mahlzeiten, während der angrenzende Wohnbereich mit seiner hellen Atmosphäre zum Verweilen einlädt. Ein direkter Zugang führt auf die weitläufige Terrasse, die sich ideal für entspannte Stunden im Freien oder gesellige Zusammenkünfte eignet.
Im oberen Bereich des Hauses sorgen zwei flexibel nutzbare Zimmer für vielfältige Gestaltungsmöglichkeiten – ob als Schlafräume, Homeoffice oder Kinderzimmer. Ergänzt wird diese Ebene durch ein großzügiges, modern ausgestattetes Duschbad, das einen hohen Komfort bietet. Eine stilvolle Holztreppe verbindet die einzelnen Etagen miteinander.
Zusätzlichen Stauraum und praktische Nutzfläche von etwa 30 m² stellt das Kellergeschoss zur Verfügung. Für ein angenehmes Wohnklima sorgen isolierverglaste Kunststofffenster in Kombination mit Außenjalousien.
Der sonnige Garten rundet das Gesamtbild ab und bietet Raum zum Entspannen, Spielen oder Gärtnern. Eine separat zu erwerbende Einzelgarage komplettiert dieses attraktive Angebot; der Kaufpreis hierfür beträgt 15.000 €.
Gepflegtes und renoviertes Reihenhaus mit Garage in sehr guter Lage!
22453 Hamburg
Die vollständige Adresse der Immobilie erhalten Sie vom Anbieter.
Auf Karte anzeigen
Die vollständige Adresse der Immobilie erhalten Sie vom Anbieter.
Finanzierungszertifikat
In nur zwei Minuten zu Ihrem persönlichen Finanzierungszertifkat.
Infos
| Haustyp | Reihenmittelhaus |
|---|---|
| Wohnfläche ca. | 63 m2 |
| Nutzfläche | 30 m2 |
| Grundstücksfläche | 90 m2 |
| Bezugsfrei ab | sofort |
| Zimmer | 3 |
| Schlafzimmer | 2 |
| Badezimmer | 1 |
| Garage/Stellplatz | Garage |
| Anzahl Garage/Stellplatz | 1 |
Kosten
| Kaufpreis |
349.000 € |
|---|---|
| Preis für Garage/Stellplatz | 15.000 € |
| Provision |
3,57 % |
Finanzierungsrechner:
Kaufpreis:
600.000 €
Eigenkapital:
600.000 €
Monatliche Rate
0 €
Effektiver Jahreszins
0 %
Sollzinsbindung
10 Jahre
Bausubstanz & Energieausweis
| Baujahr | 1962 |
|---|---|
| Objektzustand | Gepflegt |
| Heizungsart | Zentralheizung |
| Wesentliche Energieträger | Gas |
| Energieausweis | liegt vor |
| Energieausweistyp | Bedarfsausweis |
| Energieverbrauchskennwert | 152,9 kWh/(m²*a) |
| Energieeffizienzklasse | E |
152,9
kWh/(m²*a)
Energieeffizienzklasse E
- A+
- A
- B
- C
- D
- E
- F
- G
- H
- 0
- 25
- 50
- 75
- 100
- 125
- 150
- 175
- 200
- 225
- >250
Beschreibung des Objekts
Lage
Das Haus befindet sich in einer besonders begehrten Wohngegend des Hamburger Stadtteils Niendorf im Bezirk Eimsbüttel. Umgeben von viel Grün und einer äußerst gepflegten Umgebung zeichnet sich die Lage durch ihre ruhige, charmante Atmosphäre sowie ein angenehmes nachbarschaftliches Umfeld aus. Das Wohngebiet ist geprägt von ansprechenden Ein- und Mehrfamilienhäusern, liebevoll angelegten Gärten und einem hohen Anteil an Natur. Zahlreiche Spazierwege, das nahe Niendorfer Gehege sowie verschiedene Parkanlagen laden zu erholsamen Freizeitaktivitäten im Grünen ein – und das ganz in der Nähe des Hauses.
Trotz der idyllischen Lage ist die Anbindung an den Verkehr ausgezeichnet. Die U-Bahn-Station Niendorf Markt (U2) sowie mehrere Buslinien sind schnell erreichbar und gewährleisten eine komfortable Verbindung in die Hamburger Innenstadt. Auch die Autobahn A7 (Anschlussstelle Schnelsen-Nord) sowie der Flughafen Hamburg sind in wenigen Minuten erreichbar, was den Standort besonders attraktiv für Berufspendler und Vielreisende macht.
Darüber hinaus bietet die Umgebung eine sehr gute Infrastruktur. Schulen, Kindergärten, medizinische Einrichtungen und Sportvereine befinden sich in direkter Nähe. Einkaufsmöglichkeiten für den täglichen Bedarf sowie zahlreiche Cafés und Restaurants finden sich im Tibarg Center und rund um den Niendorf Markt. Insgesamt verbindet diese Wohnlage ruhiges, naturnahes Wohnen mit allen Vorzügen urbaner Lebensqualität – ideal für Menschen, die Wert auf Komfort, Lebensfreude und ein harmonisches Zuhause legen.
Sonstige Angaben
Besichtigungstermine vereinbaren wir ausschließlich telefonisch.
Nachdem Sie Ihre Anfrage über das Immobilienportal gestellt haben, rufen Sie uns diesbezüglich oder für weitere Informationen gerne zu den üblichen Bürozeiten an.
Alle Angaben nach bestem Wissen. Irrtum und Zwischenverkauf vorbehalten. Dieses Exposé ist eine Vorinformation, als Rechtsgrundlage gilt allein der notariell abgeschlossene Kaufvertrag.
Grundriss
Grundriss Erdgeschoss
>
>
Grundriss Obergeschoss
>
>
Grundriss Keller
>
>
Adresse
22453 Hamburg
Interessante Orte
Preis- und Lageinformationen
Preistrend für Bestandsimmobilien in Niendorf