Dieses Einfamilienhaus aus dem Baujahr 1921 präsentiert sich auf ca. 196 m² Wohnfläche und einem 842 m² großen, nach Süden ausgerichteten Grundstück als großzügiges und gepflegtes Zuhause mit viel Raum für unterschiedliche Wohnkonzepte. Beim Betreten empfängt sie eine helle Diele, die alle Räume des Erdgeschosses miteinander verbindet. Ein gemütliches Zimmer sowie ein funktionales Tageslichtbad liegen zentral, während der weitläufige Wohn- und Essbereich mit seinen großen Fensterflächen einen offenen Blick in den sonnigen Garten ermöglicht und den Mittelpunkt des Hauses bildet. Die angrenzende Küche mit separater Speisekammer ist praktisch gestaltet und bietet ausreichend Platz für den täglichen Bedarf und das Familienleben.
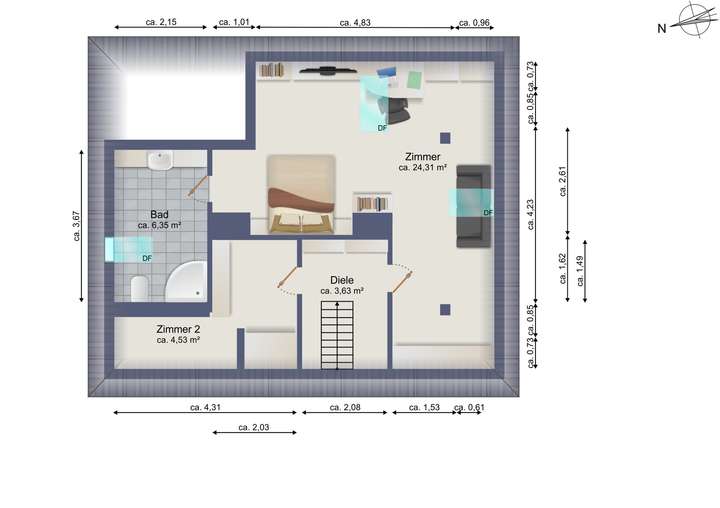
Im Obergeschoss stehen zwei große Schlafzimmer, ein weiterer flexibel nutzbarer Raum sowie ein geräumiges Badezimmer zur Verfügung. Die Etage eignet sich ideal als privater Rückzugsbereich für die Familie und bietet dank der großzügigen Zimmeraufteilung vielfältige Einrichtungsmöglichkeiten. Das ausgebaute Dachgeschoss erweitert das Haus um einen beeindruckend großen Raum, der sich hervorragend für individuelle Nutzungen eignet. Ergänzend dazu gibt es ein weiteres Zimmer sowie ein eigenes Badezimmer, sodass hier eine vollständig nutzbare zusätzliche Wohnebene entsteht, die sich beispielsweise auch gut als Jugendbereich anbietet.
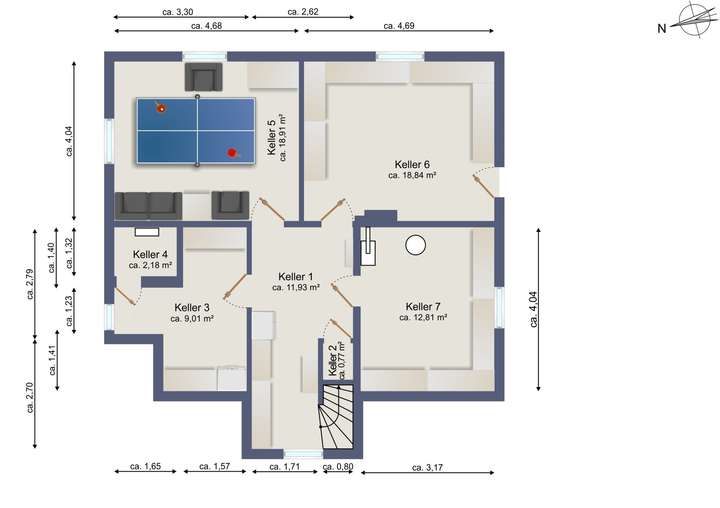
Das Gebäude ist voll unterkellert und stellt im Untergeschoss zahlreiche Nutzungsmöglichkeiten zur Verfügung – ob Hobby, Werkstatt, Lager oder Vorräte. Der gepflegte, sonnige Garten bildet eine harmonische Ergänzung und bietet viel Raum für Erholung, Spiel oder individuelle Gestaltungsideen im Freien. Insgesamt überzeugt das Haus durch seinen klassischen Charakter, seine großzügigen Raumstrukturen und den gepflegten Gesamtzustand, der ein angenehmes und vielseitiges Wohnen für Familien ermöglicht.
Charmante Stadtvilla mit Vollkeller und großzügigem Süd-Grundstück in ruhiger Anwohnerstraße
22159 Hamburg
Die vollständige Adresse der Immobilie erhalten Sie vom Anbieter.
Auf Karte anzeigen
Die vollständige Adresse der Immobilie erhalten Sie vom Anbieter.
Finanzierungszertifikat
In nur zwei Minuten zu Ihrem persönlichen Finanzierungszertifkat.
Infos
| Wohnfläche ca. | 195 m2 |
|---|---|
| Nutzfläche | 94,5 m2 |
| Grundstücksfläche | 842 m2 |
| Zimmer | 6,5 |
| Schlafzimmer | 4 |
| Badezimmer | 3 |
| Garage/Stellplatz | Außenstellplatz |
| Anzahl Garage/Stellplatz | 2 |
Kosten
| Kaufpreis |
1.095.000 € |
|---|---|
| Provision |
3,57% |
Finanzierungsrechner:
Kaufpreis:
600.000 €
Eigenkapital:
600.000 €
Monatliche Rate
0 €
Effektiver Jahreszins
0 %
Sollzinsbindung
10 Jahre
Bausubstanz & Energieausweis
| Baujahr | 1921 |
|---|---|
| Objektzustand | Gepflegt |
| Heizungsart | Zentralheizung |
| Wesentliche Energieträger | Gas |
| Energieausweis | liegt vor |
| Energieausweistyp | Bedarfsausweis |
| Energieverbrauchskennwert | 196,9 kWh/(m²*a) |
| Energieeffizienzklasse | F |
196,9
kWh/(m²*a)
Energieeffizienzklasse F
- A+
- A
- B
- C
- D
- E
- F
- G
- H
- 0
- 25
- 50
- 75
- 100
- 125
- 150
- 175
- 200
- 225
- >250
Beschreibung des Objekts
Ausstattung
Besondere Highlights:
+ Baujahr 1921 – klassische, solide Architektur mit Charme
+ Ruhige Wohnlage in einer gepflegten Anwohnerstraße
+ Großzügiges Grundstück mit ca. 842 m² Fläche
+ Süd-Ausrichtung des Gartens mit ganztägiger Belichtung
+ Großes Platzangebot auf mehreren Ebenen
+ Freundlicher Eingangsbereich mit viel Tageslicht
+ Helle Wohn- und Essräume mit schöner Aussicht ins Grüne
+ Küche mit direktem Zugang zur Terrasse und Garten
+ Praktische Speisekammer neben der Küche
+ Terrasse mit Südausrichtung – ideal für Sonnenstunden
+ Tageslichtbad im Erdgeschoss
+ Drei gut geschnittene Schlafzimmer im Obergeschoss
+ Großes Badezimmer mit Fenster
+ Ausgebautes Dachgeschoss mit zwei weiteren Wohnräumen
+ Separates Duschbad im Dachgeschoss
+ Vollkeller mit mehreren funktionalen Räumen
+ Beheizbarer Kellerraum mit Tageslicht – vielseitig nutzbar
+ Direkter Gartenzugang aus dem Keller
+ Außenstellplätze auf dem Grundstück
+ Außenrollläden
Nähere Details erläutere ich Ihnen gerne in einem persönlichen Gespräch.
Machen Sie sich selbst ein Bild von diesem schönen Objekt und vereinbaren Sie jetzt Ihren individuellen Besichtigungstermin.
Lage
Die Immobilie befindet sich in einer ruhigen und gepflegten Wohngegend im beliebten Hamburger Stadtteil Farmsen-Berne. Das Umfeld ist geprägt von Einfamilien- und Doppelhäusern sowie kleineren Mehrfamilienhäusern mit liebevoll angelegten Gärten. Diese gewachsene Nachbarschaft vermittelt ein angenehmes, familiäres Wohngefühl und bietet ein hohes Maß an Sicherheit und Lebensqualität.
Farmsen-Berne liegt im Nordosten Hamburgs und zählt zu den besonders grünen und wohnfreundlichen Stadtteilen. Hier verbinden sich naturnahes Wohnen und städtischer Komfort auf ideale Weise. In unmittelbarer Nähe befinden sich Einkaufsmöglichkeiten für den täglichen Bedarf – darunter Supermärkte, Bäckereien, Apotheken und Dienstleister. Das Einkaufszentrum Farmsen mit zahlreichen Geschäften, Restaurants und Freizeitangeboten ist schnell erreichbar und sorgt für eine sehr gute Nahversorgung.
Familien schätzen die ausgezeichnete Infrastruktur: Kitas, Grund- und weiterführende Schulen sind in der Umgebung vorhanden und bequem erreichbar. Freizeit- und Sportmöglichkeiten sind vielfältig – ob im Berner Gutspark, am Kupferteich oder im beliebten Farmsener Stadtpark. Diese grünen Oasen laden zu Spaziergängen, Joggingrunden oder Radtouren ein.
Die Verkehrsanbindung ist hervorragend. Mehrere Buslinien sowie die U-Bahn-Station Farmsen (U1) gewährleisten eine schnelle Verbindung in die Hamburger Innenstadt. Über die B75 oder die A1 ist die City auch mit dem Auto in etwa 20 Minuten erreichbar.
Farmsen-Berne bietet damit die perfekte Balance aus ruhiger Wohnlage, naturnahem Umfeld und urbaner Nähe – ideal für alle, die entspanntes Wohnen in einem grünen Stadtteil mit guter Infrastruktur suchen.
Sonstige Angaben
Sie wollen Ihre Immobilie verkaufen? Sprechen Sie uns an und vereinbaren Sie einen Termin für eine kostenlose Werteinschätzung. Entsprechend Ihrer Vorstellungen erhalten Sie von uns ein für Sie maßgeschneidertes Vermarktungskonzept für Ihre Immobilie.
Dolberg & Uderstadt Immobilien GmbH, Ihr Vertrauensmakler seit 1971 – profitieren Sie von der Erfahrung aus 50 Jahren im Verkauf von Immobilien.
Nebenkosten: ca. 2 % Notar- und Gerichtskosten sowie 5,5 % gesetzlicher Grunderwerbsteuer
Käufercourtage: 3,57 % inkl. Mehrwertsteuer
Bitte haben Sie Verständnis dafür, dass auf Wunsch der Verkäufer keine Reservierungen vor Notartermin möglich sind.
Haftungsausschluss: Wir möchten Sie darauf hinweisen, dass sämtliche Angaben auf Grundlage von Eigentümerangaben, nach bestem Wissen und Gewissen, jedoch ohne Gewähr auf Vollständigkeit und Richtigkeit, erfolgen. Irrtum und Zwischenverkauf vorbehalten. Der Makler ist von jeglicher Haftung befreit.
Grundriss
Grundriss EG
>
>
Grundriss OG
>
>
Grundriss DG
>
>
Grundriss KG
>
>
Adresse
22159 Hamburg
Interessante Orte
Preis- und Lageinformationen
Preistrend für Bestandsimmobilien in Farmsen-Berne