Diese gehobene Doppelhaushälfte wurde 1999 in massiver Bauweise auf einem ca. 350 m² großen Grundstück errichtet. Die Wohnfläche beträgt ca. 167 m², welche sich auf 5 Zimmer und über drei Ebenen verteilt. Das Wohngefühl entspricht einem Einfamilienhaus, da die Terrasse des Doppelhauspartners eine andere Ausrichtung hat.
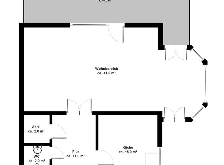
Die Immobilie wird über einen gepflegten Eingangsbereich mit einer Massivholzeingangstür betreten. Über das Entrée lässt sich die stilvolle Landhausküche mit Essbereich, das Gäste-WC, der Hauswirtschaftsraum sowie der Wohnbereich erreichen. Der Wohnbereich bietet mit ca. 41 m² Platz für die ganze Familie und sorgt mit bodentiefen Fenstern für eine helle Atmosphäre. Ein besonderes Highlight stellt der schöne Erker mit großen Panoramafenstern dar. Der Wohnbereich gewährt Zugang zur westlich ausgerichteten Terrasse und dem Garten. Durch seine ruhige und rückwärtige Lage eignet sich der Garten optimal für Kinder und Feste mit Freunden.
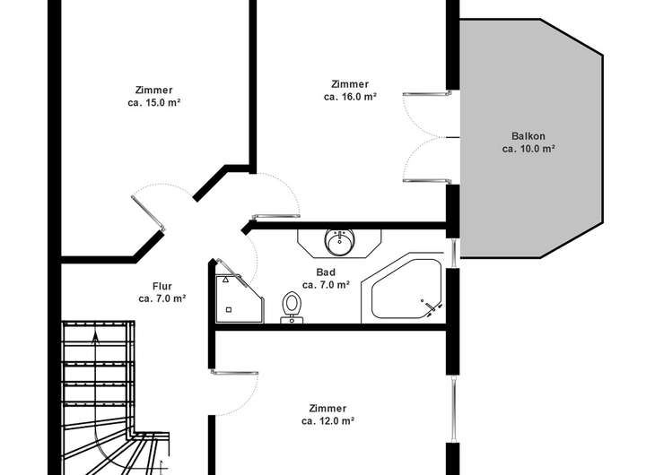
Eine extra breite Betontreppe mit Massivholzgeländer führt ins Obergeschoss. Durch die besondere Dachform des Mansardenwalmdaches und die sechs Gauben sind im Obergeschoss keine Dachschrägen vorhanden, wodurch sich die Zimmer optimal nutzen lassen. Diese weisen eine angenehme Größe auf, sind gut geschnitten und ein Zimmer ist mit bodentiefen Fenstern sowie einem Balkon versehen. Für den nötigen Komfort sorgt das weiße Marmorbadezimmer, welches mit einer Badewanne, einer Dusche sowie einem großen Fenster ausgestattet ist.
Eine weitere stilvolle Holztreppe führt ins ausgebaute Dachgeschoss. Hier eröffnet sich ein großzügiges Zimmer, welches als Büro oder auch als Gäste-Zimmer genutzt werden kann. Für Bequemlichkeit sorgt ein kleines Gäste-WC. Ebenfalls ist ein weiteres Zimmer vorhanden, welches als Abstellraum genutzt werden kann.
Die Immobilie ist mit einer Fußbodenheizung ausgestattet. Beheizt wird sie über eine Gasheizung aus dem Jahr 2012. Ein Doppelcarport auf dem Grundstück rundet dieses attraktive Angebot ab
Elegantes Landhaus - Ruhig, Großzügig, Gehoben
22397 Hamburg
Die vollständige Adresse der Immobilie erhalten Sie vom Anbieter.
Auf Karte anzeigen
Die vollständige Adresse der Immobilie erhalten Sie vom Anbieter.
Finanzierungszertifikat
In nur zwei Minuten zu Ihrem persönlichen Finanzierungszertifkat.
Infos
| Haustyp | Doppelhaushaelfte |
|---|---|
| Etagenzahl | 3 |
| Wohnfläche ca. | 167 m2 |
| Grundstücksfläche | 350 m2 |
| Bezugsfrei ab | Sofort |
| Zimmer | 5 |
| Schlafzimmer | 4 |
| Badezimmer | 1 |
| Garage/Stellplatz | Carport |
| Anzahl Garage/Stellplatz | 2 |
Kosten
| Kaufpreis |
799.000 € |
|---|---|
| Provision |
Käuferprovision beträgt 3,57 % (inkl. MwSt.) des beurkundeten Kaufpreises |
Finanzierungsrechner:
Kaufpreis:
600.000 €
Eigenkapital:
600.000 €
Monatliche Rate
0 €
Effektiver Jahreszins
0 %
Sollzinsbindung
10 Jahre
Bausubstanz & Energieausweis
| Baujahr | 1999 |
|---|---|
| Objektzustand | Gepflegt |
| Heizungsart | Fußbodenheizung |
| Wesentliche Energieträger | Gas |
| Energieausweis | liegt vor |
| Energieausweistyp | Verbrauchsausweis |
| Energieverbrauchskennwert | 92,2 kWh/(m²*a) |
| Energieeffizienzklasse | C |
92,2
kWh/(m²*a)
Energieeffizienzklasse C
- A+
- A
- B
- C
- D
- E
- F
- G
- H
- 0
- 25
- 50
- 75
- 100
- 125
- 150
- 175
- 200
- 225
- >250
Beschreibung des Objekts
Ausstattung
- Hochwertigen Massivholzeingangstür
- Entrée mit eingebauter Garderobe
- Stilvolle Landhausküche mit Essbereich
- Gäste-WC mit französischer Keramikausstattung und Hauswirtschaftsraum im Erdgeschoss
- Großzügiger Wohnbereich mit hellem Erker
- Ruhig gelegener, rückwärtiger Garten mit 40 m² Terrasse
- Pergola aus feuerverzinktem Metall
- Elegante und extra breite Massivholztreppe zum Obergeschoss
- Durch Mansardenwalmdach und sechs Gauben keine Dachschrägen im OG
- Gut geschnittene Zimmer, eines mit bodentiefen Fenstern und Balkon
- Weißes Marmorbadezimmer mit Badewanne, Dusche, Fenster sowie schwarzen Marmor-Waschtisch
- Gästezimmer, Gäste-WC sowie Abstellraum im Dachgeschoss
- Fenster sind Isolierverglast mit Wärmeschutzbeschichtung und innenliegenden, großformatigen Sprossen
- Fußbodenheizung im EG und OG, Heizungsanlage von 2012
- Energieeffizienzklasse C
- Fensterbänke in Carrara Marmor
- Doppelcarport samt Anbau mit Getränkekühlschrank
- Immobilie befindet sich in hinterer Endlage
Lage
Die angebotene Immobilie präsentiert sich in einer idyllischen Straße im beliebten Stadtteil Lemsahl-Mellingstedt. Auf einem Pfeifenstielgrundstück in hinterer Endlage ist die Immobilie ruhig gelegen und bietet einen erholsamen Ausblick ins Grüne.
Die privilegierte Lage zeichnet sich durch schöne Natur sowie eine gehobene Umgebungsbebauung aus. Besonders hervorzuheben ist, dass die Immobilie ruhig gelegen und dennoch eine gute Infrastruktur aufweist. Das kleine Geschäftszentrum am Tannenhof ist fußläufig erreichbar und bietet Einkaufsmöglichkeiten für Lebensmittel, einen Bäcker, einen Friseur, eine Apotheke, eine Post sowie diverse Ärzte.
Das nähere Umfeld besticht durch ein vielfältiges Gastronomieangebot, Kindergärten, Grundschulen, weiterführende Schulen sowie diverse Freizeitmöglichkeiten wie beispielsweise Reiten, Golfen oder anderen sportliche Aktivitäten im Lemsahler Sportverein. Ebenfalls ist ein guter Zugang zum ÖPNV durch eine unweite Bushaltestelle gegeben. Positiv hervorzuheben ist ebenfalls die Nähe zum beliebten Alstertal Einkaufszentrum – AEZ. Dies ist weit über die Grenzen von Hamburg bekannt und bietet mit rund 240 Shops ein einmaliges Einkaufserlebnis. Das AEZ ist 10 Autominuten, der Airport 20 Autominuten und die Hamburger Innenstadt 30 Autominuten entfernt.
Neben der tollen Infrastruktur bietet die Natur mit dem nahegelegenen Alsterlauf sowie dem Naturschutzgebiet "Rodenbeker Quellental" mit schönen Wanderwegen eine tolle Möglichkeit sich eine Auszeit vom Alltag zu nehmen.
Grundriss
Erdgeschoss
>
>
Obergeschoss
>
>
Dachgeschoss
>
>
Adresse
22397 Hamburg
Interessante Orte
Preis- und Lageinformationen
Preistrend für Bestandsimmobilien in Lemsahl-Mellingstedt